NHR / Rekonštrukcia bytu

Byt sa nachádza na spodnom podlaží terasového bytového domu zo začiatku deväťdesiatych rokov.
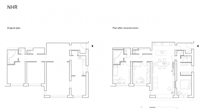
Rekonštrukcia trojizbového pomerne rozľahlého bytu a jeho premena na štvorizbový bola iniciovaná potrebou novej izby pre dcéru – začínajúcu žiačku základnej školy. Miesto jej prepustila rodičovská spálňa, ktorá sa presunula vo forme samostatnej jednotky (skoro hotelového charakteru) na miesto pôvodnej kuchyne s jedálňou.
Pôvodná dispozícia bytu bola organizovaná cez centrálnu halu, ktorú majitelia vyžívali ako pracovňu. Po odstránení priečok táto miestnosť splynula s jestvujúcou obývacou izbou v jeden presvetlený priestor, v ktorom sa koncentrujú všetky spoločenské aktivity rodiny a častých návštev priateĺov. Tento lineárny priestor je ukončený veľkým oknom s hlbokým "pobytovým" parapetom s výhľadom do predzáhradky.
Okno sa stalo magnetom pre detské hry či relaxáciu rodičov. Roleta nainštalovaná nad otvorom plní funkciu projekčnej plochy počas filmových večerov.
V byte sú použité prírodné materiály. Plochy sú upravené prevažne bielou farbou, svetlým drevom ihličnatých stromov prípadne liatou cementovou stierkou na podlahách. Nábytok je realizovaný z neupravených preglejkových častí stavebnicovým systémom.
- Autoři: Peter Jurkovič
- Ateliér: JRKVC
- Země: Slovensko
- Město: Bratislava
- Realizace: 2011
- Užitná plocha: 106.00m2
- Materiál: překližka
- Foto ©: Peter Jurkovič
Související projekty
Související architekti
Související ateliéry a firmy
Mohlo by vás zajímat


















