Architektura / rodinné domy

Architekt sám sobě klientem, ekologicky, proskleně

Krajina kopcovitého lesa a nenápadný dům z dílny architekta Erica Grondala, vytvoření soukromého genia-loci.

Tomáš Kodet , 16. 2. 2017

Pozemek ve svažitém terénu je pro každého architekta výzva. Stejně jako zakomponování objemné hmoty domu pro pětičlennou rodinu do listnatého lesa. Výzvy jako z učebnice architektury však v praxi bývají limitovány finančními možnostmi a požadavky klienta. V tomto projektu tomu tak nebylo, klientem byl totiž sám architekt. Lze polemizovat nad tím, zda Eric Grondal vytvořil více dům podle představ své rodiny, nebo, ať už vědomě nebo podvědomě, přihlížel spíše k tomu, že se jím sám bude jako architekt prezentovat. Jak moc se tento postoj do díla promítnul, se už asi nedozvíme, víme ale, že je to realizace, o které stojí za to něco vědět.

Měděný bunkr

Jestli budete mít tu čest a architekt vás pozve na návštěvu (my bychom rádi, ale naše diáře jsou plné), potom fasáda, kterou při příjezdu po soukromé cestě uvidíte, bude téměř bez oken a místo rodinného domu bude připomínat spíš obrněný kryt. Aby dům nepůsobil příliš monstrózně, suterén byl od zbytku hmoty oddělen. Definují ho cihly; možná proto, že by se bez půdy, ke které mají svou povahou nejblíž, neobešly. Nadzemní podlaží jsou opláštěna patinující mědí, pro každý z hmotových celků domu byla zvolena jiná struktura. Zatímco hlavní obytný prostor ji má nepravidelnou a vertikální, nižší část objektu je tvořena horizontálními obdélníkovými pláty. Dojem z fasády je v každý okamžik jiný, sluneční paprsky si s povrchem pohrávají a díky vrženým stínům vypadá v každý okamžik trochu jinak.

Protiklad exteriéru

Interiér je pravým opakem zevnějšku. Dominují mu světlé plochy pohledového betonu, šedý přírodní kámen na podlaze a dřevěné doplňky. Pokud bychom ale hledali spojitosti, možná jich najdeme víc, než jsme čekali. Jednak to je přiznání materiálu v jeho surové podobě, a dále stejně jako je měď patinovaná (což je přirozený chemický proces), tak ani beton není nijak upraven. Podobně jako cihly připomínaly hlínu, z které vznikly, tak i dřevěné doplňky nás neustále spojují s přírodou. S tou nás ale nejvíce propojují výhledy a nepatrný předěl mezi obývacím pokojem a terasou. Takové místo ve vás vytváří dojem, kde si nejste jistí, jestli jste venku, nebo uvnitř.

Okna, detail, který nepřehlédnete

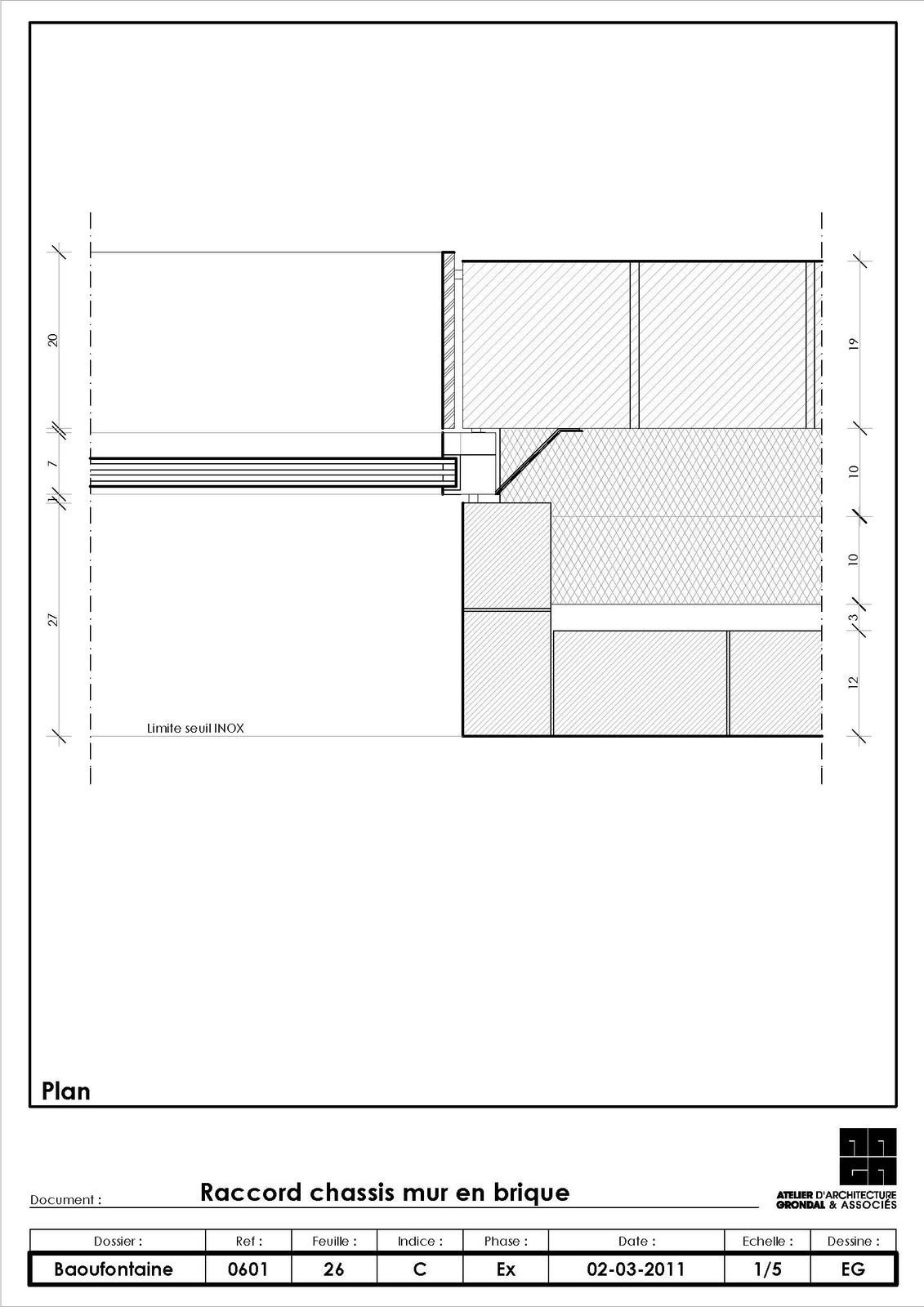
Nepřehlédnutelným rysem každého okna je jeho štíhlý hliníkový rám od německé značky Schüco v sytě černém odstínu. Pásová okna a systém posuvných dveří, díky nimž se dostanete na terasu, byla osazena izolačním trojsklem. Konkrétně se jedná o výrobky: Schüco FW 50+, Schüco AWS 75.SI, Schüco ASS 70.HI.

Šetrně k přírodě

Dům v lesích se snaží být k přírodě co možná nejšetrnější, jeho energetické nároky jsou proto minimalizovány. Plášť budovy se může pyšnit součinitelem prostupu tepla na hodnotě 0,11. Díky tepelnému čerpadlu a solárním panelům na teplou vodu jsou pokryty nároky na provoz podlahového topného systému. Automatická ventilace s rekuperací zabraňuje tepelným únikům. Celý koncept udržitelnosti dovršuje cisterna na užitkovou vodu o objemu 10 000 litrů.

  • Ateliér: Atelier d’Architecture Eric Grondal
  • Země: Belgie
  • Realizace: 2011
  • Stavebník: Rodina Grondal Smal
  • Subdodavatel: J. Gaspard SPRL
  • Město: Tilff
  • Datum projektu: 2006
  • Realizace: 2011

Klíčová slova:

Belgie rodinný dům Schüco

Mohlo by vás zajímat

Generální partner
Hlavní partneři