Architektura / rodinné domy

Bydlení, jež nechce být ikonou

Projekt rodinných domů na okraji Londýna zaujal porotu architektonické soutěže RIBA především svým úsilím o udržitelný koncept, vysokými environmentálními nároky a dlouhodobým závazkem k dané lokalitě.

Studio Partington , 13. 9. 2017

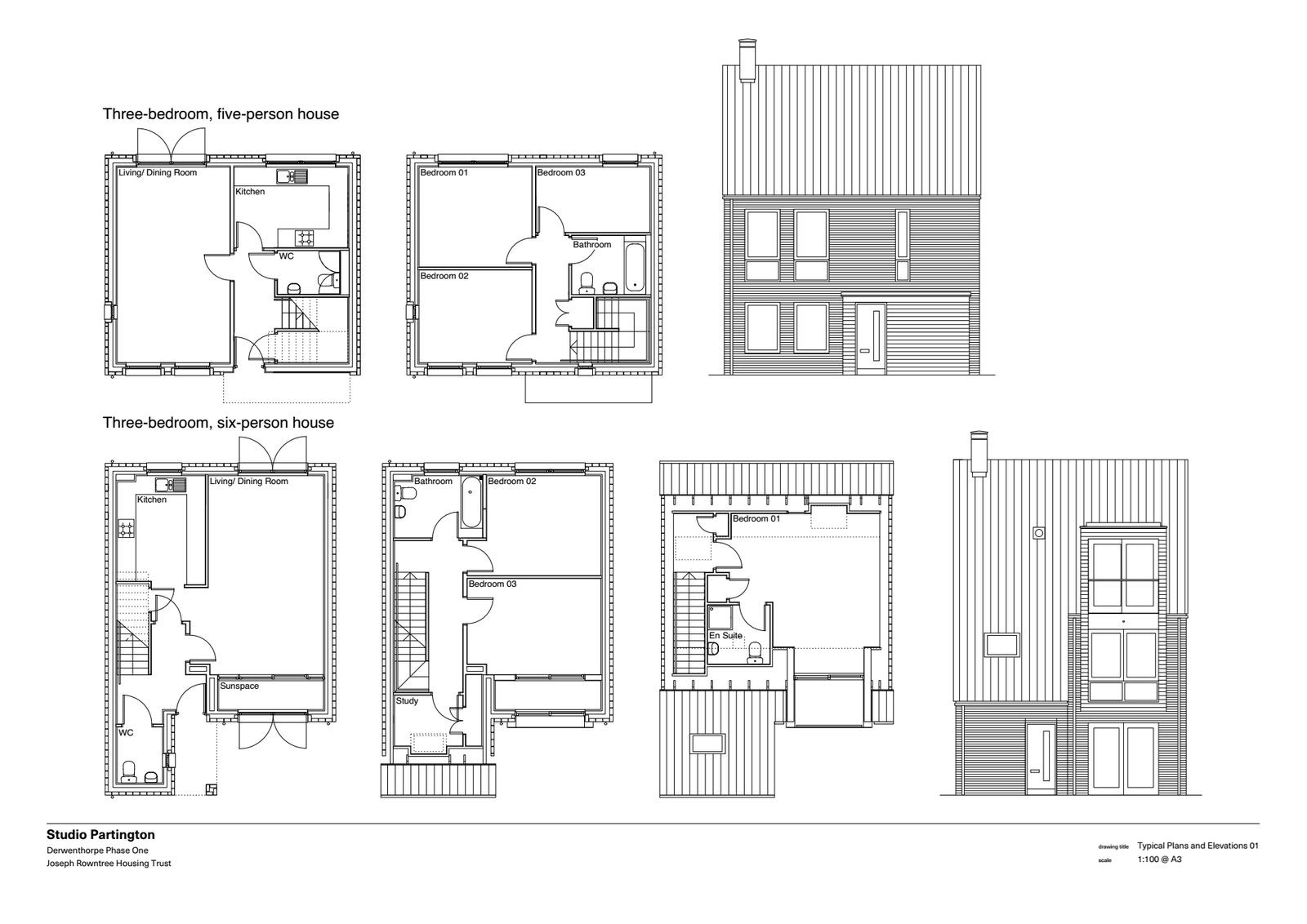
Současná architektonická témata se zaměřují na objektivizaci a ikonickou hodnotu formálního architektonického objektu. Zatímco myšlenka „ikony“ je velice svůdnou a lákavou, projekt Derwenthorpe ji potlačuje. Zaměřuje se na složité myšlenky identity místa, spojování komunity, na materiální citlivost, veřejné prostranství a blízkou krajinu. Cílem bylo všechny tyto hodnoty vložit do jednoho celku tak, aby byly v harmonii a žádná neměla přednost před druhou.

Místo je tvořeno pro jeho obyvatele, aby si k němu vytvořili svůj vztah a nadále se o něj starali. Velkorysost veřejného prostoru je stejná, jako prostorový standard jednotlivých domů. To u developerských projektů nebývá vůbec zvykem

Projektový tým popsal své cíle takto: „Chtěli jsme vytvořit společensky a environmentálně udržitelnou komunitu, což pro nás znamenalo energeticky úsporné domy, pobídky ke změně životního stylu, podporu sbližování komunity a dlouhodobou péči o projekt.“

Zatím se zdá, že tyto cíle naplněny byly. Projekt demonstruje skutečný závazek k udržitelnosti. Přístup architektů zahrnuje komunitní a sociální blaho, pasivní design a nové technologie. Dosah projektu je dál než na hranice parcely. Architekti zohledňili místní prostředí, biologickou rozmanitost a nabídli různé typy obydlí.

Všechny tyto hodnoty se promítly také do ocenění, které projekt získal. Byl jasným vítězem kategorie Regional Sustainability Award a ocenění se dočkal i architekt, který zvítězil v soutěži Regional Project Architect of the Year.

  • Ateliér: Studio Partington
  • Země: Velká Británie
  • Realizace: 2016
  • Město: Londýn
  • Realizace: 2016
  • Foto ©: © Tim Crocker
  • autor: Studio Partington *
  • publikováno: * 13. 9. 2017
  • zdroj: * RIBA Awards

Mohlo by vás zajímat

Generální partner
Hlavní partneři