
Architektura
/
bytové domy
Bytový dům od studia ov-a se prolamovanou fasádou otevírá výhledům na Berounku
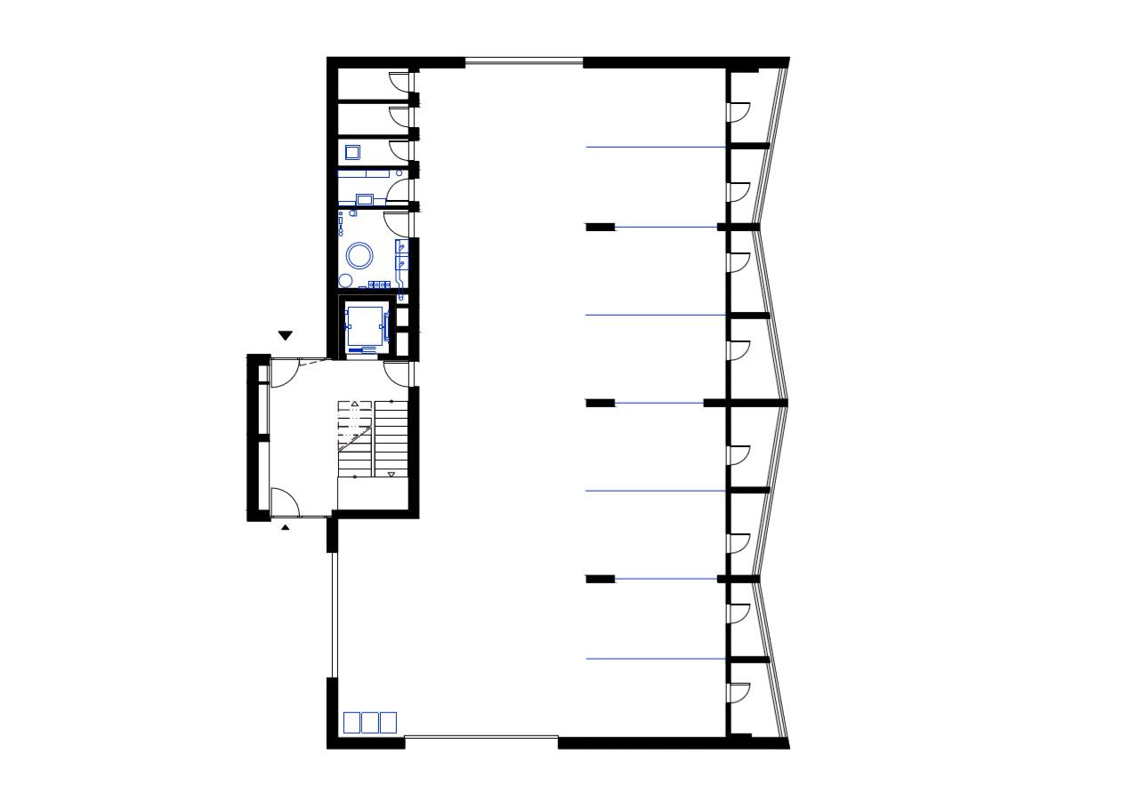
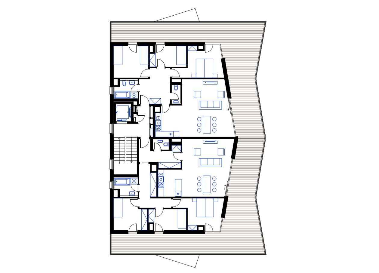
Zeleň, klid a výhled na protékající Berounku. Potenciál, kterým nábřežní pozemek v Berouně disponoval, se architekti ze studia ov-a pokusili maximálně využít a do blízkosti vodního toku tak navrhli pětipodlažní bytový dům s dynamicky formovanou fasádou. Ostré, geometrické zalamování hmoty vytváří pomyslný kontrast k měkkým zákrutům řeky a napomáhá všechny byty dostatečně otevřít výhledům do přírodního okolí.
OVA , 17. 9. 2019
- Autoři: Jiří Opočenský, Štěpán Valouch, David Balajka, Romana Bedrunková
- Ateliér: OVA
- Země: Česká republika
- Město: Beroun
- Realizace: 2019
- Zastavěná plocha: 413.00m2