Compass Architekti ukryli rozlehlé zázemí horského střediska do terénu slovenského pohoří
Maximální splynutí stavby s terénem – to byl hlavní cíl studia Compass Architekti při návrhu nového zázemí horského střediska na severu Slovenska. Přirozený sklon vrcholu se odrazil také ve tvarech šikmých stropů a pochozích zelených střech.
EARCH.CZ , 22. 6. 2021
Do terénu
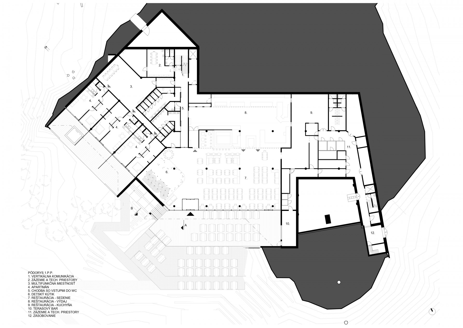
Vyhledávaný horský areál Bachledka Ski & Sun na vrcholu Malé Poľany navštíví denně až 6000 lidí. Z toho důvodu bylo na hoře potřeba vybudovat adekvátně velké zázemí pro celoroční provoz střediska, které kromě lyžování nabízí také cykloturistiku nebo stezku v korunách stromů. Aby ovšem nová stavba nad míru nenarušila přírodní charakter lokality, rozhodli se ji slovenští architekti z větší části zapustit přímo do terénu.
Veškeré prostory, které nevyžadují přímé denní světlo, situovali architekti do podzemí. Při dispozičním řešení významně napomohla i orientace svahu směrem na jih. Atraktivní vnitřní prostory restaurace tak díky velkým proskleným plochám nabízejí návštěvníkům úchvatné výhledy na horský masiv Belianských Tater. Stavba plynule kopíruje tvar svahu díky sešikmeným okrajům zelené střechy.
Více k tématu

Bezbariérovost
Jednou z největších výzev, se kterou se museli architekti vypořádat, bylo zajištění bezbariérového přístupu z horní plošiny na nižší úroveň terasy s restaurací a potom dále až ke vstupu na stezku v korunách stromů. Toho architekti dosáhli pomocí vnějšího schodiště s traverzující rampou. Toto řešení uspořilo mnoho místa na nejdůležitější jižní fasádě, která díky tomu zůstala z větší části volná. Zkrátit délku rampy pomohl i návrh svažité střechy, která klesá od horní plošiny směrem ke schodišti. Zalamovaný a sešikmený strop v interiéru tak odráží nejen požadované splynutí s terénem, ale i optimální funkční řešení pohybu návštěvníků.
„Rozhodli jsme se vytvořit přechod v centrální poloze jižní fasády, čímž vznikl přímý vizuální kontakt mezi horním plató a nástupem na Stezku. Zároveň se tím rozdělila celistvá plocha fasády na část restaurační a část, kterou zaujímají apartmány. Tyto části navíc nejsou v jedné rovině, ale kopírují vrstevnici, což přináší hned dvě výhody najednou. Jednotlivým apartmánům poskytuje toto řešení větší soukromí a zároveň jsme tím snížili množství potřebných terénních úprav,“ popisují komplexnost návrhu architekti z Ateliéru Compass.

Dvojité využití
Jako základní materiály zvolili architekti beton a dřevo, které ve své přirozenosti a syrovosti ladí se svým horským okolím. Pro bednění stropu posloužily smrkové desky, které umožnily vykládat složité tvary. Výsledná textura pohledového betonu tak současně reaguje na smrkový obklad stěn. Části bednících desek autoři následně důvtipně použili na dělící zástěny na toaletách. Zatímco v exteriéru hraje prim beton, v interiéru se ve velké míře uplatňuje smrkové dřevo, které doslova obaluje pokoje apartmánů nebo se uplatňuje v podobě obkladu barových pultů či dělících příček.
Většinu plochy nižšího – hlavního – podlaží zaujímá restaurace s potřebným zázemím. Daleké výhledy umožňují prosklené plochy sloupko-příčkové fasády Aluprof na celou výšku prostoru. Vedle 180 míst k sezení mohou návštěvníci využít i barový ostrov a samoobslužný výdej, který uspokojí poptávku i v návštěvních špičkách. Na prostor restaurace dále navazuje prostorná venkovní terasa s 350 místy a pomocným terasovým barem. Díky vysokým prolamovaným stropům, světlým materiálům i velké ploše prosklení působí restaurace i přes nemalou hloubku prostoru vzdušně a prosvětleně.

Ubytování na hoře
Do nižšího podlaží situovali architekti i tři téměř identické apartmány, které orientovali jihozápadním směrem. Apartmány tvoří hlavní obytný prostor s kuchyňským koutem, dvě ložnice propojené šatnou a hygienické zázemí. Nad šatnou se navíc nachází ještě skrytý spací kout přístupný po žebříku. Prosvětlení místností v hloubce dispozice vyřešili autoři pomocí nadsvětlíků a okna nad kuchyňskou linkou. Do jednotlivých apartmánů se vstupuje skrze společný multifunkční prostor, který může sloužit pro podávání snídaní, jako dětská herna či televizní místnost. V případě potřeby je možné prostor jednoduše přetvořit na učebnu či konferenční sálek.

Velká hloubka podzemní části si vyžádala použití světlíků. Ty architekti kvůli ochraně skla před lyžaři spojili s lavičkami umístěnými na pochozí střeše. Vyšší podlaží slouží pro výstup z lanovky a ze stezky v korunách stromů, do jehož blízkosti architekti situovali prodejnu suvenýrů a malý bar. Obě podlaží spojuje jak vnější schodiště s rampou, tak vnitřní vertikální komunikace.





- Ateliér: Compass Architekti
- Autoři: Juraj Benetin, Matej Grébert, Roman Janata
- Spolupráce: Miroslava Gašparová
- Země: Slovensko
- Město: Ždiar
- Ulice, číslo: Bachledova dolina 702
- PSČ: 059 55
- Datum projektu: 2018
- Realizace: 2019
- Užitná plocha: 2 075.00m2
- Zastavěná plocha: 2 020.00m2
- Poznámka: Spoluautorka Miroslava Gašparová - interiérová architektka apartmánů