Domov mladé rodiny. 3+1 ve vršovickém činžáku má původní parkety i nové okno do kuchyně
Byt v centru Prahy, který má blízko školu, park, nádraží, nebo dokonce i říčku. To je v dnešní době sen nejedné mladé rodiny. Ten svůj si nedávno splnil pár se dvěma dětmi. Rekonstrukci bytu jim navrhly sestry ze studia Schwestern.
Sára Kročková , 28. 8. 2024
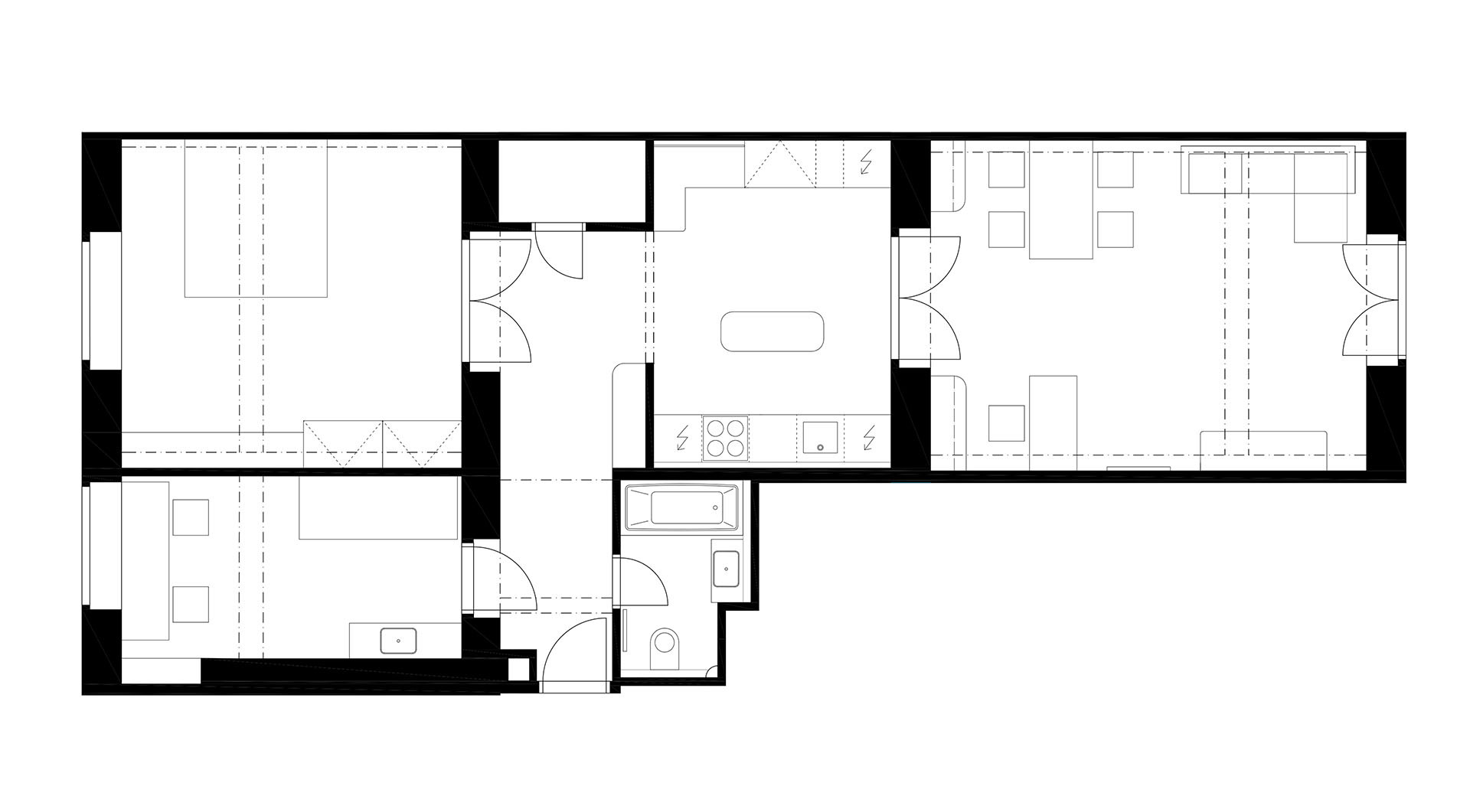
Byt v činžovním domě v pražských Vršovicích prošel rekonstrukcí, která se obešla téměř bez zásahů do dispozice. „Cílem bylo najít citlivé propojení původních prvků s novými a s minimálními dispozičními změnami vytvořit fungující prostor pro mladou rodinu,“ popisují počáteční vizi projektu architektky Monika Cihlářová a Iveta Šalamounová. To se povedlo – původní repasované prvky se zde mísí s nápaditým nábytkem z dřevěné překližky.

Beze změny dispozice
Při rekonstruování se investoři i architekti často snaží vyhnout zbytečnému bourání dělících konstrukcí. V původním bytě byla dispozice natolik kvalitní, že se bourat téměř nemuselo. Ložnice, dětský pokoj, koupelna i obytný prostor zůstaly půdorysně zachovány. Jediná změna nastala mezi chodbou a kuchyní. Otvor mezi těmito místnostmi byl zvětšen a v dělící příčce také vznikl kruhový otvor. Motiv kruhu se v bytě dále opakuje i na nábytku či doplňcích.
Díky zvětšení otvoru se kuchyň bez oken podařilo prosvětlit a opticky zvětšit. Místnost bez oken byla dlouho předmětem diskuse. Autorkám se ale povedlo vytvořit kompromis, se kterým je rodina spokojená. Světlá kuchyň rozložená na obě stěny s ostrůvkem uprostřed působí příjemným dojmem. „Pracovní ostrůvek má mimo svou praktickou funkci zajišťovat lepší přehled z kuchyně do ostatních prostorů. Zaoblené rohy ostrůvku mají eliminovat pocit bariéry,“ dodávají architekty ze studia Schwestern.

Dvoukřídlými dveřmi se dostáváme z kuchyně do obýváku, do nějž světlo proudí velkým oknem na ose dveří. V obývacím pokoji mohou trávit čas všichni společně – navíc v možném kontaktu s někým, kdo je právě v kuchyni.
Koupelna prošla kompletní rekonstrukcí. Její důmyslné řešení maximálně využívá poměrně malý prostor. Střídmé materiály jako bílý obklad a nábytková překližka v kombinaci s dekorativní dlažbou působí útulným dojmem.

Propojení původního s novým
Dřevěné parkety se při rekonstrukci povedlo zachránit – procházejí celým bytem a sjednocují prostor. Další vzácné prvky, jež se podařilo repasovat, jsou původní dveře a článkové radiátory. Navozují v bytě atmosféru starých časů, ale v kombinaci s novými prvky působí nadčasově.
Nové prvky dále popisují autorky: „Nově bylo navrženo osvětlení a veškerý vestavěný nábytek z březové překližky v kombinaci se světle šedou deskou. Nábytek z překližky těží z možností tohoto materiálu a generuje zajímavé detaily jako jsou zaoblené rohy či perforace.“ Nábytek z překližky je vyrobený v truhlářství jejich rodiny.
Více k tématu
Dvě sestry
Jak už samotný název ateliéru Schwestern napovídá, za návrhem nejen tohoto, ale i dalších přibližně třiceti bytů, stojí dvě sestry. Monika Cihlářová a Iveta Šalamounová se věnují především rekonstrukcím městských bytů pro rodiny. Vyrostly v rodině truhláře a překližkový nábytek z rodinné truhlárny se stal součástí jejich architektonického rukopisu.
- Ateliér: Studio Schwestern
- Země: Česká republika
- Město: Praha
- Realizace: 2022
- Užitná plocha: 85 m²
- Nábytek: Profil nábytek a.s.
- Fotograf: Nikola Tláskalová