Architektura / rodinné domy

Dřevěná chata od studia DDAANN nabízí plný komfort na dvanácti metrech čtverečních

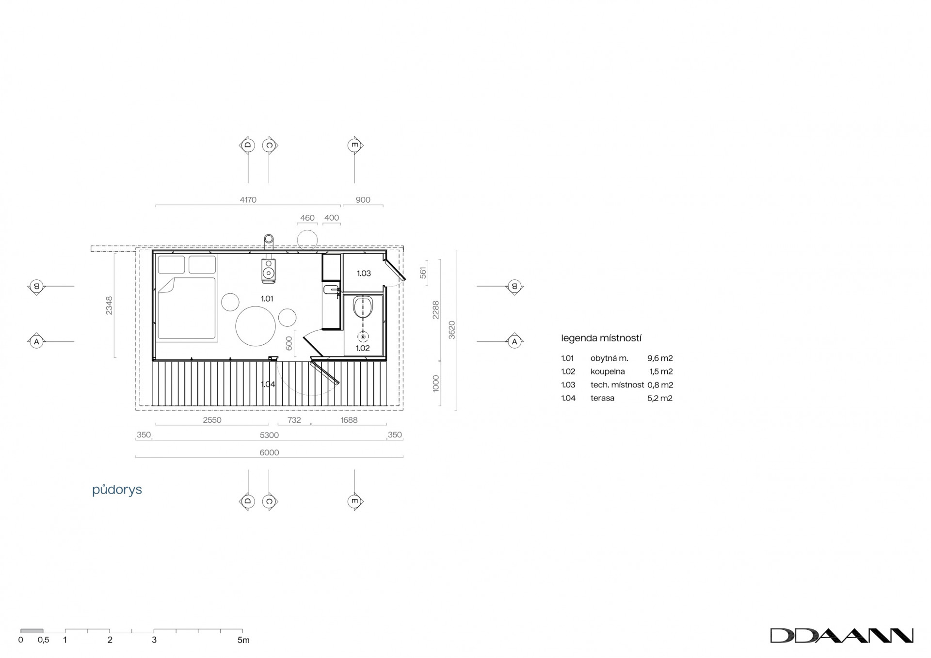
Architektonické studio DDAANN vedené Danielem Baudisem a Danielem Rohanem vyvinulo systém prefabrikovaných chatek, které lze jednoduše sestavit svépomocí. Konstrukci chaty tvoří masivní modřínové a smrkové dřevo, přičemž její černý exteriér silně kontrastuje se světlým interiérem. V obytné části chatky najdeme postel, kamna a kuchyň, její druhou část pak zabírá technická místnost a toaleta se sprchou. Celou polovinu stěny v obytné části chatky pak tvoří velké fixní zasklení, které nabízí výhled do okolí a posiluje kontakt mezi interiérem a přírodou.

DDAANN , 5. 2. 2020

  • Autoři: Daniel Baudis, Daniel Rohan
  • Ateliér: DDAANN
  • Země: Česká republika
  • Realizace: 2019
  • Město: Smržovka
  • Datum projektu: 2018
  • Realizace: 2019
  • Užitná plocha: 12.00m2
  • Zastavěná plocha: 17.00m2
  • autor: DDAANN *
  • publikováno: * 5. 2. 2020
  • zdroj: * Autorská zpráva

Klíčová slova:

chata DDAANN Daniel Rohan

Mohlo by vás zajímat

Generální partner
Hlavní partneři