 
					
                    				Když staví architekt pro přátele: rekonstrukce bytu s knihovnou
Někdy nás naše rozhodnutí provázejí takřka po celý život a nejinak je tomu v případě architektury, jejíž trvanlivost a stálost ji od ostatních uměleckých profesí vymezuje. Za proměnou bytu ve slezské metropoli Opavě stojí autoři ze studia Henkai Architekti a váže se k ní hned dvojí legenda. Ze starého bytu se vykřesal prosvětlený a vzdušný prostor – vzhledem k zálibě investora v entomologických sbírkách můžeme mluvit doslova o vylíhnutí motýla z kukly. Byt ale zároveň nese otisk dlouhodobého přátelství, jehož zůstává trvalou připomínkou.
Tomáš Čech , 28. 3. 2017
Příběh celé rekonstrukce se začal odehrávat již na základní škole. Dva malí chlapci jednoho dne usedli do stejné lavice a takto vzniklé přátelství přetrvalo až do dospělosti. Po letech, když už z dětí byli muži, se z jednoho stal lékař a z druhého architekt. Jak prozíravé bylo posadit se do lavice s budoucím architektem, se ukázalo ve chvíli, kdy chtěl mladý pan doktor vybudovat domov pro svou rodinu a měl k dispozici přítele a jeho pomocnou ruku.
Spolupráce začala ještě před nákupem samotné nemovitosti a architekti se tak podíleli již na jejím výběru. Ze třech finálních možností padla volba na byt ve čtyřpodlažním domě z počátku 20. století. Celkem 8 bytových jednotek vytváří příjemné měřítko, poloha domu zajišťuje pěší dostupnost jak centra města, tak investorova zaměstnání.
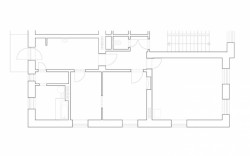
Záměrem bylo vytvořit prostředí pro spokojený život čtyřčlenné rodiny, a tak byla navržena změna dispozice z třípokojového na čtyřpokojový byt. Na celkové ploše 91 m2 to díky citlivost architektů nebyl problém. Vstupní hala přímo navazuje na kuchyň a jídelnu, směrem do ulice je pak velkorysý prostorný salón. Dominuje mu knihovna, království majitele domu. Má zde dostatek místa pro své milované knihy, přírodovědecké materiály i sbírku motýlů. Ložnice jsou následně situovány do zadní, soukromější části bytu a mají kontakt s vnitroblokem. Jedna z nich je vybavena i balkónem, kde rodina pěstuje rajčata a bylinky.
Zájmy majitele zároveň ovlivnily vizuální stránku celého interiéru. Díky výrazné barevnosti přebalů knih a entomologických vzorků byly zvoleny neutrální materiály, jež tvoří nerušivé pozadí. Uchována a částečně doplněna byla dubová olejovaná podlaha, v provozně náročných místech je použita šedá litá. Většina nábytku je vyrobena z matně lakované MDF desky.
Propojení architektury a života v práci studia Henkai Architekti s sebou naneštěstí nenese pouze šťastné události. Michal Nejezchleb, polovina autorské dvojice studia, bohužel před časem tragicky zemřel. Jeho práce ale žije dál. Byt v Opavě, jeho knihovna, klidné, příjemné a věřme že i radostné prostředí domova zůstávají Michalovým trvalým odkazem a životním otiskem, stejně jako jeho ostatní díla. I po odchodu svého tvůrce slouží ostatním k tomu, aby v nich mohli dále žít a tvořit. Osobní příběh jednoho rekonstruovaného bytu připomíná křehkost lidského života, ale zároveň je mementem architektonické tvorby. Ostatně, málokterá jiná profese po sobě zanechává tak trvalý odkaz jako právě architektura.
- Autoři: Michal Nejezchleb, Daniel Baroš
- Ateliér: henkai architekti
- Země: Česká republika
- Město: Opava
- Datum projektu: 2014
- Realizace: 2015
- Užitná plocha: 91.00m2
- fotografie: BoysPlayNice
 
                             
                             
                             
                             
                             
                                 
            
         
            
         
            
         
            
         
            
         
            
         
            
         
            
         
            
         
                             
                             
                             
                             
                             
                             
    
	 
            		 
            		 
            		 
            		 
            		 
            		 
            		 
            		 
                     
                     
            		 
            		 
            		 
            		 
            		 
                     
					 
                                                                                                             
                                                         
                                                         
                                                                                                             
                                                         
                                                         
				 
				 
				 
				 
				 
				 
				 
				 
				 
				 
				