Luxusní vila s odvážnou konstrukcí levituje nad strmým svahem
Prostorný a luxusní dům díky odvážné konstrukci doslova levituje nad strmým pozemkem a nabízí svým majitelům výjimečné bydlení s výhledy na východní pobřeží Španělska.
Kristýna Korčáková , 24. 6. 2022
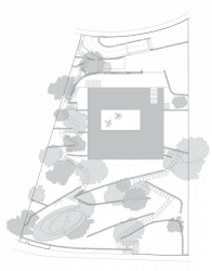
Borriol je španělské město na východním pobřeží Španělska asi 50 kilometrů od Valencie. Vyznačuje se kopcovitým terénem, který hrál zásadní roli také v případě projektu luxusního rodinného domu od dvojice architektonických studií OAB a ADI.
Pokud jste příznivci Karla Pragera a zvláště nové budovy Národního muzea ze 70. let, tato stavba si vás získá. Jedná se o nesené těleso s dvoupatrovou základnou, jež je usazena ve svahu a vynáší samotnou hmotu domu vysoko nad zemí.
Více k tématu
Pozemek ve svahu je dělený na několik teras, přičemž ho zpevňují kořeny borovic a rohovníků. Právě specifická povaha místa vedla architekty k rozhodnutí nezasahovat do terénu a nekácet stromy. Namísto toho využívají prefabrikovanou konstrukci, která levituje nad svahem. Provozní části a garáž jsou skryté a s domem propojené v podzemí.
Svrchní vrstvu fasády tvoří ocelové plechy, které díky svému zvlnění lépe brání nadměrnému přehřívání interiéru. Strana orientovaná ke svahu je celá prosklená, a tak interiér pokračuje plynule na terasu. Ta díky svému nepravidelnému tvaru nabízí vítaný stín v průběhu celého dne. Slunce je hlavním zdrojem energie pro ohřev vody díky střešním solárním panelům. Provoz domu se zároveň neobejde bez klimatizace.

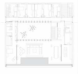
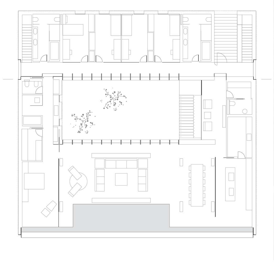
Interiér nabízí díky vyvýšení výhledy do všech stran. Jde o téměř čtvercový půdorys s atriem, do kterého vedou z domu schody. Svah umožňuje projít zahradou pod domem. I přes volně plynoucí prostor lze uvnitř rozlišit čtyři celky: soukromou část s pokoji a dvěma koupelnami podél chodby, dvě souběžné části vybíhající nad svahem, z nichž jedna zahrnuje ložnici s koupelnou a šatnou. Protější křídlo pak disponuje kuchyní s další koupelnou. Čtvrtou částí je rozlehlý obývací pokoj, který vede na terasu s výhledem do krajiny, při kterém se až zastavuje dech.
Jak materiály, tak dispozice domu jsou neskrývaným vyjádřením luxusu. Tmavě hnědé dřevo pokrývá podlahy a schody vedoucí do atria, tvoří také okenní rámy a strop nad krytou terasou. Zaujme i prostorná kuchyň z nerezové oceli. Neviditelné posuvné dveře nechávají prostor volně plynout a umožňují uživatelům projít celým domem kolem dokola.

- Ateliér: OAB Architecture, ADI
- Země: Španělsko
- Město: Borriol
- Realizace: 2011