
Místo vůně sladu loftové byty, restaurace a supermarket. Pivovar, ve kterém se bydlí
Vedle řeky Odry ve Vratislavi stál starý areál pivovaru. Nová rekonstrukce respektuje historii, ale místo získalo novou identitu. Stalo se novým centrem ve městě.
EARCH.CZ , 2. 7. 2024 / Advertorial
Pivovar Schiltheiss, později známý pod jménem Piast, byl založen v roce 1893. Najdete ho u řeky Odry ve Vratislavi, jen 15 minut od centra města. Dnes areálu neřekne nikdo jinak než Vratislavské pivovary. Je to místo, kde se podařilo propojit historické dědictví s novodobým architektonickým zásahem.
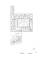
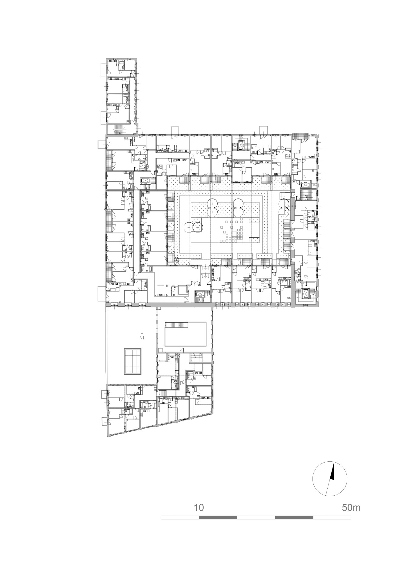
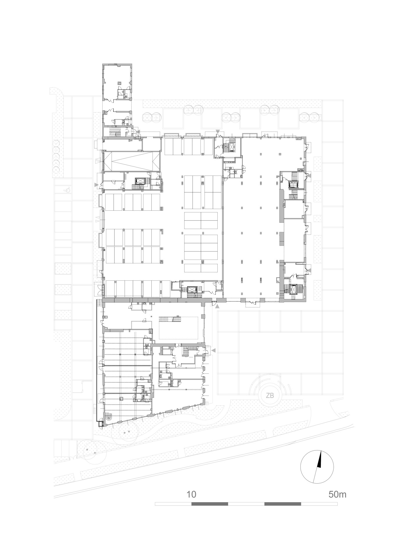
Býval to největší pivovar Evropy, ale pomalu chátral. Revitalizace areálu, vedená architektonickým studiem SRDK, však znovu aktivovala celé území. Architekti opravili staré tovární budovy a přidali tři nové bytové domy, čímž vytvořili nové centrum pro čtvrť Olbin ve Vratislavi. Celý areál v současném stavu tvoří celkem třináct budov.
807 bytů, coworkingové prostory, služby, půjčovna kajaků, venkovní kino, podzemní parkování, obchodní, kancelářské a kulturní prostory, supermarket a restaurace s pivními zahrádkami... všechny tyto služby dodávají komplexu různorodý charakter, a tím pádem areál oslovuje co nejširší skupinu lidí.

„Klíčové je veřejné prostranství, které vzniklo mezi objekty v areálu,“ říkají architekti ze studia SRDK. Areál má fungovat jako nové veřejné prostranství, otevřený prostor přístupný místním rezidentům i širší komunitě. Cílem bylo zachovat co nejvíce původních historických budov a zároveň přidat objekty nové, které budou vyhovovat místnímu plánu, a do svého programu zahrnou obytné i komerční funkce.
Obytné objekty definují tři hlavní veřejná náměstí - pivovarské, umělecké a tržiště. Ty jsou propojeny půvabnými uličkami a zelenými zákoutími, které lákají k odpočinku a procházkám. Zajímavým místem areálu je také původní chmelnice, která se nachází před budovou bývalé konírny.
Veřejný areál pro pěší i cyklisty
Revitalizace bývalého pivovaru přinesla nový život do městské čtvrti. Areál je nyní otevřený a průchozí pro pěší i cyklisty, poskytující atraktivní a živý prostor pro práci i odpočinek. Nový pivovar je koncipován podle principu patnáctiminutového města, kde obyvatelé mohou splnit většinu svých denních potřeb během patnácti minut chůze nebo jízdy na kole.
80 % parkovacích míst bylo přesunuto do třípodlažního podzemního parkoviště, což umožnilo vytvoření velkých veřejných ploch pro chodce a cyklisty. Veřejný prostor je doplněn travinami, keři, květinami a nízkými stromy. Celkově tvoří zelené plochy téměř 40 % areálu.

Nádech historie
Při rekonstrukci architekti kladli důraz na zachování historického charakteru místa. Původní atmosféru areálu zachovali díky citlivé rekonstrukci historických budov, které si, i přes moderní zasklení a další prvky, zachovaly původní tvář.
V areálu se také znovu použilo mnoho historických prvků, které architekti našli na místě. Například původní masivní sloupy se podařilo zachránit a znovu použít v konstrukci starých budov. Historické nosníky byly použity jako treláže pro rostliny a části továrních strojů jako skulptury ve společných prostorách.
Více k tématu
Použité produkty
V celém areálu Vratislavských pivovarů byly použity produkty od firmy Aluprof. Standardní dveře a okna jsou navrženy z profilové řady MB-86SI. V budovách celého areálu byly použity produkty z profilových řad s požární odolností MB-118EI a MB-78EI. Fasádní konstrukci tvoří prvek MB-SR50N HI+. V rozsáhlejších prosklených částech objektu je navržena požárně odolná fasáda MB-SR50N EI.
- Autoři: Dorota Jarodzka-Śródka, Kazimierz Śródka
- Ateliér: SRDK
- Spolupráce: Agnieszka Boreczek-Sinkiewicz, Barbara Kura, Jakub Świerczyński, Wojciech Krassowski, Jan Kołodziej, Barbara Sęk-Dejnek, Piotr Surmiak, Małgorzata Sieradzan
- Země: Polsko
- Město: Wroclaw
- Adresa:: Jedności Narodowej 204/210, 50-303 Wrocław, Polsko
- Fotograf: SRDK studio
- Užitná plocha: 57 900 m2
- Realizace: 2018-2023