
Neorenesanční vilu korejského velvyslanectví v Praze doplnili architekti o soudobé křídlo
Velvyslanectví Korejské republiky v Bubenči prošlo nedávno generální rekonstrukcí a dostavbou o moderní západní křídlo. Nová přístavba se citlivě přizpůsobuje původní zástavbě a díky tomu dobře zapadá do této jedinečné pražské čtvrti.
EARCH.CZ , 13. 7. 2023
Budova Velvyslanectví Korejské republiky se nachází ve vilové oblasti v jižní části Bubenče. Své domy si zde na přelomu 19. a 20. století začali stavět bohatí podnikatelé i slavní umělci. V současné době již mnoho vil neslouží k rezidenčním účelům, nýbrž k těm reprezentativním – ve většině z nich sídlí ambasády. Přestože toto návrší nad parkem Stromovkou ohraničuje železniční trať a poměrně rušná ulice Milady Horákové, panuje zde klid a oblast je tak velmi lukrativní adresou.
Více k tématu
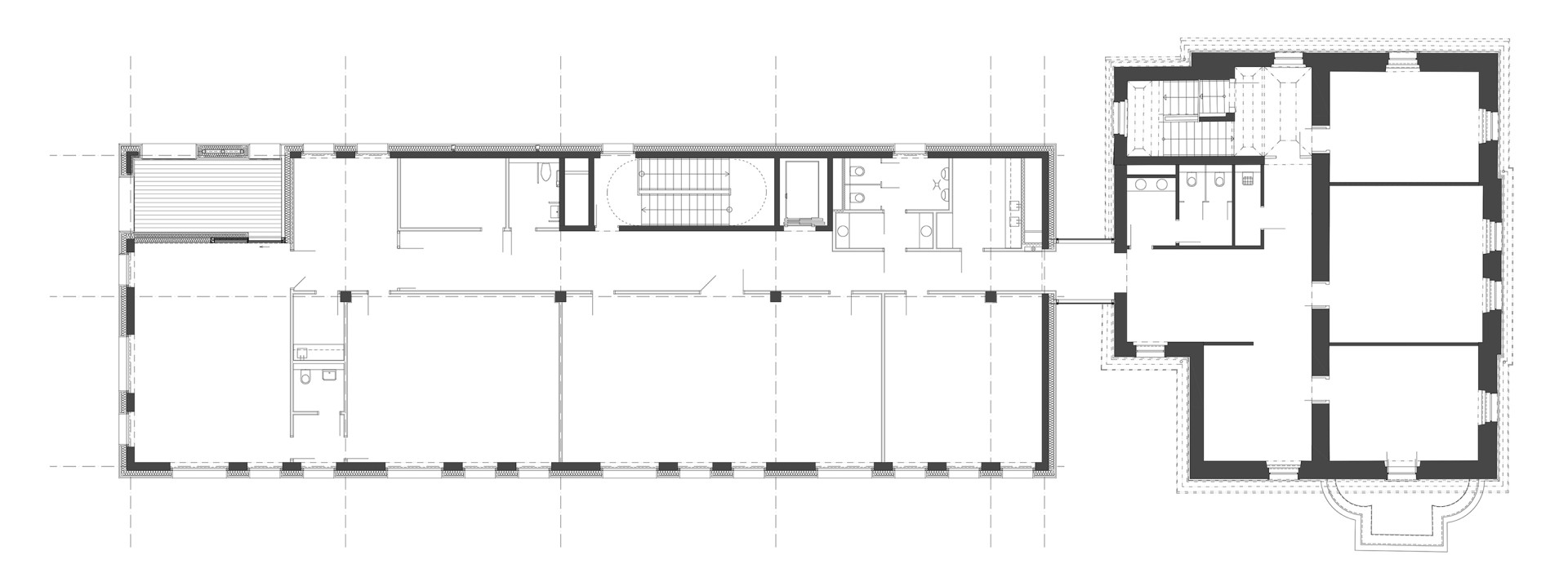
Nové sídlo ambasády Korejské republiky spojuje staré s novým. Architekti z libereckého studia SIAL zrekonstruovali původní novorenesanční vilu orientovanou do ulice a v zahradní části pozemku k ní připojili moderní křídlo.

Cílem rekonstrukce vily, která je součástí uliční fronty, bylo zachovat její původní výraz. Architekti čerpali z původních plánů objektu a ten tak nyní věrně odpovídá jeho podobě před rokem 1909. Veřejnosti přístupný interiér stavby zdobí originální prvky či jejich kopie.

Západní přístavba představuje méně formální část objektu, přesto skrytě čerpá inspiraci z architektury téměř 120 staré vily. Jednoduchý kvádrový objem s plochou střechou působí díky pravidelně rozmístěným oknům oproti historickému objektu jemněji. Travertinový obklad fasády doplňuje vertikální kanelování. Konstrukční výška a výška atiky odpovídá původnímu domu.
Zahradu autoři přizpůsobili k pořádání společenských akcí, které k chodu ambasád patří. Travnaté plochy doplnili asijskými odrůdami rostlin a pobytovými palubami.
- Autoři: Jiří Buček, Jiří Chmelík, Petr Kadavý, Iva Erlebachová
- Ateliér: SIAL architekti a inženýři spol. s r.o.
- Spolupráce: Zdeněk Dřevěný
- Země: Česká republika
- Město: Praha
- Adresa:: Pelléova 15, Praha 6
- Projekt: 2020
- Realizace: 2022
- Užitná plocha: 2700 m²
- Vedoucí projektu: Jiří Tauš, Taeho Yoon