
Olympiáda udržitelně. Ekologické modulární domky slouží ubytování návštěvníků
Kompaktní, šetrné a jednoduché – přesně takové jsou ekodomky v osadě Slow Town nově postavené v jihokorejské provincii Kangwon pro zimní olympijské hry 2018 v Pchjongčchangu. Vize výstavby miniaturních chatek o rozloze necelých 20 metrů čtverečních vycházela z potřeby rozšíření ubytovacích kapacit v regionu a současně z touhy zachovat okolní krajinu.
Tereza Suntychová , 13. 2. 2018
Olympijské hry v moderní podobě, jak je známe dnes, se pořádají již od roku 1896. Za tu dobu bylo pro účely velkolepého mezinárodního svátku sportu postaveno spoustu megalomanských komplexů. Ty ale chátrají a symbolizují zašlou slávu. Rok od roku proto olympijský výbor pracuje na zlepšení stavební i celkové udržitelnosti her. Organizační tým letošního zimního klání v Pchjongčchangu například kladl důraz na využití solární a větrné energie, recyklační infrastrukturu a síť veřejné dopravy po celém areálu. Kromě toho mají návštěvníci možnost ubytovat se v modulárních chatkách šetrných k životnímu prostředí. Otázkou ale stále zůstává, co se stane s obrovskými sportovními stavbami po ukončení jihokorejských her. V případě plánované olympiády v Paříži v roce 2024 se mluví o „nejzelenějších olympijských hrách vůbec“ – organizátoři totiž slibují snížení uhlíkové stopy na minimum v porovnání s předchozími ročníky. Ambiciózního cíle chtějí dosáhnout především cestou znovuvyužití starých sportovišť.
Více k tématu

Kromě šesti nových sportovních komplexů a deseti hotelů vznikla v Pchjongčchangu také osada z dřevěných domků s minimální ekologickou stopou. Projekt s příznačným názvem Slow Town reaguje na lokální nedostačující ubytovací kapacity a udržitelný charakter olympiády. Návrhu v provincii Kangwon, území s nejčistším ovzduším v Jižní Koreji, se chopily dvě kanceláře – jihokorejská The Plus Partners a americká DNC Architects.

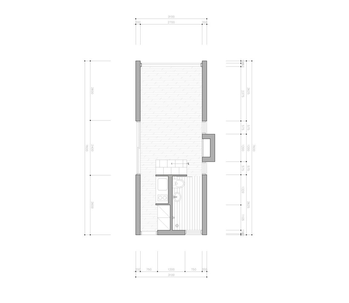
Chatky jsou založeny na populárním konceptu jednoduchého a prostorově úsporného bydlení „tiny houses“. Na skromnou plochu 19,8 m² se podařilo umístit vše potřebné – obývací pokoj, vestavěnou kuchyň, koupelnu a malou ložnici. Nechybí ani schodiště se zabudovaným úložným prostorem, které propojuje spodní a dolní prostor a zároveň slouží jako dělící příčka před vstupem do koupelny.
Ekodomek je možné díky modulární konstrukci volně přesunout z místa na místo. Jako hlavní materiál architekti použili dřevo. Hřejivý interiér v celodřevěném provedení v kombinaci se žlutou barvou a velkými okny vyvažuje vnější plášť chatky v kontrastní černé.

- Ateliér: DNC Architects, The Plus Partners
- Země: Jižní Korea
- Město: Pyeongchang-gun
- Ulice, číslo: Hoenggye 5-ri
- PSČ: 14-364
- Datum projektu: 2016
- Realizace: 2017
- Užitná plocha: 19.80m2