
Architektura
/
občanské stavby
Oxygen Home Kraków – nominace soutěže Ještěd F kleci #15
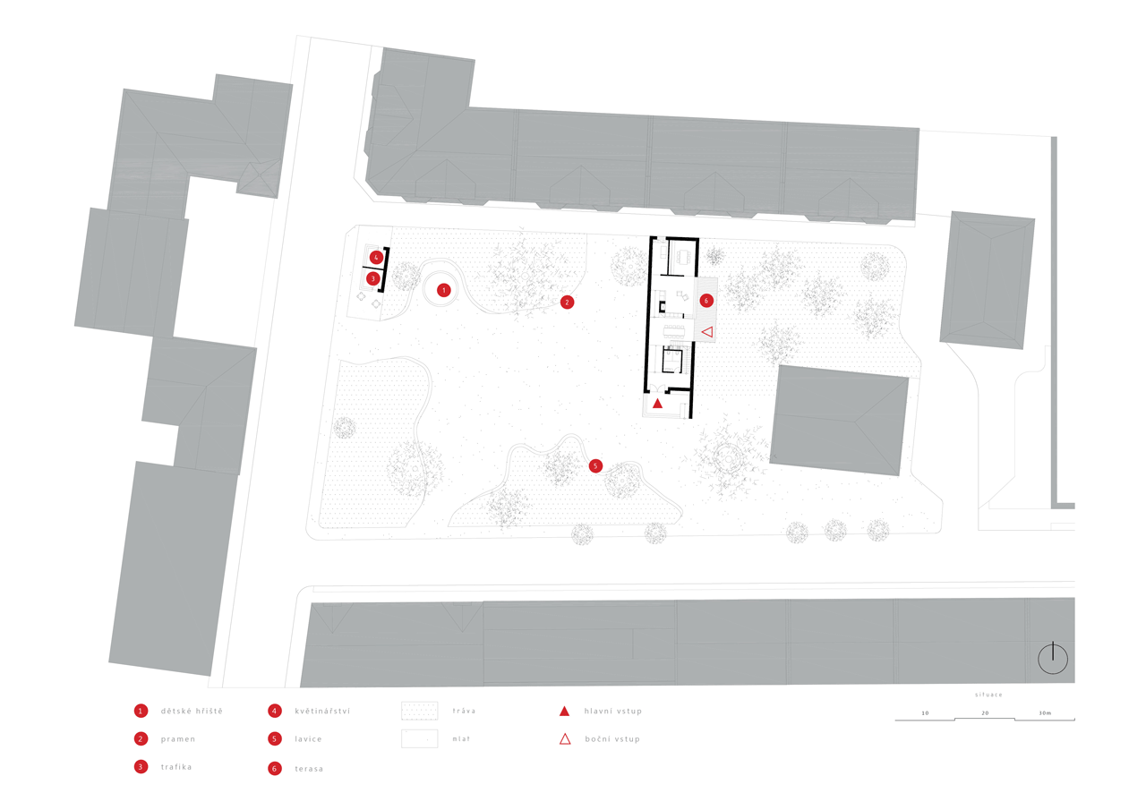
Maggie‘s Center (UK) je organizace zabývající se péčí o nemocné rakovinou s cílem poskytovat psychologickou podporu a možnost setkávání nemocným i jejich rodinám a přátelům. Právě pro tuto instituci pak Barbora Slavíčková v rámci soutěže navrhla krakówské Centrum pro nemocné rakovinou plic. Nominace na cenu Ještěd F kleci neminula ani tento projekt, neváhejte se tedy podívat.
Barbora Slavíčková , 1. 3. 2016
Více k tématu
- Autoři: Barbora Slavíčková
- Země: Polsko
- Škola: FUA TUL – Ateliér Suchomel & Šaml
- Město: Kraków
- Ulice, číslo: Plac Generala Wladyslawa Sikorskiego
- PSČ: 33-332
- Datum projektu: 2016