
V modrobílém kabátu. Atypický mezonetový byt v krčském paneláku prošel decentní rekonstrukcí
Architektka Mária Maninová navrhla rekonstrukci atypického mezonetového bytu na pražském sídlišti Krč, který vyčistila od přebytečných meziprostorů. Interiéru bytu nově dominuje barevná kombinace modré a bílé, která jej výrazově sjednocuje a navrací mu zašlý šmrnc.
EARCH.CZ , 20. 6. 2023
V posledních letech zažívají rekonstrukce bytů v panelácích boom a těší se nebývalé oblibě a popularitě. Kdysi považovány za nepříliš atraktivní bydlení, bývají dnes sídliště vyhledávanými lokalitami pro život. Vzrostlá zeleň, velké rozestupy mezi domy, občanská vybavenost na dosah ruky, kvalitní dispozice bytů. Konstrukce samotných bytů navíc nabízí poměrně velkou dispoziční variabilitu, což architektům umožňuje odvážná, radikální a experimentální řešení.
Více k tématu
„Investor nás oslovil už v roce 2011, ale nechtěl na projekt spěchat a preferoval, aby se vše neslo ve volnějším tempu. V té době bylo téma revitalizace panelových domů v plenkách a my prožívali zejména znechucení z jogurtových zateplováků. Rekonstrukce uvnitř domů řídily spíš stavební firmy, které vše dodávaly „na klíč“, architekti byli oslovováni minimálně. Za uplynulou dobu bylo zajímavé sledovat vývoj a rozšíření kvalitních realizací.“ upřesňuje architektka Mária Maninová.

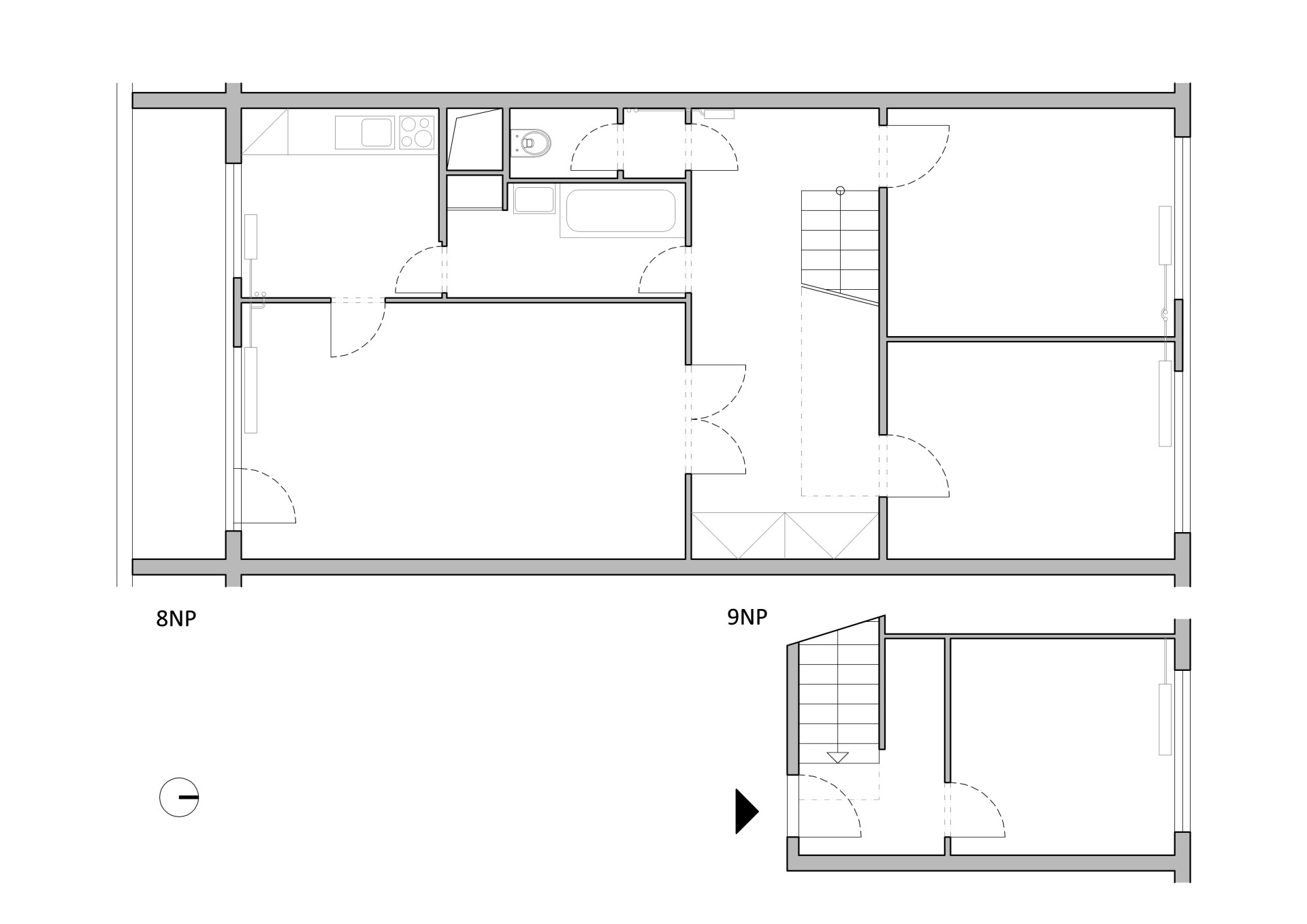
Sídliště Krč bylo realizováno v letech 1964 až 1971. Obecně a zjednodušeně se dá říci, že sídliště vznikající v 60. letech patří, co se týče urbanismu, k těm nejlepším u nás. Mezonetové byty jsou v rámci paneláku poměrně vzácnou a atypickou raritou. Na sídlišti Krč najdeme hned tři takové domy, ve kterých jsou jednotlivé mezonetové byty komponovány na přeskáčku, což v řezu vytváří efekt podobný do sebe vetknutým kostkám tetrisu. A v jednom z těchto domů se nachází i modrobílý byt.

Díky modrobílé barevnosti, která odkazuje k estetice Bauhausu a meziválečné moderny, působí interiér lehkým prosvětleným dojmem. Odkryté vedení elektroinstalací po povrchu v kombinaci s nahrubo natřenými panelovými stěnami dodává jinak čistému prostoru nádech nahodilosti a záměrné nedokončenosti. Výrazná modrá podlaha z polyuretanu dává vyniknout nábytku a interiérovým prvkům, zároveň příjemně odráží a roznáší světlo.
„Projekt se vyvíjel postupně, zadání bylo doplňováno a upravováno i dle zkušeností v prvních letech užívání. Některé prvky interiéru zůstaly po původních majitelích a byly znovu využity, svítidla v ložnici byla repasována, bruselská trojnožka s ulomeným rohem dostala novou desku z překližky a povrchem z marmolea, kovový čtvercový stolek se stal gramofonovým stolkem na kolečkách.“ uzavírá rekonstrukci autorka.

- Ateliér: Mária Maninová (MAAT)
- Země: Česká republika
- Město: Praha
- Realizace: 2023
- Projekt: 2011