Radikálně přímá cesta k nejlevnějšímu domu ve městě
V malé vesnici jen pár kilometrů od historického švýcarského města Chur navrhl místní rodák Raphael Zuber obyčejný bytový dům. Stavební program nedovoloval totiž žádné výstřednosti ani speciální péči při výběru materiálů nebo povrchů – rozhodujícím kritériem byla účelnost a finanční dostupnost. Cíl architekta a investora zněl zcela pragmaticky – postavit nejlevnější dům v obci.
Matěj Beránek , 28. 3. 2018
KVALITA PŘED VELIKOSTÍ
Oblast třicetitisícového města Chur ve východošvýcarském kantonu Graubünden zaujímá z hlediska současné architektury zcela mimořádné postavení. Hned v sousední vesničce Haldenstein zastrčené mezi okolními hory totiž už od sedmdesátých let žije a pracuje jeden z nejslavnějších architektů dneška Peter Zumthor, který si zde postavil vlastní rodinný dům s ateliérem. Na velikost samospráv se zde nehledí, jde o kvalitu. Vesnice se zhruba tisícovkou obyvatel se tak může chlubit například i bytovým domem od respektovaného česko-švýcarského architekta Miroslava Šika.
V samotném Churu pak sídlí hned několik výborných ateliérů. Kromě známých architektů a pedagogů z kanceláře Bearth & Deplazes například i malé studio Raphaela Zubera, který se přímo v Churu roku 1973 narodil. Zuber svou práci nedávno osobně představil na pražské přednášce v rámci cyklu Jiná perspektiva, který pořádá spolek Kruh Marcely Steinbachové.
CO S TÍM?
Zuber se proslavil hned svou první realizací – budovou mateřské a základní školy v jihošvýcarském městečku Grono. Se svým malým týmem čítajícím střídavě tři až pět architektů se pak podílel ještě na jedné realizaci, o které velmi poutavě vyprávěl během zmíněné přednášky.
Zubera oslovil majitel komplikované parcely ve vesnici Domat/Ems vzdálené sedm kilometrů od Churu, aby společně prodiskutovali nejvhodnější stavební záměr. Malá nepravidelná parcela v husté zástavbě nedovolovala velké zásahy. Místo kromě toho podléhá přísným stavebním regulím.
Švýcarská města se podle hostujícího profesora na prestižní ETH v Curychu potýkají se stejným problémem jako ta česká – lidé dnes už nechtějí bydlet v jejich centrech a raději se stěhují do příměstských suburbií, kde si postaví samostatný rodinný dům se snadnou automobilovou dostupností. Městečko Domat/Ems slouží právě jako suburbie Churu, s čímž bylo nutné při projektu počítat.
Zmíněnou parcelu obklopují úzké uličky bez možnosti zaparkování a každá nová bytová jednotka navíc musí zajistit parkovací stání hned pro dvě auta. Kvůli stísněnosti zástavby navíc nešlo příliš zasahovat do země. „Náš první úkol proto zněl: ‚Co bychom tam mohli vůbec postavit?‘,“ vzpomínal Zuber.
NEJLEVNĚJI, NEJVÍCE
“Dlouhých pět let jsme s klientem řešili, co bude nejvhodnější řešení, do čeho investovat. Nakonec jsem mu navrhl, aby celý projekt svěřil mně, že za něj byty postavím a zaplatím mu až zpětně, poté co je prodám,” říkal architekt. „Pro klienta to byla velká úleva, já šel ale do velkého rizika, neměl jsem totiž peníze.“
Takový model pro Zubera znamenal, že musí najít investora ochotného dát do projektu vlastní peníze. To se architektovi nakonec podařilo a společně se domluvili na podmínkách. „Od začátku projektu jsme si říkali, že to musí být nejlevnější dům ve vesnici,” upřesnil Zuber záměr, který určil veškerý další postup.
Raphael Zuber se s investorem domluvil na výstavbě bytového domu, který maximálně využije nepravidelnou plochu pozemku. Při volbě dodavatele hrály nejdůležitější roli dva faktory – spolehlivost firmy a nízká cena. Vypisovali proto nejrůznější tendry a vždy vybírali nejvýhodnější nabídku. Využívali tak výhradně prefabrikovaných výrobků a jiných produktů, které se na trhu běžně objevují. „Neměli jsme čas řešit pěkné materiály a sofistikované povrchy. To nás nutilo přemýšlet trochu jiným způsobem, než jsme zvyklí. Soustředili jsme se primárně na prostor,” dodává švýcarský architekt.
Investor s architektem vytěžili z pozemku maximum. Dům zastavěl největší možnou plochu i objem, jaké místní regulativy dovolovaly. Projekt musel například dodržet odstupové vzdálenosti pět metrů od okolních domů kvůli požární bezpečnosti.
ROZUMNÁ HODNOTA
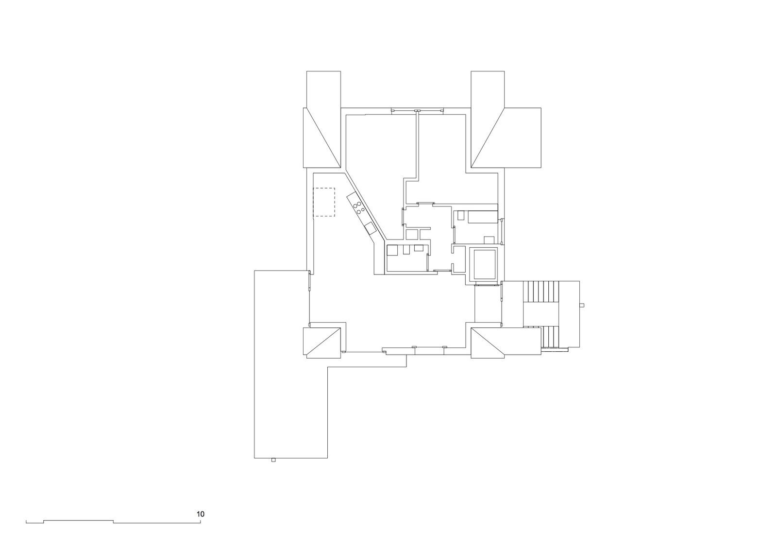
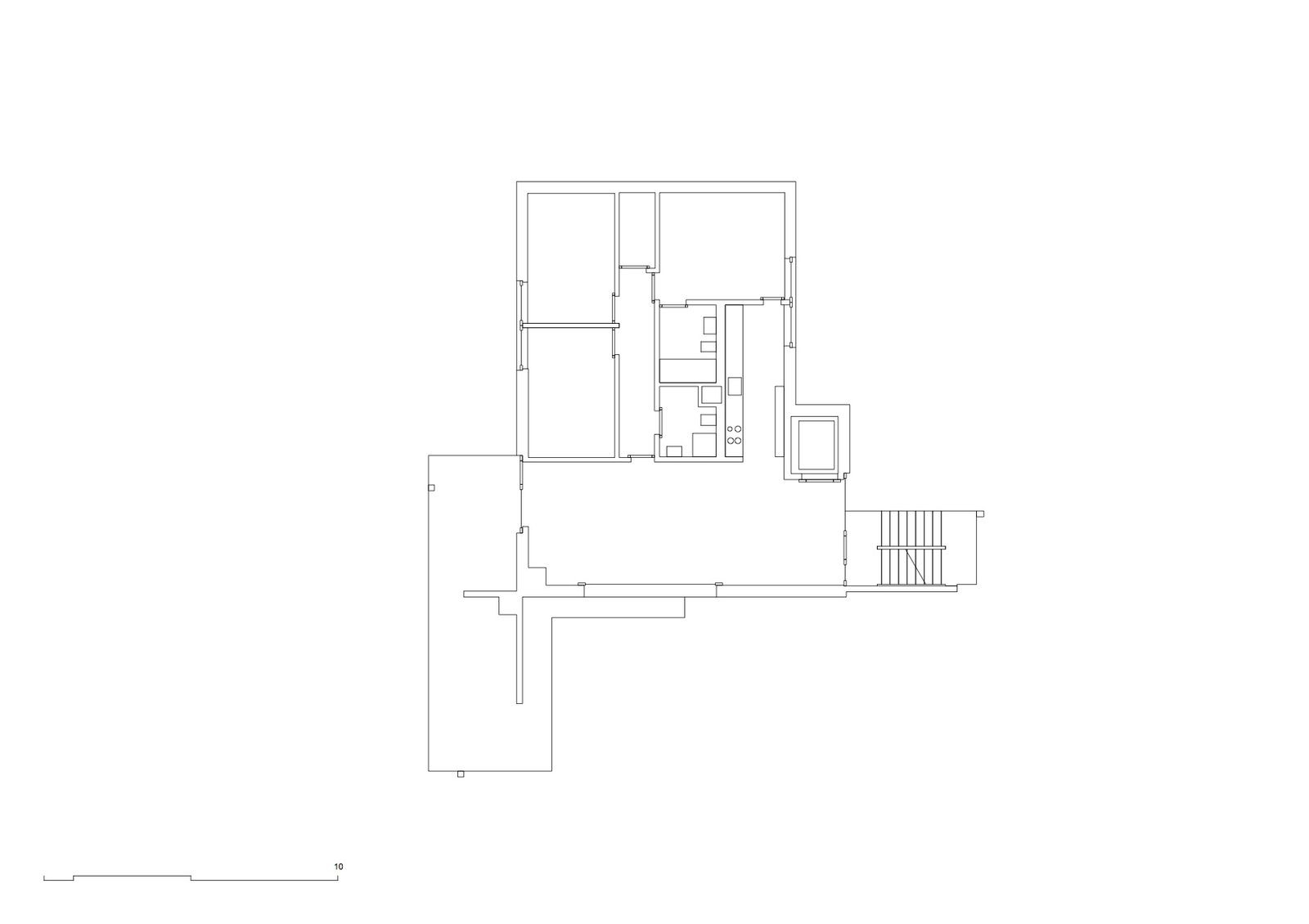
Při důrazu na efektivnost ovšem architekti přemýšleli také nad přidanou hodnotou stavby pro své budoucí obyvatele. Zvolili proto venkovní betonové schodiště, ze kterého se přímo vstupuje do jednotlivých bytů. Tím ušetřili mnoho místa pro dispozice. Vnitřní prostor bytů navíc navýšili o velké balkony, které se táhnou netradičně přes rohy podlaží. Velkorysost balkonů dokazují také čísla – byty zabírají 117 metrů čtverečních, balkony pak 42 metrů, tedy více než třetinu plochy interiéru.
Čtyři dolní patra mají shodný půdorys i zařízení, poslední páté patro se pak nachází v podkroví nepravidelné střechy, která je prý řešena zcela racionálně – nikdo ji takto nezamýšlel, její tvar jednoduše určily opět předpisy a potřeby stavby.
Snaha o dosažení co nejnižší ceny se promítla také do stavební stránky domu. Tu tvoří jednoduchá cihlová konstrukce, některé části jako například balkony nebo venkovní schodiště jsou pak z betonu. V domu najdeme výhradně standardizovaná plastová okna. „Výstřelek” představuje pouze rozměrné čtyřapůlmetrové fixní okno v obývacích pokojích. Podle architekta se jedná o „největší okno na trhu za rozumnou cenu”.
RADIKÁLNĚ PŘÍMĚ
Zuber zdůrazňuje, že při návrhu neřešil to, jak bude budova vypadat. „Když se podíváte na okolní domy, zjistíte, že používají stejné stavební firmy, chtějí být také levné. Přitom ale vypadají jinak než náš dům. Jejich stavebníci se totiž snažili, aby výsledek vypadal hezky.”
Cíl se podle slov architekta podařil. Budova byla levnější než ostatní podobné projekty a o byty byl velký zájem. „Po dokončení jsme mohli na trhu nabídnout opravdu nejlevnější byty. Za tři týdny byly všechny prodané.” Zuber také dodává, že všichni noví obyvatelé domu zachovali původně navržené dispozice a hráli si pouze s materiály v interiérech.
Raphael Zuber se současně domnívá, že bez předem definované myšlenky nemůže vzniknout kvalitní stavba. Koncept u návrhu bytového domu u Churu pak stručně shrnuje jako „radikálně přímý přístup”.
- Autoři: Raphael Zuber
- Země: Švýcarsko
- Město: Domat/Ems



