Řadovka rekonstruovaná na prosluněné bydlení

Přibližně polovina stávajících budov v Evropě pochází z let 1945 až 1980. Řada z nich je ale zastaralá a zaostává za novostavbami komfortem i vnitřním prostředím. Ani budovy v Nizozemsku nejsou výjimkou. Nejméně dva miliony z celkem dvou a půl milionu nájemního bydlení v zemi budou v příštích 10 letech vyžadovat rekonstrukci.
VELUX Česká republika, s.r.o. , 22. 12. 2017
Nizozemský projekt De Poorters van Montfoort se zabývá rekonstrukcí budov dle konceptu aktivního domu s využitím solárních technologií v nizozemském městě Montfoort, ale lze jej uplatnit kdekoliv. Zdejších 92 samostatných rodinných domků poskytovalo cenově dostupné bydlení pro místní rodiny od 70. let 20. století. Po téměř 40 letech jsou ale domy opotřebované, na poměry 21. století nepohodlné a trpí řadou nedostatků: průvan, málo světla, enormní náklady na energii a celkově málo místa. Podobná situace je také v Česku, kde podle aktuální studie Healthy Homes Barometer 2017, žije každý šestý Čech v budově, která negativně ovlivňuje jeho zdraví.
Rekonstrukce domů znamenala revitalizaci celkového pojetí a přinesla jim nový, moderní vzhled. Především ale změnila život jejich obyvatel. Edwin Hamelink, který ve čtvrti Poorterstraat se svojí rodinou strávil 18 let, věděl své jak o dosavadních nedostatcích: „Je třeba říci, že dům nebyl před rekonstrukcí zrovna pohodlný. To se teď změnilo. Žasneme nad tou spoustou místa v podkroví. Díky nástavbě teď máme čtyři ložnice. Pro rodinu se čtyřmi dětmi je to vynikající,“ vysvětluje Edwin Hamelink. Úkol přetavit koncept aktivního domu v praktickou rekonstrukci domů připadl architektonickému studiu BouwhulpGroep.
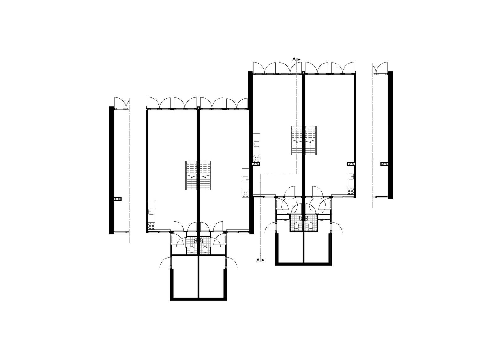
Architekti využitím podkroví zvětšili užitnou plochu, získali prostor pro střešní terasu a do interiéru tak získali přístup většímu množství světla. Změn doznalo i přízemí, první patro a schodiště. Vzhledem k tomu, že trávíme 90 % svého času uvnitř budov, mají vnitřní podmínky v domech zásadní vliv na naše zdraví a pohodlí. Dobré vnitřní prostředí je tedy klíčovým parametrem aktivního domu, a do návrhu musí být zapracován tak, abychom dosáhli kvalitního denního osvětlení, tepelného prostředí a kvality ovzduší v domě.
Větrání je zajištěno strategickým rozmístěním fasádních a střešních oken VELUX s nízkoenergetickým trojsklem ve všech podlažích. Díky tomu vznikne při otevření dálkově ovládaných střešních oken v nejvyšším patře v otevřeném prostoru schodiště komínový efekt, který odvede zatuchlý vzduch z dolních podlaží skrze střechu pryč. Tato strategie zajišťuje chlazení v letních měsících, v zimě pak cirkulaci vzduchu zajišťuje mechanická ventilace řízená čidly koncentrace CO2.
V celosvětovém měřítku mají vytápění, klimatizace a elektrické spotřebiče 40% podíl na celkové spotřebě energie v domě. Energetická účinnost a spotřeba energie jsou tak s ohledem na životní cyklus domu důležité faktory z hlediska klimatických změn i snižování celosvětové spotřeby energie. Konstrukce, orientace i stavební materiály aktivního domu jsou tedy optimalizovány pro využívání „zelené“ energie a zároveň její minimální spotřebu.
Dodávku elektřiny zajišťují solární panely a kolektory na střeše každého domu. Domy jsou totiž vytápěny tepelným čerpadlem, které získává energii pro provoz ze solárních modulů na střeše. Tím se snížila spotřeba tepla v domech na méně než pětinu a celková spotřeba energie je méně než poloviční oproti stavu před rekonstrukcí. Nepočítáme-li elektřinu spotřebovanou na osvětlení a domácí spotřebiče, je veškerá spotřeba energie pokryta z obnovitelných zdrojů, tj. ze solárních kolektorů, fotovoltaiky a tepelného čerpadla. To znamená, že 100 % energie pro domy pochází z obnovitelných zdrojů. Domy v Poorterstraatu získaly po rekonstrukci podle konceptu aktivního domu energetický štítek A++. Rekonstrukce má snížit náklady na energie na jeden dům o 130 eur měsíčně, což je více, než o kolik v důsledku rekonstrukce vzroste nájemné.