
Rekonstrukce jako manifest architektů. Ateliér ORA zafixoval ruinu staré venkovské usedlosti
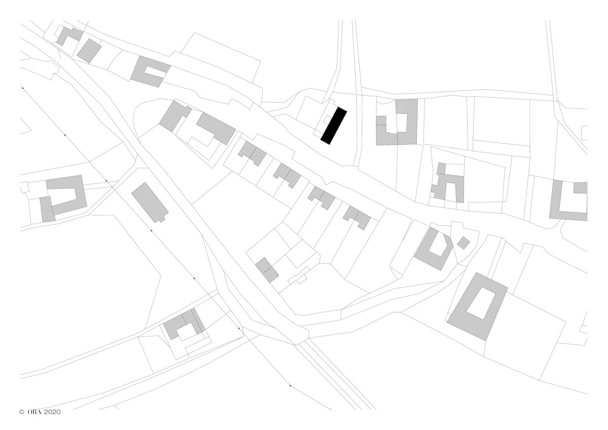
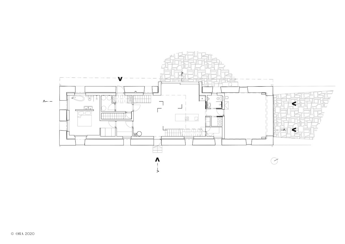
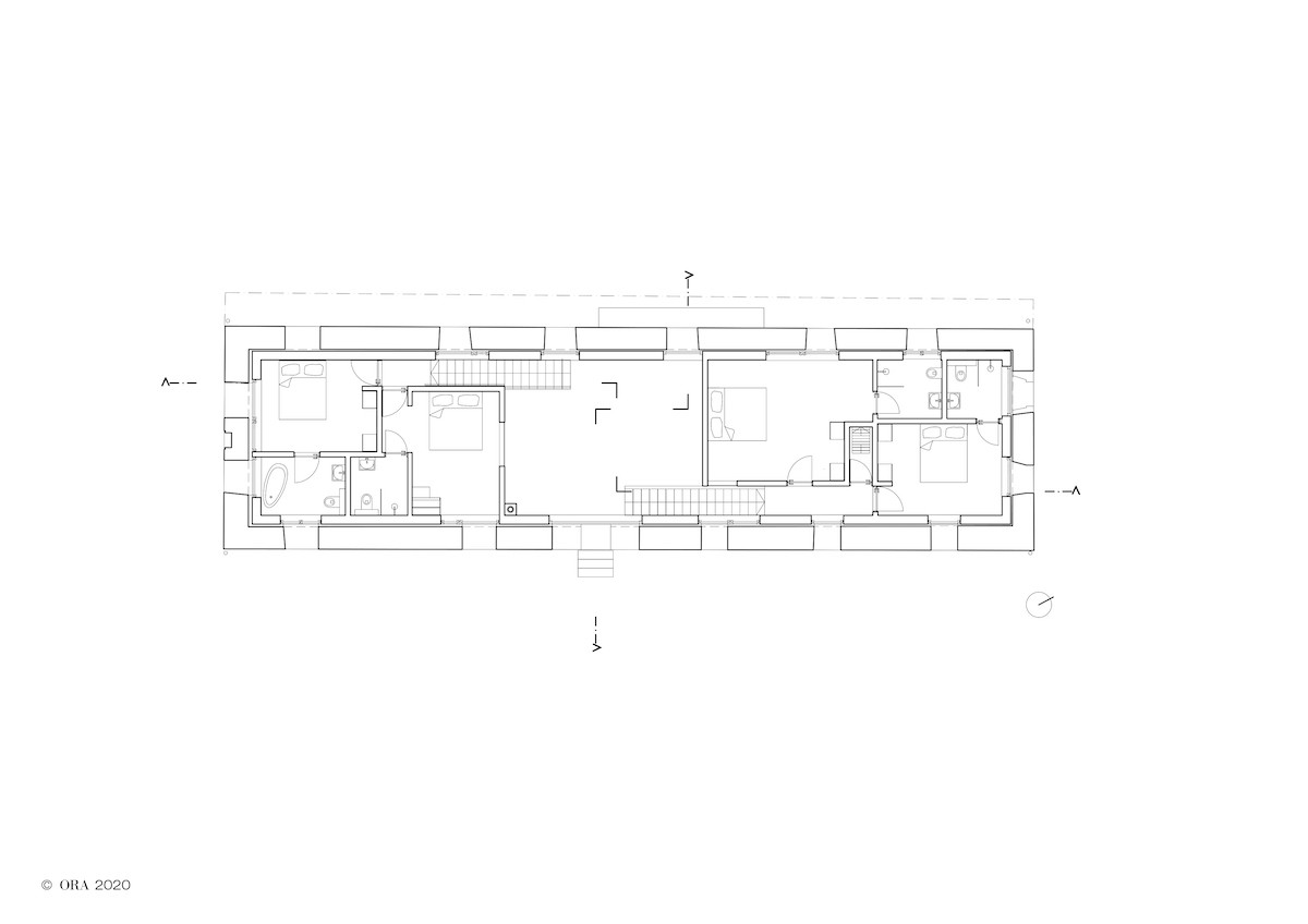
"Projekt je naším manifestem, jak je možné zacházet se starými domy. Není nezbytně nutné přijít o autenticitu stáří, není nezbytně nutné demolovat, ale ani rekonstruovat dogmaticky památkářsky. Zároveň je i v takovém případě možné stavět ekonomicky za použití současných materiálů a dosahovat požadovaných parametrů," prohlašují o své nové realizaci architekti ze známého znojemského ateliéru ORA. Jejich úkolem bylo zrekonstruovat podmanivý objekt bývalé venkovské usedlosti v malé vesnici Zadní Arnoštov na Svitavsku. Architekti se ve svém návrhu rozhodli "zafixovat" exteriér domu v jeho stávajícím stavu a vložit do něj nový dům – jde tak o koncept "domu v domě", konstrukce se nedotýkají, je mezi nimi větraná mezera. To architektům umožnilo uvnitř pár set let staré stavby (přesné stáří není známo) vytvořit velkorysý prostor přesně podle potřeb. Středobod interiéru představuje otevřený společný prostor sloužící jako kuchyň, jídelna a obývák, do kterého denní světlo přivádí veliké fixní okno i prosklené posuvné dveře propujující dům se zahradou – ta je řešena tak, aby maximálně splynula se svým okolím, čemuž napomáhá také absence oplocení pozemku. Majitelé nabízejí objekt se čtyřmi ložnicemi a pěti koupelnami k rekreačnímu pronájmu pod názvem Sýpka Arnoštov.
ORA , 26. 10. 2020
- Autoři: Jan Hora, Barbora Hora, Jan Veisser
- Ateliér: ORA
- Spolupráce: Tomáš Pospíšil
- Země: Česká republika
- Město: Jevíčko
- Ulice, číslo: Zadní Arnoštov 73
- PSČ: 569 43
- Datum projektu: 2016
- Realizace: 2020
- Užitná plocha: 248.00m2
- Zastavěná plocha: 250.00m2
- Krajinné úpravy: Štěpánka Černá/ www.stelar.cz