 
					
                    				Studio Compass navrhlo rodinný dům přizpůsobený životu seniorů
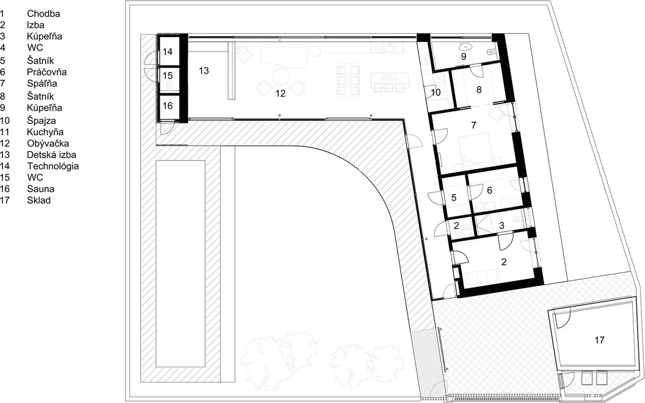
Rodinný dům na okraji Bratislavy vznikl s cílem vyhovět životu prarodičů, které často navštěvuje jejich devět vnoučat. Architekti z bratislavského studia Compass proto navrhli praktické a bezbariérové bydlení s dostatkem prostoru pro všechny děti, které jsou díky prosklené stěně pod dohledem prarodičů, i když se pohybují na zahradě. Dominantním designovým prvkem stavby je přesah železobetonové střešní desky poskytující obytným místnostem dostatečné stínění.
Compass Architekti , 3. 8. 2018
- Autoři: Juraj Benetin, Miroslava Gašparová, Matej Grébert, Juraj Kurpaš
- Ateliér: Compass Architekti
- Země: Slovensko
- Město: Bratislava - Jarovce
- Ulice, číslo: Ladislava Batthyányho
- Užitná plocha: 137.00m2
- Zastavěná plocha: 160.00m2
- Plocha pozemku: 661.00m2
 
                             
                             
                             
                             
                             
                                 
            
         
            
         
            
         
            
         
            
         
            
         
            
         
            
         
            
         
            
         
            
         
                             
                             
                             
                             
                             
                             
                             
                             
                             
                             
                             
                             
                             
                             
                             
    
	 
            		 
            		 
            		 
            		 
            		 
            		 
            		 
            		 
                     
                     
            		 
            		 
            		 
            		 
            		 
                     
					 
                                                                                                             
                                                         
                                                         
                                                                                                             
                                                         
                                                         
				 
				 
				 
				 
				 
				 
				 
				 
				 
				 
				 
				 
				 
				 
				 
				 
				 
				 
				 
				