V Prostějově se otevřelo nové Národní sportovní centrum s hliníkovou fasádou od studia atelier-r
Dříve fungovalo na okraji Prostějova veřejné koupaliště, které ovšem dlouhá léta chátralo a tak přišlo rozhodnutí nahradit jej novou sportovní halou sloužící tréninku a mládežnickým turnajům v basketbalu a volejbalu. Budova zaujme především výraznou fasádou z hliníkové krajky a prosklením na celou výšku nároží pomocí systému od společnosti Schüco. Za projektem stojí olomoucké studio atelier-r, který svým návrhem Národního sportovního centra rozšířil a zkvalitnil stávající sportovní areál Prostějova.
Tereza Hůrská , 15. 3. 2019
Sportovní areál na severozápadním okraji Prostějova nabízí cyklistický velodrom, tenisové kurty i zimní hokejový stadion. Na podzim minulého roku se v areálu otevřela také nová budova Národního sportovního centra, která nahradila nevyužívané veřejné koupaliště. V nové sportovní hale by měla najít zázemí hlavně prostějovská mládež věnující se kolektivním míčovým sportům, jako je volejbal či basketbal, a to jak pro své tréninky, tak i mezinárodní juniorské turnaje.
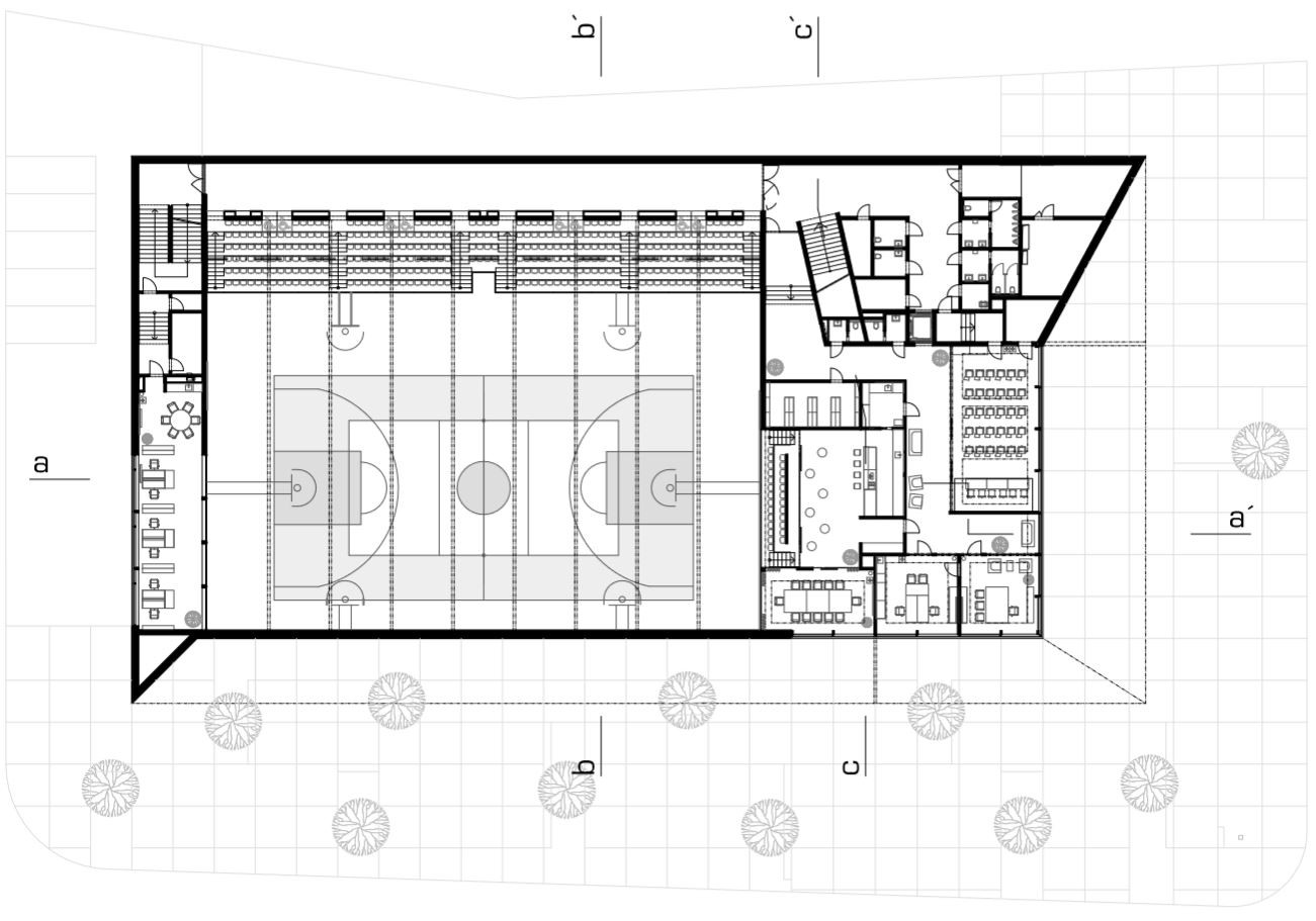
Návrh sportovní haly pochází z dílny architektonického studia atelier-r, které sídlí v nedaleké Olomouci. Součástí projektu byla také celková revitalizace zanedbaného území včetně realizace nových veřejných komunikací. Došlo tak například k prodloužení ulice Krapkovy, u které se nacházejí nové parkovací plochy pro sportovní areál. Na prostranství mezi nově uspořádanými komunikace pak architekti umístili budovu haly ve tvaru jednoduchého kvádru, jež svými půdorysnými rozměry lícuje s hranou sousedního velodromu a jeho tribunami. Z jižní a západní strany je hmota „vybrána“ objemem ve tvaru komolého jehlanu, což umožnilo vytvořit výrazný vstupní prostor, který zároveň zůstává součástí kompaktního objemu stavby. Zapuštěním obou fasád vznikl zešikmený přesah střechy fungující jako kšilt, který chrání okolí hlavního vstupu před deštěm.
Pro zpracování fasády této části, která je jako hlavní vstupní průčelí nejvíce pohledově exponovaná, využili architekti výraznou stříbřitou „krajku“ z tahokovu.Fasády na severní a východní straně haly jsou pak řešeny kontrastními trapézovými plechy v černé barvě. Tato neobvyklá fasádní úprava má odkazovat na vlastní účel objektu. „Řešení fasády vychází ze základní filozofie projektu, kterou bylo vytvoření sportovní haly pro talentovanou mládež. Jedná se tedy o místo, kde profesionální trenéři připravují talentované chlapce a dívky k postupu do vrcholových sportovních soutěží, stejně jako šperkař brousí diamant, který bude následně luxusním šperkem. Stavba je jako paralela černým blokem, který má již vybroušené dvě lesknoucí se stříbrné strany, ale ostatní jsou zatím hrubé, neopracované.“ vysvětlují architekti použití takohovového fasádního systému v kombinaci s kontrastními trapézovými plechy. Nároží hlavních fasád je pak na celou výšku prosklené pomocí hliníkového sloupko-příčkového systému od firmy Schüco.
Stejně jako u mnoha svých projektů, i zde vsadil atelier-r na autentičnost použitých materiálů. Vedle kovu a skla se tak na výrazu objektu značně projevuje také beton, který byl v interiérech zachován ve své pohledové variantě. V interiéru pak najdeme také několik nápadných prvků provedených v červené barvě – divácké sedačky, kubus schodiště nebo pult recepce.
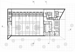
Národní centrum Prostějov svým řešením splňuje podmínky pro konání mezinárodních juniorských turnajů. Hala obsahuje jedno podélné hlavní hřiště, které se v případě potřeby může „rozdělit“ na dvě menší tréninková hřiště orientovaná příčně. Součástí prostoru haly je také tribuna s kapacitou 350 diváků. Dění na hřišti je možné sledovat i z menší tribuny ve VIP prostoru s vlastním barem a toaletami nebo z prosklené zasedací místnosti. VIP prostory lze pomocí posuvných dveří propojit se sousedním multifunkčním sálem a vzniklý prostor využívat pro větší klubové akce.Národní sportovní centrum nabízí kvalitní zázemí sportovcům, divákům i jeho zaměstnancům – součástí objektu je tak například bufet navazující na hlavní vstup či potřebné administrativní prostory.
Součástí projektu bylo také řešení bezprostředního okolí stavby. Architekti tak navrhli velkorysou volnou plochu veřejného prostoru, kterou doplnil městský mobiliář.Národní sportovní centrum v Prostějově funguje od poloviny září minulého roku a vedle mladých volejbalistů a basketbalistů jej pro výuku tělocviku využívají také žáci prostějovských škol.
- Ateliér: atelier-r
- Autoři: Miroslav Pospíšil
- Spolupráce: Daria Johanesová, Martin Karlík, Lucie Lindovská, Robert Randys, Lucie Rohelová
- Země: Česká republika
- Město: Prostějov
- Ulice, číslo: Za Velodromem, 7
- PSČ: 796 01
- Suma: 140 000 000.00
- Měna: CZK
- Datum projektu: 2015
- Realizace: 2018
- Užitná plocha: 3 055.00m2
- Zastavěná plocha: 2 474.00m2
- Plocha pozemku: 9 005.00m2
- Použité systémy firmy Schüco: fasáda FWS 50 polostrukturální, vložená okna AWS 114 SG, dveře ADS 75.SI


