V prostorech bývalých uhelných dolů vzniklo působivé kulturní centrum
Po více než dvacetiletém uzavření se dočkal industriální areál znovuzrození. Prostor ohraničený cihlovými zdmi opět naplňuje ruch – tentokrát ne ten průmyslový, ale hudební. Komplex ve francouzské obci Oignies je od roku 2012 zapsaný na seznamu světového dědictví UNESCO, proto rekonstrukce probíhala s respektem k místu i původním architektonickým detailům.
EARCH.CZ , 8. 3. 2018
Uhelný důl v Oignies se uzavřel v roce 1990. Od té doby průmyslový komplex chátral až do roku 2005, kdy region zahájil revitalizaci industriálního území. Vítězný návrh kanceláře Hérault Arnod Architectes je založený na akustickém zvýraznění hudby a dalších zvuků v souvislosti s masivním hlukem během historické uhelné produkce.
Více k tématu
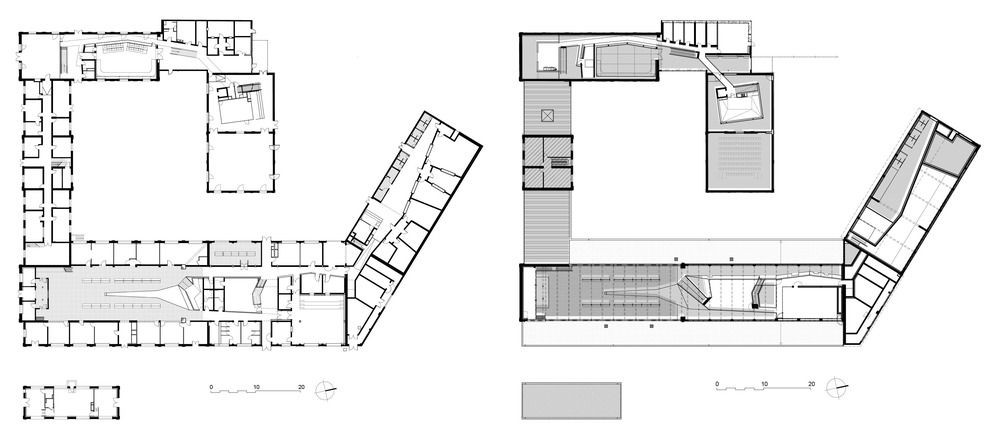
Projekt klade důraz na turistické a kulturní využití místa, proto je součástí komplexního plánu vybudování nových příjezdových cest, rekonstrukce strojírenských a kancelářských budov a výstavba experimentálního koncertního sálu Métaphone. Rozsáhlá víceúrovňová realizace trvala více než deset let, nyní ještě zbývá dostavět budovu pro šatnu.
Znovuzrození historického areálu symbolizuje uměleckou kreativitu a ekonomický rozvoj. Spojení těchto dvou charakteristických znaků architekti dosáhli kombinací nové současné architektury a renovací stávajících budov v duchu zachování jejich původní integrity.
Vlajková stavba celého komplexu Salle des pendus je rozčleněna na několik účelových částí – převlékárnu, sprchy a hlavní halu se zachovalými historickými závěsnými háky, na které si horníci věšeli špinavé oblečení po těžkém dni v dole. Podle toho se hale o délce 70 m přezdívá Salle des pendus, v češtině „závěsný sál“. V 50. letech prostor sloužil až pro 2200 horníků.
Rozmanité industriální objekty postupně vznikaly mezi lety 1928 a 1970. Sice se liší typem konstrukce, ale na druhou stranu mají všechny budovy jednotnou cihlovou fasádu a velká okna. Střechy jsou pokryty pálenými krytinovými taškami, cementovým vláknem nebo výjimečně i sklem.
Dnes má komplex široké využití. Jednotlivé budovy poskytují zázemí pro kanceláře, hudební a taneční prostory, zkušebny, seminární místnosti, nahrávací a televizní studia.
Vzhledem k požadavkům na moderní multifunkčnost areálu architekti v rozlehlých halách vybudovali menší akusticky izolované prostory. Systém vestavěných „buněk“ přirozeně rozmělňuje masivní rozměry budov. Současně se vytváří dialog mezi novým a starým – v zrcadlových plochách buněk se odráží textury původních materiálů.
Před zásahem do dobové konstrukce se myslelo hlavně na citlivé využití stávajících materiálů a udržení charakteristické atmosféry místa. Interiér je řešený s ohledem na maximální variabilitu kvůli možným změnám v budoucnu. Součástí renovace bylo také oživení jednotlivých architektonických komponentů, například ocelových konstrukcí, portálových jeřábů, kladek nebo cihlových zdí.
- Ateliér: Hérault Arnod Architectes
- Země: Francie
- Město: Oignies
- Suma: 9 000 000.00
- Měna: EUR
- Datum projektu: 2005
- Realizace: 2016
- Zastavěná plocha: 3 578.00m2





