 
					
                    				
					
                                                    Architektura
                                                /
                                                    rodinné domy
                                            
					
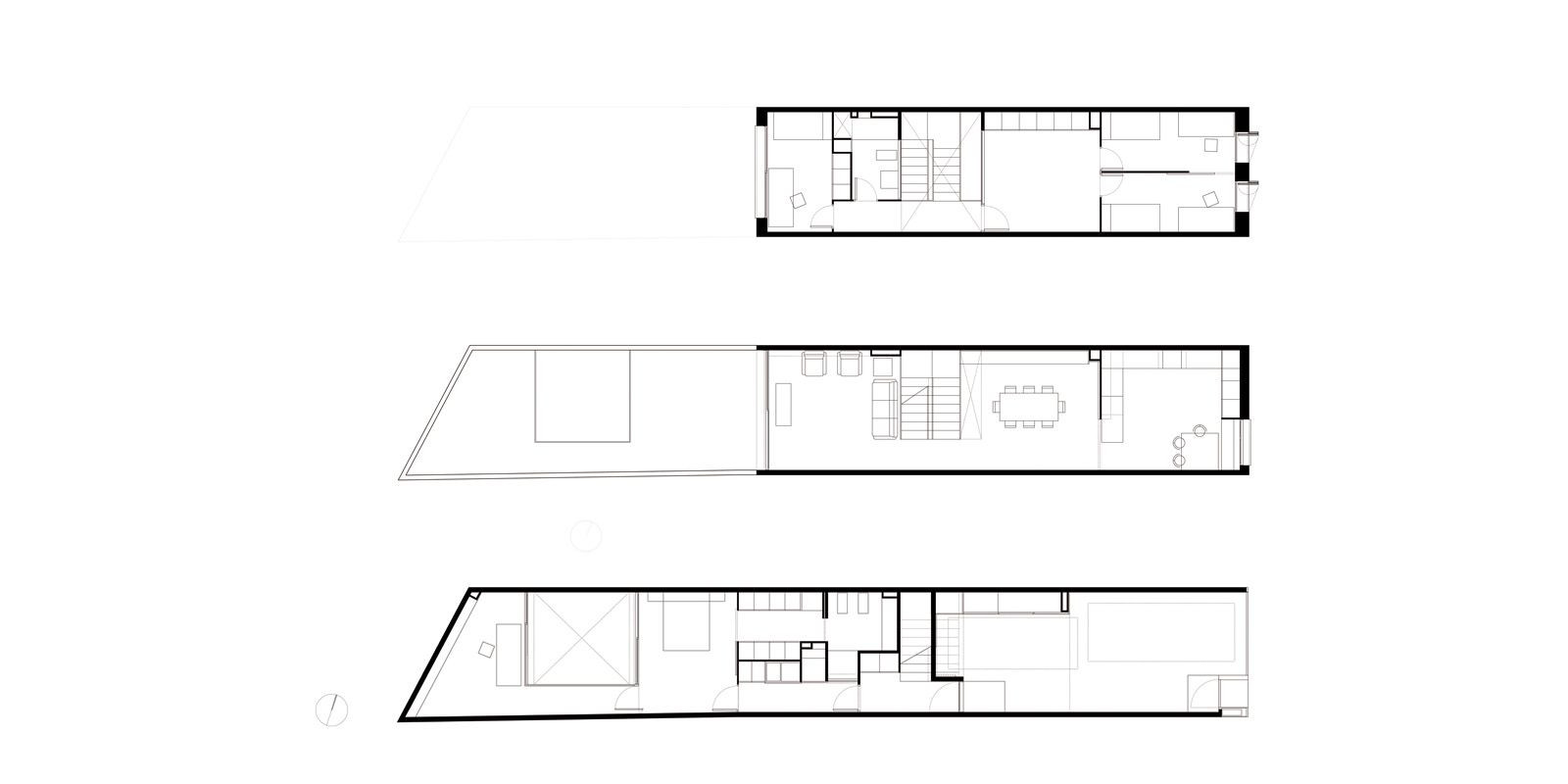
			Velmi úzký dům
Úzký pozemek v centru Sabadellu byl velmi náročný na rozdělení jednotlivých prostorů. Autoři se tedy rozhodli pro oddělení hlavní ložnice od ostatních ložnic v domě pomocí vnitřního dvorku. Denní zóna je umístěna v prvním patře, v posledním patře jsou potom umístěny ložnice. Dostatek světla umožňují veliké světlíky nad schodišťovou šachtou. Ty umožnily dostatečné prosvětlení i při takto úzkém pozemku.
H ARQUITECTES , 6. 6. 2017
Více k tématu
- Autoři: David Lorente Ibánez, Josep Ricart Ulldemolins, Xavier Ros Majó, Roger Tudó Galí
- Ateliér: H ARQUITECTES
- Spolupráce: Anna Bullich, Marta Casas, Estel Teixidor
- Země: Španělsko
- Zodpovědný projektant: TT_22
- Město: Sabadell
- Suma: 2 500 000.00
- Měna: EUR
- Datum projektu: 2003
- Realizace: 2005
- Užitná plocha: 260.00m2
- 
                    Poznámka: 
                    Fotograf: 
 Starp Estudi / www.starpestudi.com
 Pedro Antonio Pérez / www.pedroantonioperez.com
 
                             
                             
                             
                             
                             
                                 
            		 
            		 
                             
                             
                             
                             
                             
                             
                             
                             
                             
    
	 
            		 
            		 
            		 
            		 
            		 
            		 
            		 
            		 
                     
                     
                     
            		 
            		 
            		 
            		 
            		 
                     
					 
                                                         
                                                         
                                                         
                                                         
				 
				 
				 
				 
				 
				 
				 
				 
				 
				 
				 
				 
				 
				