DDAANN - Dům přes dvůr
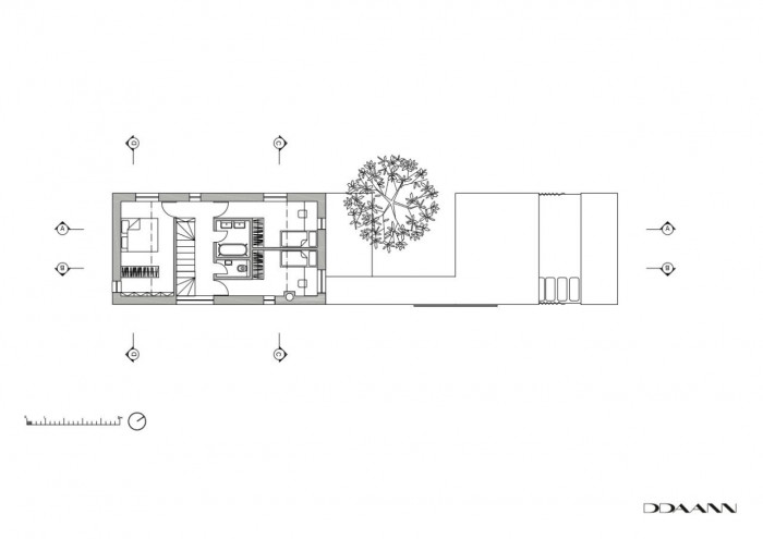
Domov pro mladý pár a jejich dvě malé slečny vznikl v jedné z okrajových částí Prahy, kde se rodinné domy prolínají s výškovou bytovou výstavbou a hustou zelení. V této rozmanité skladbě jsme na velmi úzké parcele navrhli stavbu, která s daným místem komunikuje a využívá jeho klady. Celek je rozdělen na dvě hmoty, rodinný dům a malou pracovnu přes dvůr.
Samotný dům s bílým dřevěným obkladem a sedlovou střechou je otočen k místní komunikaci jednoduchou fasádou s hlavním vstupem. Do zbylých stran jsou propsány tři základní rozměry čtvercových oken tak, aby v každé z místností bylo dostatek světla. Velká fixní, menší otvíravá a nejmenší „střílny“, prosvětlující pobytové platformy v otevřeném krovu.
Pracovna má vlastní zázemí a ve volných chvílích slouží jako samostatný hostinský pokoj. S obytnou částí je spojena krytou pěšinou s prkenným hrazením a posuvnými vraty. Cesta přes dvůr a zpět dává obyvatelům nový vjem, vytváří z pracovny klidné místo pro práci.
Posuvná vrata nechávají proudit zahradu kolem domu. V případě potřeby je však možné je uzavřít a vytvořit tak z dvora intimnější zákoutí. Skrze velké prosklené stěny zůstávají obě části domu pocitově propojené. Dvůr se tak stává přirozenou součástí interiéru.
Dům přes dvůr, dvůr skrz dům…
- Autoři: Daniel Baudis, Daniel Rohan
- Ateliér: DDAANN
- Země: Česká republika
- Město: Praha
- Realizace: 2018
Související projekty
Související architekti
Související ateliéry a firmy
Mohlo by vás zajímat