Architektura
/
občanské stavby
Ateliér zerozero proměnil obchodní parter domu v centru v Prešova na prostor umění a kultury
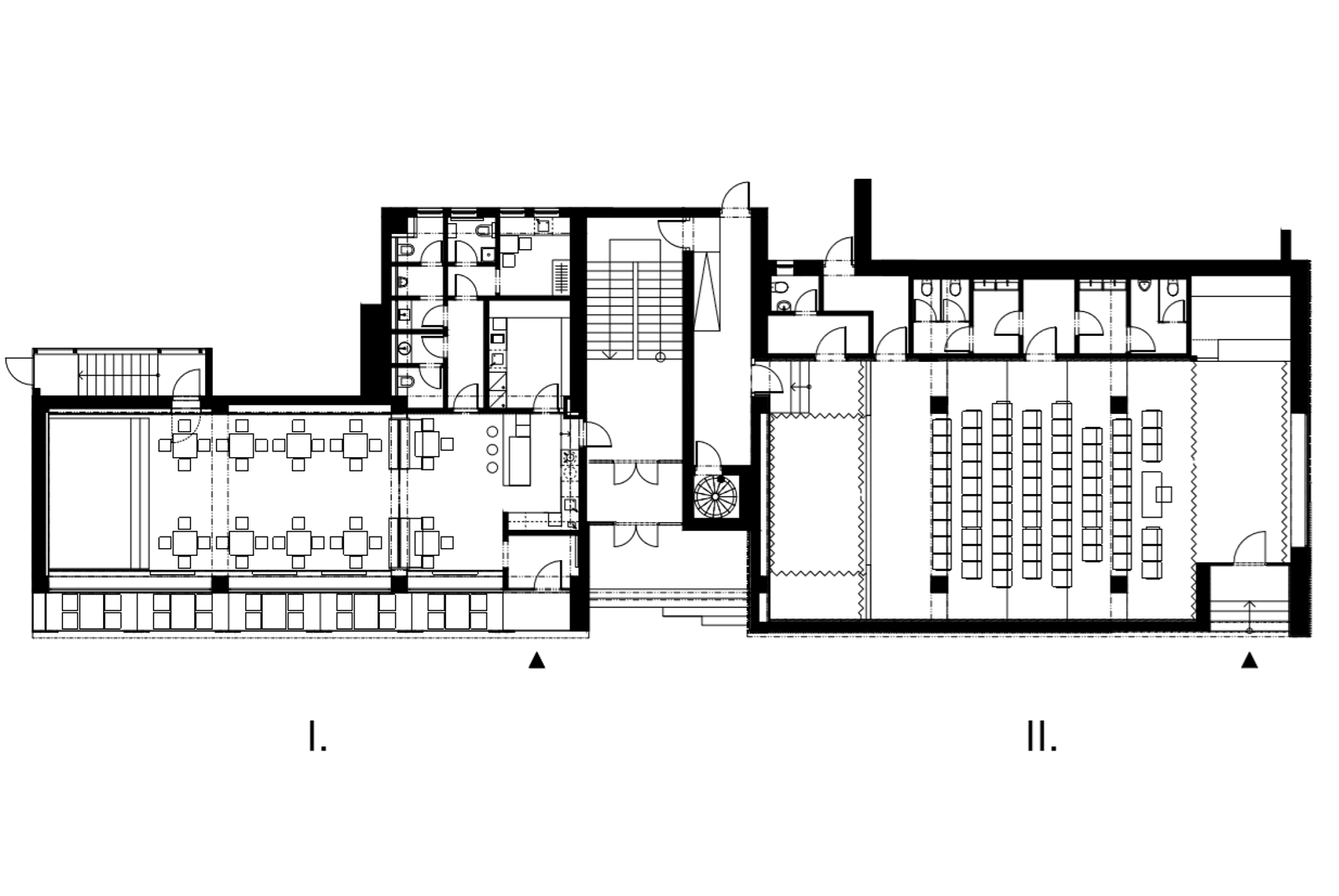
V parteru polyfunkčního domu v centru slovenského Prešova navrhli architekti z lokálního studia zerozero přestavbu komerčních ploch na prostor zasvěcený umění a kultuře. Ateliér na projektu pracoval ve dvou etapách - před třemi lety došlo k proměně pizzerie na literární kavárnu, minulý rok pak provoz copycentra nahradil multifunkční sál sloužící divadlu a koncertům.
zerozero , 29. 8. 2019
- Autoři: Irakli Eristavi, Pavol Šilla, Juraj Červený
- Ateliér: zerozero
- Spolupráce: Dominika Hricová, Ondrej Jurčo, Martin Ratkoš
- Země: Slovensko
- Realizace: 2018
- Město: Prešov
- Ulice, číslo: Tkáčska
- Realizace: 2018
- Užitná plocha: 348.00m2