
Architektura
/
interiér
Až na krov
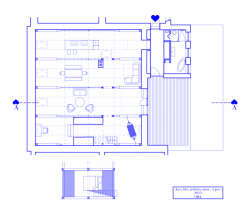
O co vlastně jde? Prostor auly v bývalé škole v Mikulově byl za minulého režimu znásilněný novým přestropením. Vznikla tedy těžko využitelná prostora půdy, která byla ve výšce jeden a půl metru v pravidelném rytmu rozčleněná táhly. Krov se skryl očím a vyčkával. Mezitím se zrekonstruovaly prostory pod půdou, takže už nebylo cesty zpět, prostor nešlo opět sjednotit.
ORA , 26. 8. 2016
Více k tématu
- Autoři: Jan Hora, Barbora Hora
- Ateliér: ORA
- Spolupráce: Matěj Špaček
- Země: Česká republika
- Město: Mikulov
- PSČ: 692 01
- Datum projektu: 2011
- Realizace: 2013
- Užitná plocha: 140.00m2
- Foto ©: Jan Žaloudek