Byt, který spojuje. Má měkké hrany a oblouky nade dveřmi
Architekti ze studia momentura navrhli otevřený interiér pro pár, jenž chtěl domov pro společný život, práci i odpočinek — bez zbytečných bariér a okázalých gest. Místo ostrých hran a příček pracuje s plynulostí.
Kateřina Hrachová , 8. 1. 2026
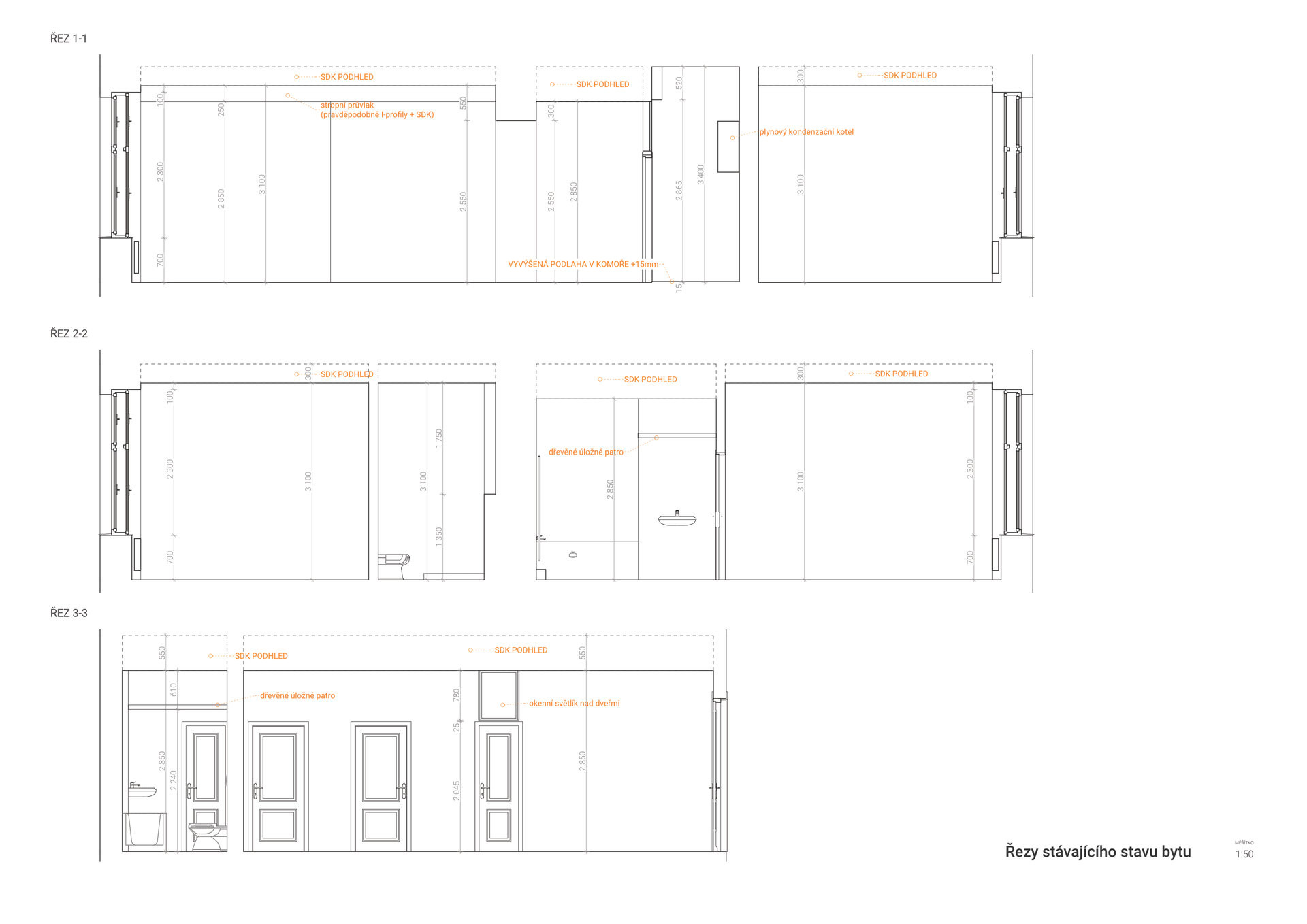
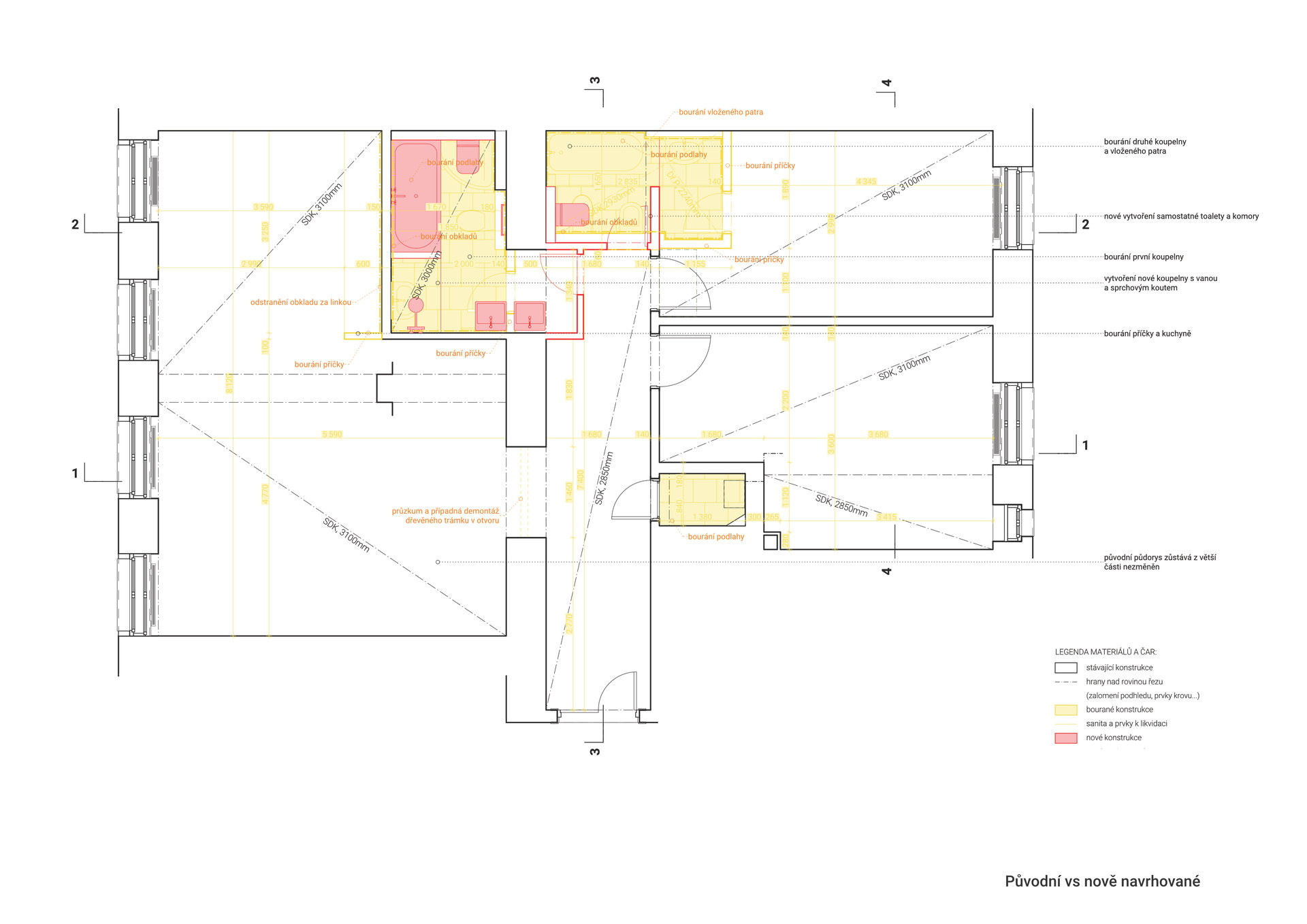
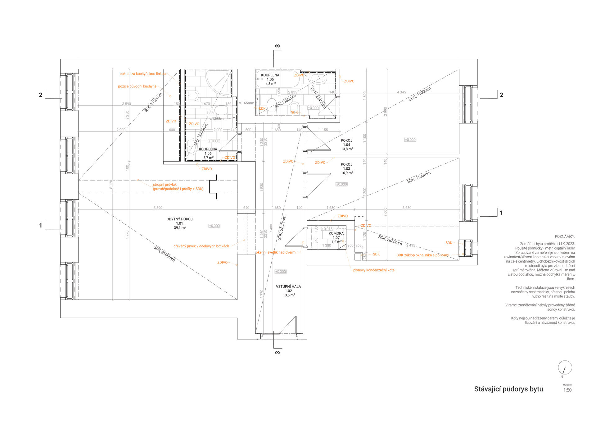
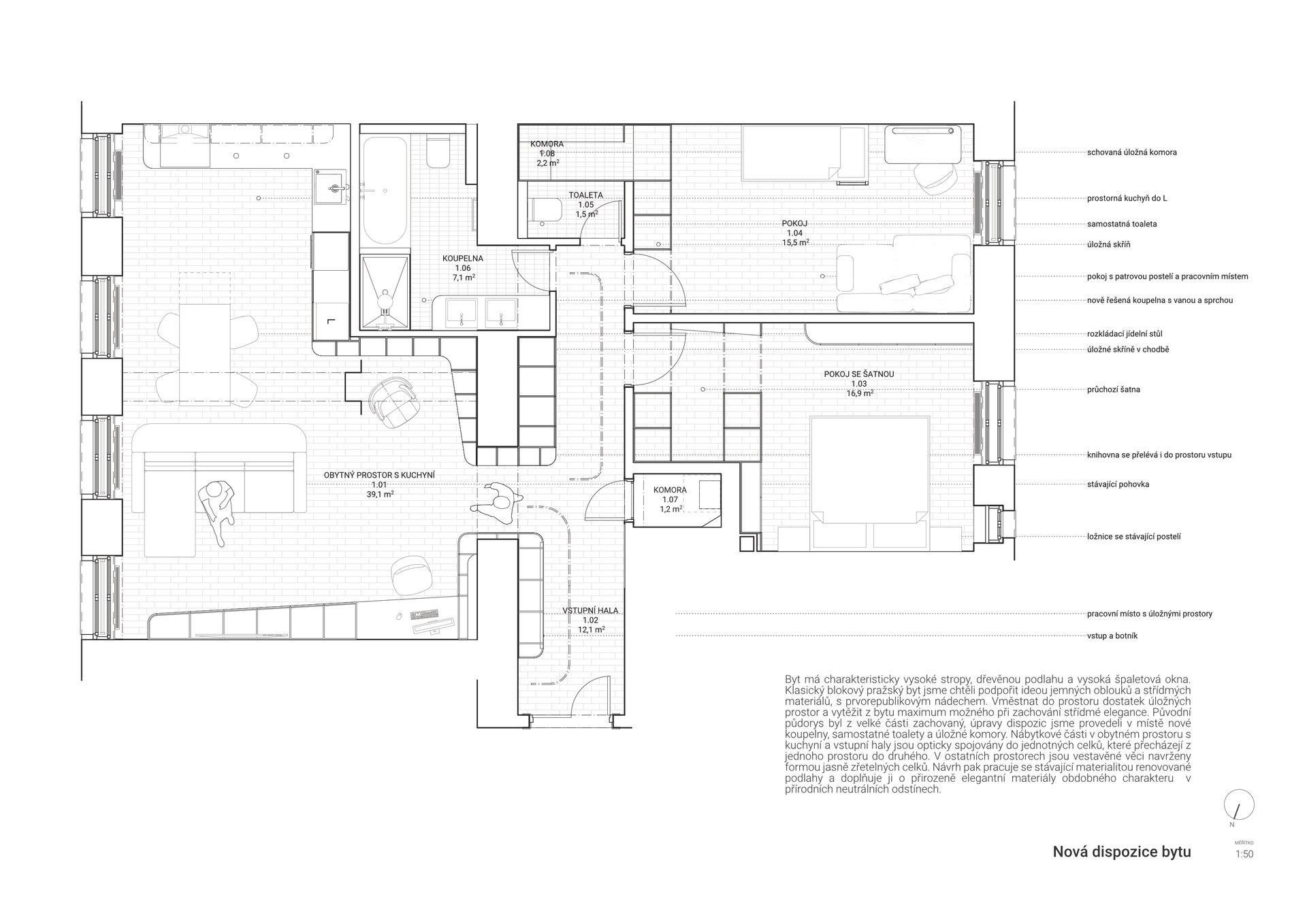
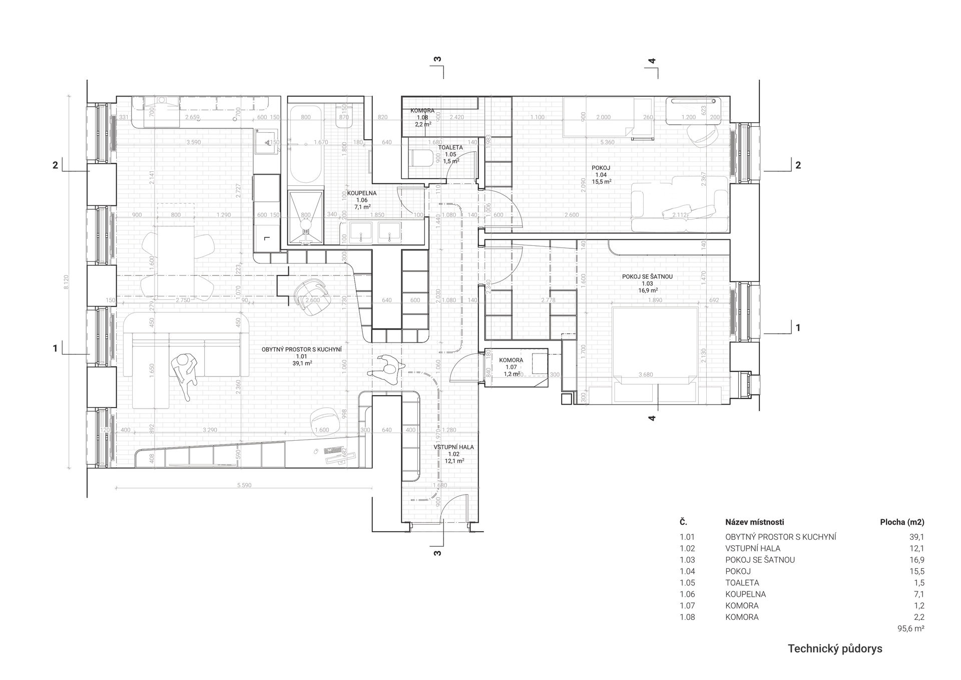
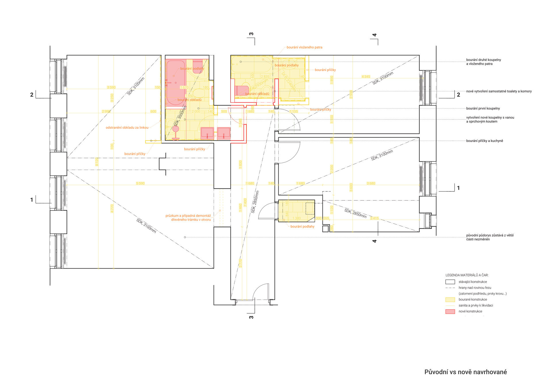
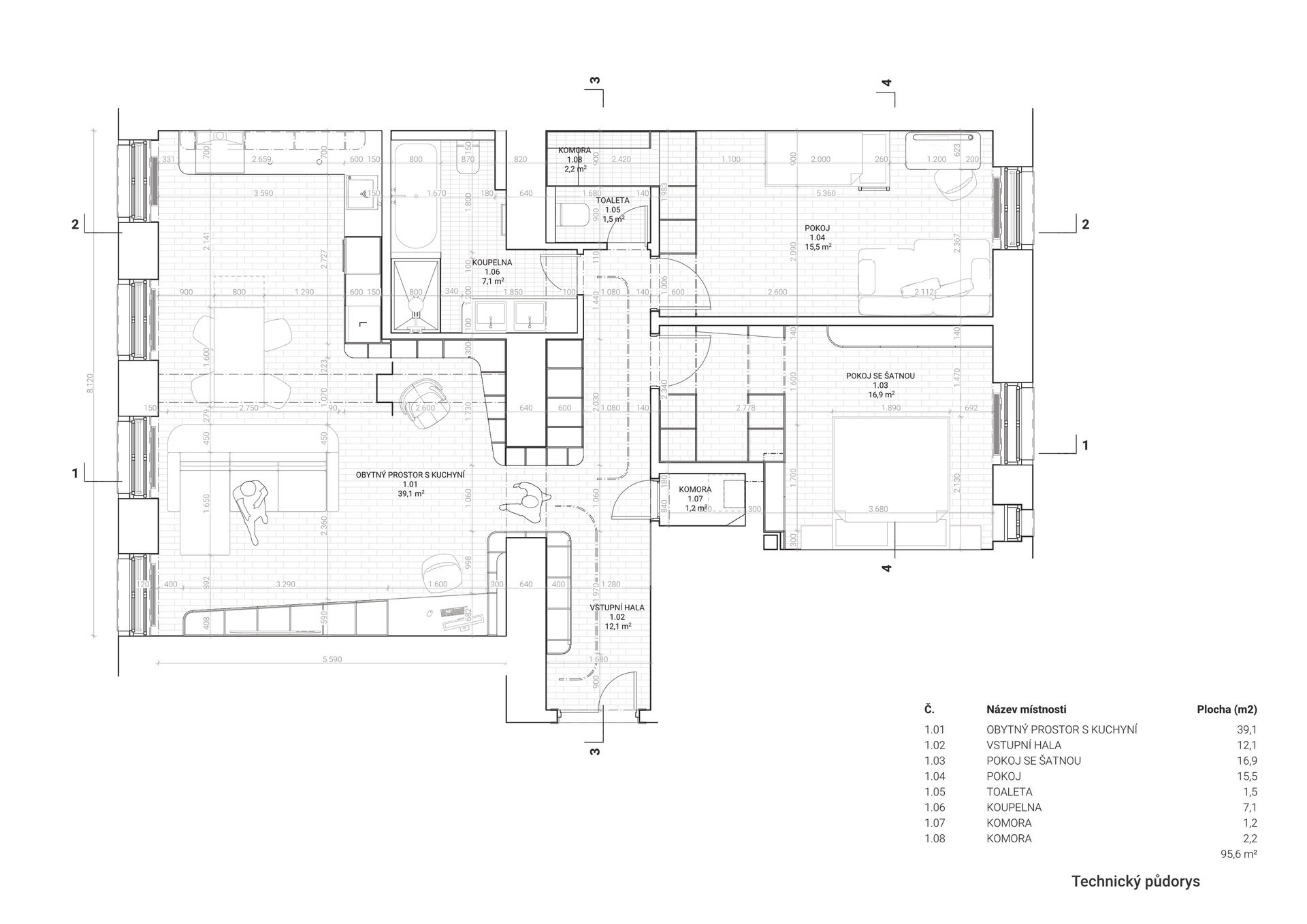
Byt se nachází v činžovním domě v Pernerově ulici, typickém pro pražský Karlín. Původní dispozice z konce 19. století zde ustoupila otevřenějšímu řešení, v němž se kuchyň, obývací prostor a pracovní zóna propojují bez ostrých přechodů a pevných hranic. Jednotlivé funkce nejsou oddělené zdmi, ale rytmem, světlem a měkkými přechody.

Jeden prostor, mnoho způsobů užívání
Srdcem bytu se stává obývací prostor s kuchyní, jídelním stolem a knihovnou. Místo, kde se vaří, pracuje, čte i odpočívá, a to často i zároveň, aniž by si jednotlivé aktivity vzájemně překážely. Příjemný pracovní kout pro home office, velkorysá světlá kuchyň pro kulinářské zážitky a útulná knihovna vytvářejí prostředí, které se přizpůsobuje každodennímu rytmu domácnosti 21. století. Zadání klientů bylo od začátku jasné: byt má spojovat, ne rozdělovat. Dispozice tomu odpovídá, je otevřená, velkorysá, ale stále útulná.
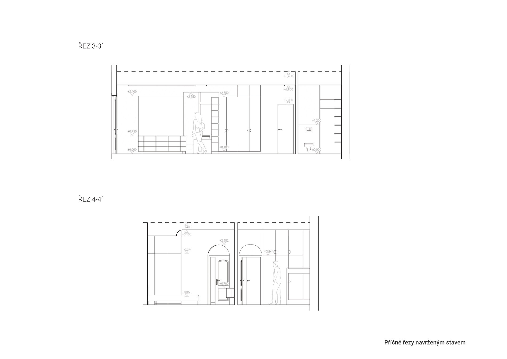
Interiér bytu stojí na kombinaci světlých barev, teplého dřeva a jemných detailů, které prostoru dodávají osobitost. Minimalismus zde není chladný ani formální, ale funkční a klidný. Každý prvek má své místo a smysl, a to i bez zbytečných gest. Nové dveře dorostly až ke stropu, aby prostor působil vzdušněji a světlo mohlo volně proudit bytem. Teplé tóny dřevěných parket odrážejí denní světlo hluboko do dispozice, až k šatně, která nahradila jednu z původních koupelen.

Detaily, které drží celek pohromadě
Jemné oblouky a měkké hrany jsou klíčovým sjednocujícím prvkem interiéru. Obyvatelé bytu se nemusejí bát grotesknosti štukovaných oblouků z konce devadesátých let, jelikož jemné oblouky naopak působí přirozeně. Prostor díky nim získává plynulost a nenucený šmrnc.

Ložnice je navržena jako útočiště po celém dni. Tónované a laděné barvy, jemné textilie a možnost úplného zatemnění vytvářejí ideální podmínky pro hluboký spánek. Jednoduchost a funkčnost prostoru tu jdou ruku v ruce s pocitem komfortu. Koupelna poskytuje klidné zázemí, kde se denní rutina přirozeně zpomaluje. Dvě samostatná umyvadla, vana a promyšlené umělé osvětlení podporují přirozený rytmus dne. Oba prostory vytvářejí protiváhu otevřenému dennímu životu bytu a umožňují skutečný odpočinek bez rušení.
Více k tématu
Byt v Pernerově ulici je příkladem interiéru, který není navržen „na efekt“, ale pro skutečný život. Minimalistický, ale vřelý. Promyšlený, ale nenucený. Domov, který se přizpůsobuje svým obyvatelům a dává jim prostor být spolu — i každý sám za sebe.
- Ateliér: momentura
- Země: Česká republika
- Adresa: Praha Karlín
- Projekt: 2024-2025
- Realizace: 2025
- Užitná plocha: 99,50 m²
- Fotograf: Michal Rouha
- Stěny: Bohemia Decor Group s.r.o.
- Truhlářské práce: Truhlářství Havlík s.r.o.
- Osvětlení: U1 Lighting s.r.o.
- Dveře: Sapeli
- Karemika: Rako, Vitra
- Dýhy, kompaktní deska: Egger
- Kování: Blum
- Koncové prvky elektroinstalací: Schneider
- Koupelnové těleso: Isan
- Instalace: Alca
- Dřez a baterie: Blanco
- Spotřebiče: AEG
- Sanita: Laufen, Villeroy&Boch, Roca