
3+kk v bývalém klášteře. Byt s dřevěným trámovým stropem, krbem a mohutnými stěnami nabízí nečekané možnosti
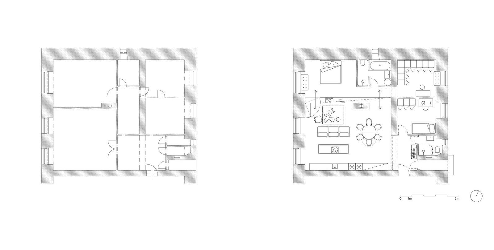
Trnavský klášter z roku 1791 byl v polovině minulého století přestavěn na bytový dům. Jeden z bytů o rozloze 100 m2 prošel v roce 2017 rekonstrukcí, při níž byly všechny zásahy minulých majitelů odstraněny. Vrstva po vrstvě se začala objevovat původní konstrukce z osmnáctého století.
Tomáš Kodet , 16. 12. 2022
Byt má sloužit mladému bezdětnému páru. Dispozici dominuje společenská místnost s monumentální světlou výškou 3,6 m. Strop je dřevěný trámový se záklopem. Za rodinnou knihovnou se nachází noční část – ložnice, ze které je přístup do samostatné koupelny a šatny. Knihovna slouží jako příčka a její levé křídlo jako utajené dveře.
Ze vstupní haly je přístupná ještě jedna ložnice s koupelnou. Vestavěný nábytek je navržený tak, aby mohl být transformován i pro potřeby rodiny s dětmi.
Více k tématu
- Autoři: Peter Jurkovič
- Ateliér: JRKVC
- Země: Slovensko
- Město: Trnava
- Datum projektu: 2014
- Realizace: 2016
- Užitná plocha: 100.00m2