Chytře řešená garsonka poslouží i čtyřčlenné rodině. Vládne jí vestavěný nábytek z masivu
Základním motivem zařízení malého bytu na Žižkově se stalo „bydlení ve skříni“. Díky rafinovanému vybavení může v garsonce pohodlně bydlet i čtyřčlenná rodina.
Adéla Vaculíková , 11. 8. 2022
„Zadáním projektu bylo vytvořit interiér na míru do minimálního bytu tak, aby se zde komfortně zabydlela čtyřčlenná rodina. Byt svým vlastníkům nemá sloužit jako bydlení trvalé, nýbrž víkendové,“ vysvětlují architekti ze studia ORA, kteří interiér bytu navrhli.
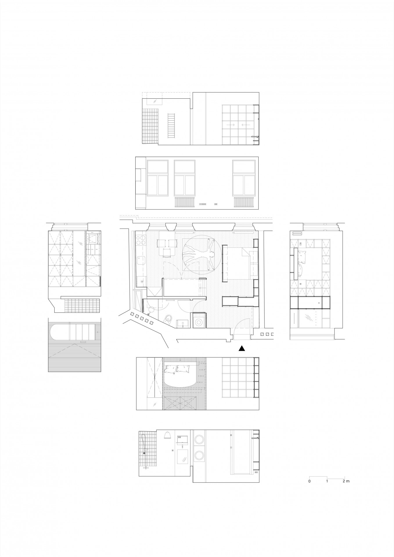
Ačkoliv známé znojemské studio projektuje nejčastěji v menších městech a vesnicích na Moravě, nedávno dokončilo i realizaci v Praze. Nezvykle zařízená garsonka o 37 metrech čtverečních se nachází v bytovém domě na Žižkově, který vznikl jako developerský projekt. Zcela původně měl na takto malé ploše vzniknout byt 2+kk. Architekti ale ještě stihli zasáhnout do procesu výstavby a dispozici tak změnit. V bytě nezůstaly žádné příčky, jde o jeden prostor, který dělí pouze na míru zhotovený nábytek. Z praktického hlediska zůstala oddělena pouze koupelna.
Více k tématu
Sami architekti říkají, že prostor koncipovali tak, aby se v něm mohli obyvatelé „protáhnout“. „Do centra nové dispozice jsme umístili prostor. Obdélníkový prostor, se stolem a židlemi uprostřed. Posuneme-li však stůl a židle stohujeme na sebe, vzniká nám prostor dostatečně velký, aby se jeden mohl protáhnout. Tím jsme se vyvarovali pocitu stísněnosti,“ popisují řešení bytu.
Veškerý vestavný nábytek je jen z jednoho druhu materiálu – dubového masivu a dýhy. Přesto májí jednotlivé kousky odlišné odstíny, a to podle způsobu moření. Transparentní a světlý lak má vybavení, které se používá ve dne, tmavé zase to noční. Prostor navíc ještě opticky rozšiřuje zrcadlo v kuchyni.

Způsob řešení spaní je na realizaci asi tím vůbec nejzajímavějším. Postel rodičů architekti vsunuli mezi dva regály, vznikla tak soukromější část bytu a také množství úložných prostorů. Děti zase spí v „patrovém boxu“ – de facto na velmi netradičně ztvárněné palandě, jejíž spodní část ve dne slouží jako gauč, horní se dá zase zavřít do "skříně“. „Box je obložený dubovými latěmi, které postupně přecházejí i na stěnu oddělující koupelnu, která se díky tomu jeví také jako součást vestavěného nábytku. Díky dveřím, které dosahují až ke stropu na svou přítomnost neupozorňuje,“ dodávají architekti k nábytkovému řešení.
Práce s masivním dřevem je pro architekty ze studia ORA poměrně typická. Výraznou roli hraje i v Jevíčku na Moravě, kde architekti odvážně zakonzervovali ruinu venkovské usedlosti.
- Ateliér: ORA
- Autoři: Jan Hora, Jan Veisser, Barbora Hora
- Spolupráce: Barbora Ochotná
- Země: Česká republika
- Město: Praha - Žižkov
- Projekt: 2019-20
- Realizace: 2022
- Užitná plocha: 36 m²