 
					
                                            Citlivá přestavba proměnila hospodářskou usedlost na hudební dům
Tři sta let stará zemědělská usedlost v malé švýcarské obci prošla v posledních letech velmi zdařilou a důslednou rekonstrukcí. Památkově chráněný soubor staveb nově slouží místní hudební nadaci.
Matěj Beránek , 9. 8. 2022
Projekt přestavby historické hospodářské usedlosti iniciovala nadace Künstlerhaus Boswil, která se věnuje klasické a soudobé hudbě. Nadace v roce 2014 uspořádala architektonickou soutěž, prostřednictvím které hledala nejlepší způsob rekonstrukce chátrajícího objektu, tak aby v něm mohly vzniknout zkušebny, kanceláře i pokoje pro ubytování umělců.
Soutěž vyhrál švýcarský architekt Gian Salis, který k rekonstrukci přistoupil s maximálním respektem k původním objektům, zároveň ale nerezignoval na přiznaně soudobé architektonické zásahy. Před založením vlastního malého ateliéru v Curychu pracoval Salis několik let u slavného architekta Petera Zumthora, v jehož studiu se hodně dbá na kvalitní řemeslné zpracování projektů a na Salisově realizaci v Boswilu je tato škola jasně patrná.
Více k tématu
Rekonstrukci předcházel detailní stavební průzkum objektů, jelikož se jedná o kantonální památku. Bylo potřeba zjistit, jaké původní konstrukce bude možné zachovat a jakým způsobem, způsob statického zajištění stavby a také určit, jaké pozdější stavební úpravy a přístavby se nechají odstranit, tak aby vynikly historické kvality objektů.
Vzhledem k cenné konstrukci hlavní budovy (tradiční pro kanton Aargan) se zvláštní pozornost věnovala práci se dřevem. Stabilní konstrukční části se očistily, vyspravily a doplnily novými prvky – smrkovým dřevem pro nosné konstrukce, jedlí pro vnitřní konstrukce, habr byl pak použit pro nový nábytek. Obecně platí, čím je dřevo tmavší, tím je starší.
 
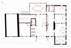
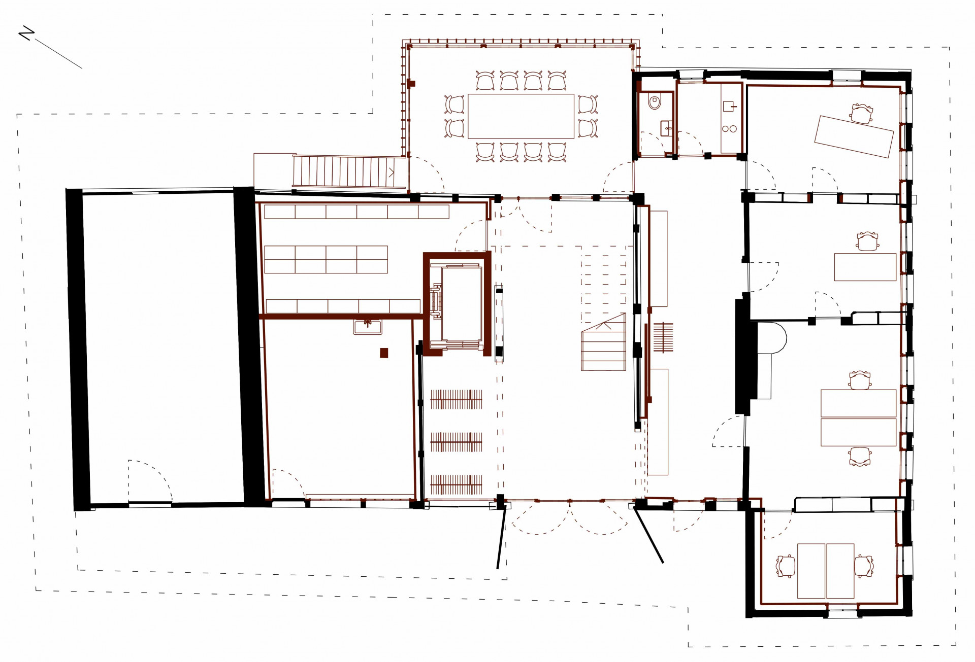
Usedlost se skládá z více objektů. V přízemí hlavní hospodářské stavby vznikly kanceláře, ve stájích technické prostory, staré komory a seník poskytl prostor pro celkem 7 pokojů k ubytování umělců. Působivý prostor vysokého podkroví slouží nyní jako zkušebna, kterou osvětluje prosklený štít.
Aby si dům zvenčí zachoval svůj původní historický charakter, přistoupilo se k jeho zateplení zevnitř. Z výsledku je patrné, že všem dílčím úkolům přestavby byla věnována maximální pozornost – a samozřejmě také čas a finance. Díky tomu se může stát inspirativním referenčním projektem dalších podobných podniků, kterých poslední dobou stále přibývá.
- Ateliér: Gian Salis Architektur
- Země: Švýcarsko
- Město: Boswil
- Projekt: 2018-19
- Realizace: 2019-21
- Architektonická soutěž: 2014
 
                             
                             
                             
                             
                             
                                 
            		 
            		 
            
         
            
         
            
         
            
         
            
         
            
         
            
         
                             
                             
                             
                             
                             
                             
                             
                             
                             
                             
                             
                             
                             
                             
                             
    
	 
            		 
            		 
            		 
            		 
            		 
            		 
            		 
            		 
                     
                     
                     
            		 
            		 
            		 
            		 
            		 
                     
					 
                                                         
                                                         
                                                         
                                                         
				 
				 
				 
				 
				 
				 
				 
				 
				 
				 
				 
				 
				 
				 
				 
				 
				 
				 
				