Architektura / občanské stavby

Dominanta pro vesnici bez kostela

Cena Mies van der Rohe si nevšímá pouze spektakulárních budov, ale (a obzvláště v letošním ročníku) i drobnějších vstupů do veřejného prostoru. Zušlechťování vesnických prostorů, tedy návsí a náměstí, se v poslední době začalo stávat tématem. Jak vrátit život obcím, které po nástupu moderních urbánních společností a ústupu zemědělství ztratily mnoho ze svého původního rázu? Jedním z příkladů může být i dostavba dominanty v holandské obci Nieuw-Bergen.

Monadnock , 9. 3. 2017

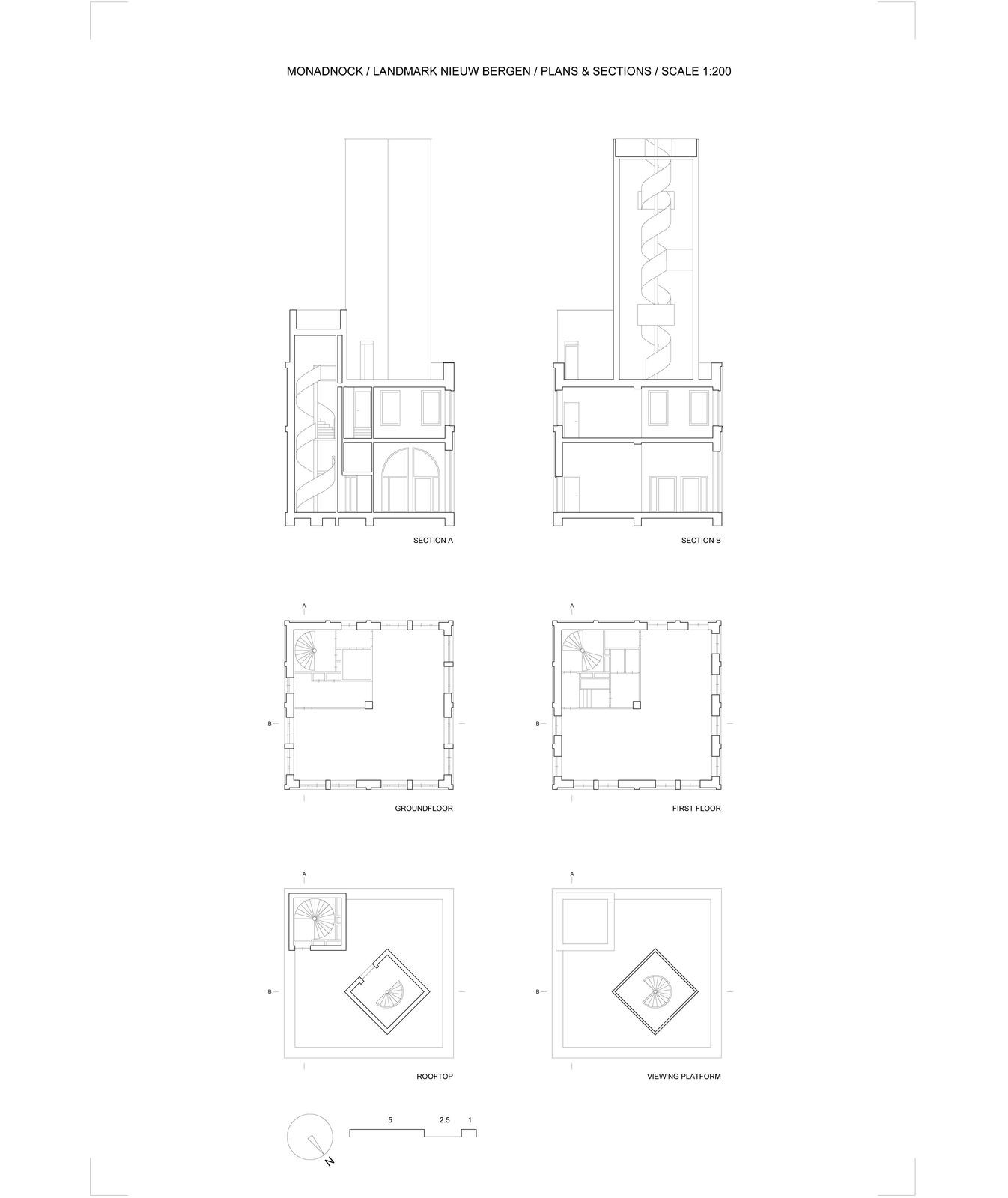
V regionu, kde lze každou sebemenší vesničku už zdáli rozpoznat podle siluety kostelní věže, byla obec Nieuw-Bergen jako otloukánek. Svého hendikepu se ale rozhodla zbavit svérázným způsobem. V průběhu projektu na obnovu veřejných prostorů vsi si nechala takovou dominantu postavit. Jedná se o veřejnou věž postavenou vedle tržnice, kterou takto podtrhuje jako jádro obce i renovačního projektu. Věž slouží zároveň jako rozhledna, dá se odsud pozorovat blízká přírodní rezervace. Sama o sobě je kombinací vysoké, abstraktní hmoty a nízkého soklu budovy. V té vzniká prostor pro restauraci nebo hospodu – tedy pro snadno přístupný prostor, jenž se rázem stává přirozeným centrem vsi.

Stavba je pokryta červenými a zelenými cihlami s malými průzory, které osvětlují i vnitřek věže. Design se má záměrně nést v optimistickém duchu, vyzývá k návštěvě budovy i k osahání fasády. Budova je navržena jako malá stavba: zdáli abstraktní, intimní zblízka.

Dekorovaný sokl se na pohled jeví jako obyčejný dům, ne nepodobný všem ostatním na náměstí, na kterém jsou posazeny dva abstraktní objemy. Dům je ve výsledku jak tradiční, tak jasně rozpoznatelný mezi všemi ostatními. Budova je robustní a čistých forem, funguje jako emblém obce. Stejně tak ale neskrývá své ambice: z různých perspektiv se monolit věže rozpojuje a působí jako svého druhu „outfit“, „image“ budovy.

Ateliér Monadnock při přípravě projektu studoval a nechal se inspirovat tradičními nizozemskými obchodními budovami. Ty jsou typické svými proporcemi a obvykle se nacházejí právě na náměstích, jež ve středověku sloužila jako tržiště. I tento rys byl vodítkem při přípravě návrhu: budova má ostatně dvojznačný status, není ani kostelem, ani radnicí, ale má přitom reprezentovat celé společenství. Proto má být budova do budoucna využita jako kombinace veřejných a komerčních prostor.

  • Ateliér: Monadnock
  • Autoři: Job Floris, Sandor Naus
  • Země: Nizozemsko
  • Město: Nieuw-Bergen
  • Realizace: 2016
  • Užitná plocha: 280.00m2
  • Plocha pozemku: 100.00m2
  • Poznámka: foto © Stijn Bollaert
  • autor: Monadnock *
  • publikováno: * 9. 3. 2017
  • zdroj: * Mies van der Rohe Award

Mohlo by vás zajímat

Generální partner
Hlavní partneři