Architektura / občanské stavby

Dřevostavbu veřejného WC na pražském Petříně od studia DESIGN Arcom porostou popínavé rostliny

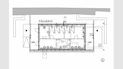
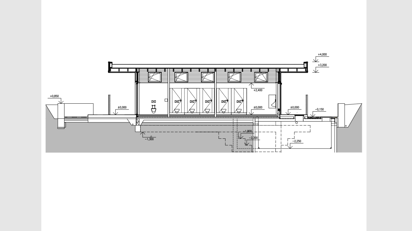
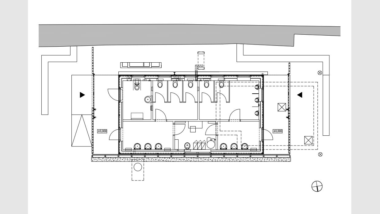
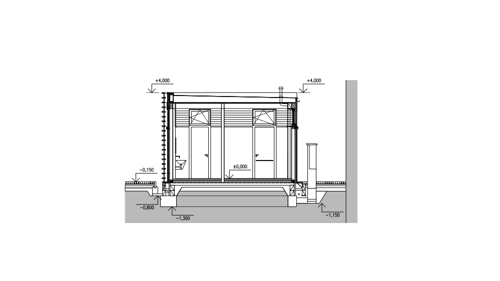
Veřejné toalety v Praze na Petříně, které navrhlo studio DESIGN Arcom, se snaží v okolním prostředí působit co nejnenápadněji. Materiálové řešení dřevostavby kryté falcovaným plechem má navazovat na blízkou Petřínskou rozhlednu. Plášť jednoduché nenáročné stavby navíc časem pokryjí popínavé rostliny.

DESIGN Arcom , 11. 7. 2019

  • Země: Česká republika
  • Realizace: 2017
  • Město: Praha
  • Datum projektu: 2015
  • Realizace: 2017
  • autor: DESIGN Arcom *
  • publikováno: * 11. 7. 2019
  • zdroj: * Autorská zpráva

Klíčová slova:

Praha dešťová voda dřevostavby

Mohlo by vás zajímat

Generální partner
Hlavní partneři