Architektura / občanské stavby

Muzeum zapuštěné do písečné duny. Antiteze k masivním válečným bunkrům

V Dánsku, na místě s bohatou válečnou historií, vznikl nový objekt sloužící jako muzeum druhé světové války. Hmotou reaguje na betonový monolit původního německého bunkru a vytváří tak ostrý kontrast mezi architekturou obou staveb. Muzeum TIRPITZ dokončila před několika týdny dánská kancelář BIG.

BIG , 1. 8. 2017

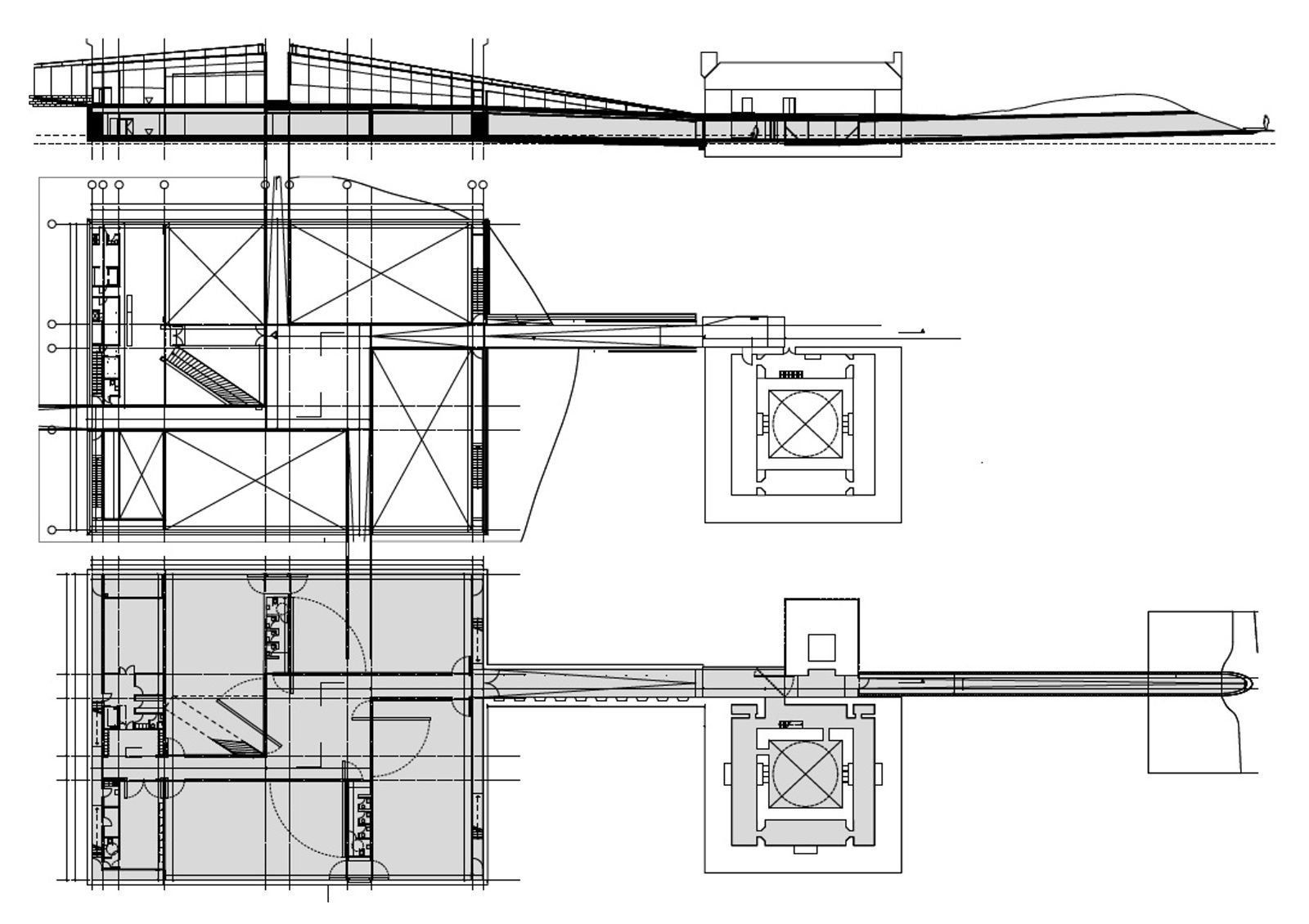
Muzeum TIRPITZ je nové symbolické místo v písečných dunách, které se chová jako určitá protiváha k dramatické válečné historii oblasti Blåvand na západním pobřeží Dánska. „Neviditelné muzeum“ o výměře 2 800 metrů čtverečních rozšiřuje a transformuje historický německý bunkr z druhé světové války do inovativního kulturního komplexu, který hostí čtyři výstavy v rámci jediné struktury, která je kompletně zapuštěná do terénu.

Po příjezdu uvidí návštěvníci nejprve bunkr a až poté objeví cesty zařezané v písečné duně, po kterých sestoupají do centrálního průsečíku. Nádvoří uprostřed nového objektu umožňuje přístup do čtyř galerijních prostorů umístěných v podzemí, které osvětluje přirozené světlo, přestože jsou doslova vytesané do písku.

Stálé i dočasné výstavy navrhla dánská agentura Tinker Imagineers. Poskytují tematické zážitky, které se věnují strhujícímu příběhu vojenské mašinérie. Nové muzeum působí jako ostrý kontrast k masivnímu betonovému monolitu válečného bunkru. Přestože by bez něj nevzniklo, chová se přesně opačně: snaží se co nejvíce splynout s krajinou a navodit pocit otevřenosti a lehkosti.

  • Ateliér: BIG
  • Země: Dánsko
  • Realizace: 2017
  • Město: Blåvand
  • Realizace: 2017
  • Plocha pozemku: 2 800.00m2
  • autor: BIG *
  • publikováno: * 1. 8. 2017

Klíčová slova:

BIG bjarke ingels Dánsko muzeum bunkr

Mohlo by vás zajímat

Generální partner
Hlavní partneři