
Nové využití mrtvého objektu. Ze skladiště vlny vznikl multifunkční prostor
Budova, která původně sloužila jako sklad na vlnu, se nachází v londýnské čtvrti Whitechapel. Je součástí vznikajícího projektu Goodmans Fields, který podporuje začínající podniky - hlavně bary a kavárny, které mohou oživit kreativní atmosféru v této čtvrti.
EARCH.CZ , 23. 10. 2017
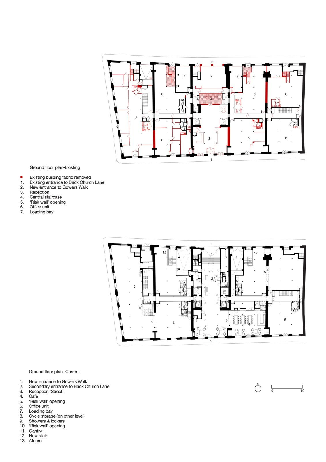
Architekti do nového vzhledu budovy zakomponovali spoustu prvků, které připomínají její minulost. Zároveň ale vybudovali spoustu zcela nových prostor s poctivě zvládnutým řemeslným provedením. Uspořádání objektu má nově vstup na západ na Gowers Walk, čímž se spojuje s budovou Goodmans Fields. V tomto spojení je umístěna recepce a veřejnosti přístupná kavárna, která byla porotou Královského institutu britských architektů RIBA zvlášť oceněna za promyšlené uzpůsobení objektu veřejnosti. Vchod je osvětlený atriovým prostorem ve středu budovy, který zároveň napomáhá lepší cirkulaci světla v horních patrech.
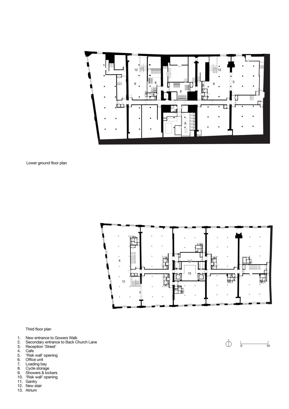
Porota RIBA také ocenila čistý a jednoduchý vzhled všech pater. Práce s detaily je zvládnuta perfektně. Výsledná budova vychází z velmi promyšleného přístupu k propojování původního a současného. Zajímavý detail představuje například kovová stěna u nového vchodu, která odkazuje na dlouhou historii tohoto místa. Nástěnná malba od Stuarta Patience, umístěna právě u vchodu, poskytuje hravý pohled na historii budovy.
Projekt byl realizován i během doby, co v ostatních částech budovy probíhal běžný pracovní život - to ovšem výsledek zásadně neovlivnilo. Jde o elegantně organizované a dobře vyřešené pracoviště, které je domyšlené i ve vztahu k parkování jízdnímćh kol nebo odnášení odpadu. Zároveň svým vlastním způsobem oslavuje významnou historii budovy.
- Ateliér: Duggan Morris Architects
- Země: Velká Británie
- Město: London