Architektura / rodinné domy

Rodinný dům od zerozero se zakusuje do stráně u Prešova

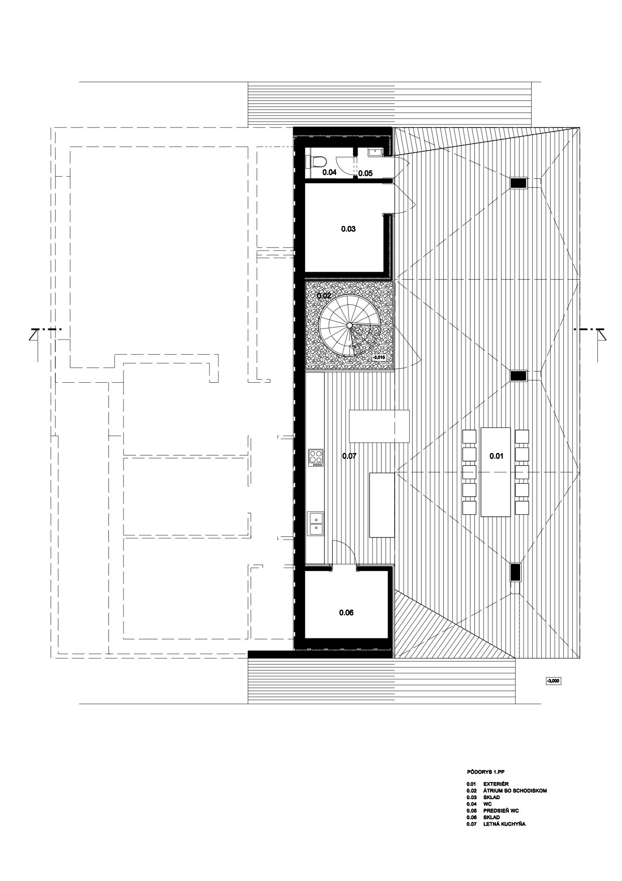
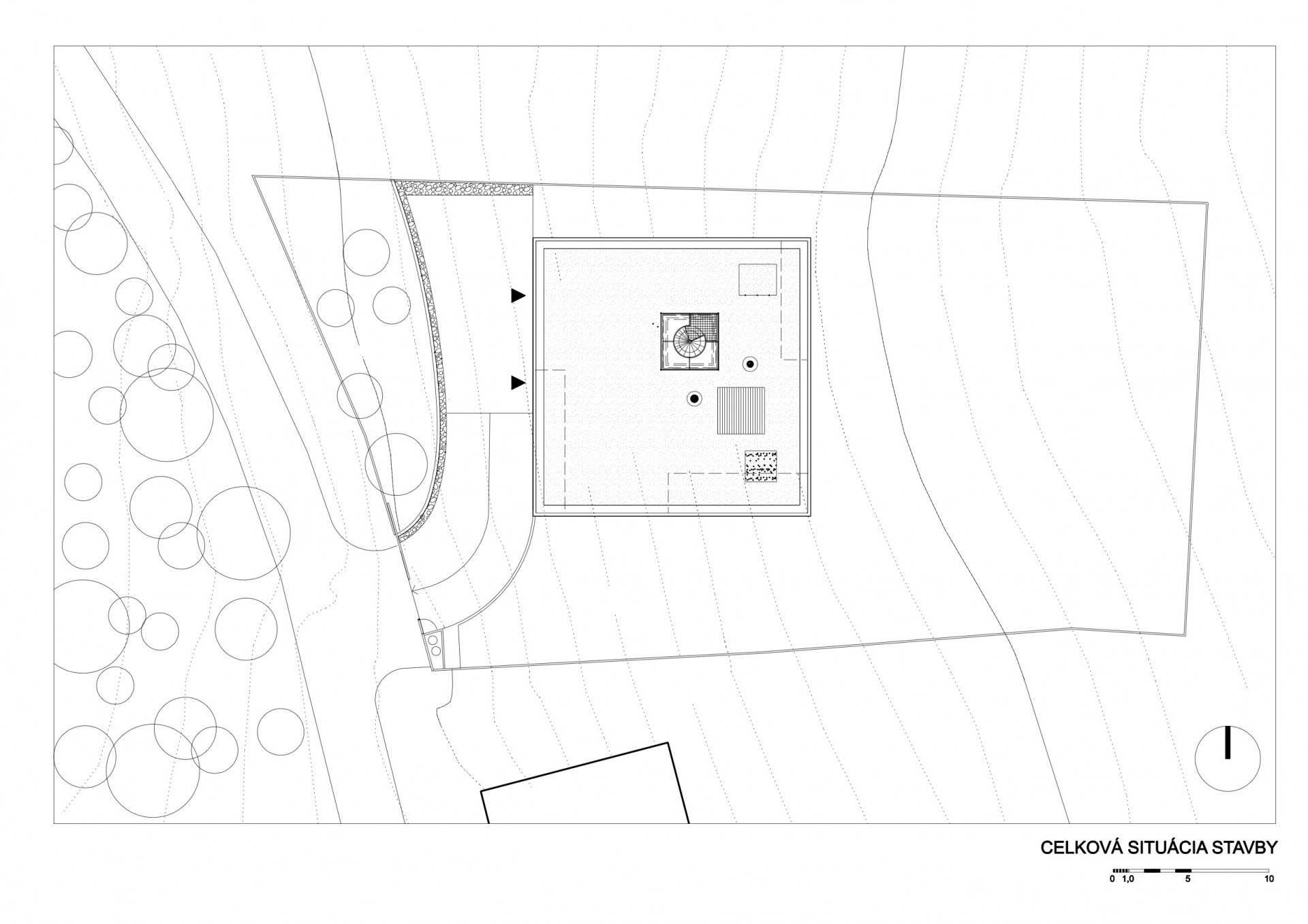
Rodinný dům od slovenského studia zerozero stojí ve stráni u Prešova a svým umístěním a hmotovým řešením se snaží začlenit do svého okolí. "Prelínanie architektúry ako výsledku ľudskej činnosti a prírodného prostredia sa stáva hlavným ideovým východiskom konceptu," píšou architekti. Hlavní obytné patro stavby svírá dvojice železobetonových desek - jeho část zároveň nadnáší sloupy pro vytvoření kryté terasy. Vnitřní prostor definuje pátio s výrazným točitým schodištěm. Střechu pokrývá zeleň a může tak sloužit jako další venkovní terasa.

zerozero , 7. 5. 2018

  • Ateliér: zerozero
  • Autoři: Irakli Eristavi, Pavol Šilla
  • Země: Slovensko
  • Město: Prešov
  • Ulice, číslo: Líčšia
  • Datum projektu: 2009
  • Realizace: 2013
  • Užitná plocha: 243.00m<sup>2</sup>
  • Zastavěná plocha: 320.00m<sup>2</sup>
  • Plocha pozemku: 1 620.00m<sup>2</sup>
  • autor: zerozero *
  • publikováno: * 7. 5. 2018
  • zdroj: * Autorská zpráva

Mohlo by vás zajímat

Generální partner
Hlavní partneři