
Dům z dvojice lodních kontejnerů nabízí dostatek prostoru k odpočinku i práci
Polští architekti realizovali chytře řešený víkendový dům, který sestává z dvojice lodních kontejnerů. Za fasádou z tmavého plechu se ukrývá překvapivě prostorný a světlý interiér, který rozšiřuje také střešní terasa.
Tereza Staňková , 24. 9. 2022
Do návrhu kabiny se architekti z polského studia Wiercinski pustili společně s odvážnými investory, kteří se dlouhodobě zajímají o možnosti dočasné a adaptivní architektury. Chatu v současnosti najdeme v komunitní zahradě v polské Poznani, odkud by se díky své mobilitě měla časem přesunout do lesa i na vodu. Slouží přitom jako integrovaný pracovní a odpočinkový prostor, jaký mnozí z nás v pandemické době zoufale postrádali.
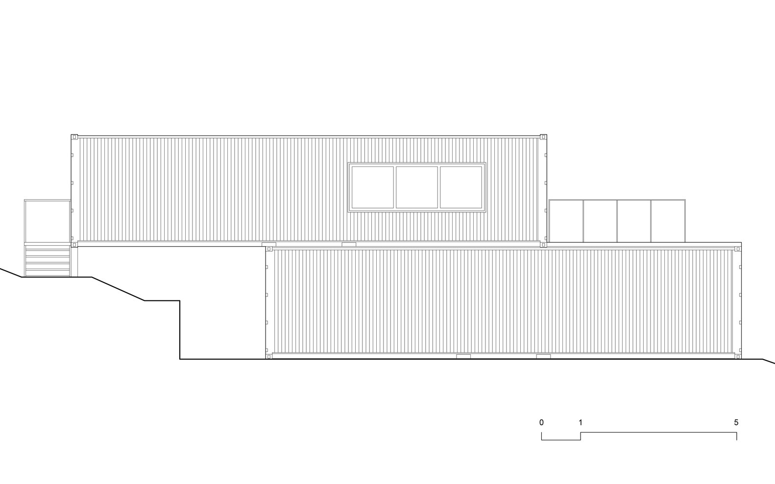
Z výrobní haly pokračovala cesta hotových kontejnerů přímo na pozemek majitelů. Transport a dodatečné montážní práce na místě přitom zabraly pouze jeden den. Kontejnery jsou umístěny na sobě, přičemž díky horizontálnímu posunutí horního objektu o necelou polovinu své délky se část střechy spodního kontejneru může využívat jako prostorná terasa. Do horního kontejneru se dostanete pomocí vnějších ocelových schůdků.

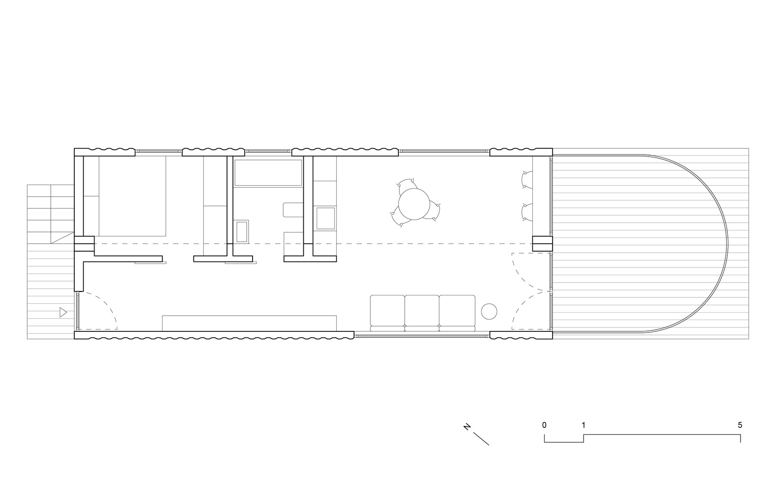
Interiér nabízí plochu o velikosti 54 metrů čtverečních a výšku stropů 2,6 metru. Snadno se sem proto vejde otevřený obývací pokoj, plně vybavená kuchyň, pracovní prostor, ložnice a koupelna s vanou. Architekti se rozhodli navrhnout také veškerý nábytek, zaujmou přitom zejména organicky tvarované židle na terase. Stěny interiéru jsou obloženy březovou překližkou, díky které působí místnosti útulně
Více k tématu
Fasáda ze silného trapézového plechu je natřena matnou zelenou barvou tak, aby kontejnery ladně vpluly do okolní krajiny. Okna mají tvar čtverce a jsou osazena do konfigurací po dvou až třech. Původní kovová vrata nahradilo velkorysé prosklení zprostředkovávající vstup na terasu s výhledy do okolí. Za zmínku také stojí oválná balustráda na terase, která je společně s vnějšími schody vyrobena z černé oceli.
- Autoři: Adam Wiercinski
- Ateliér: wiercinski - studio
- Město: Poznaň
- Realizace: 2021
- Užitná plocha: 55 m²