Architektura / občanské stavby

Vědeckým centrem v Dánsku se vine stometrové točité schodiště

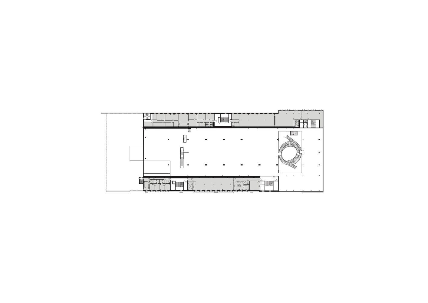
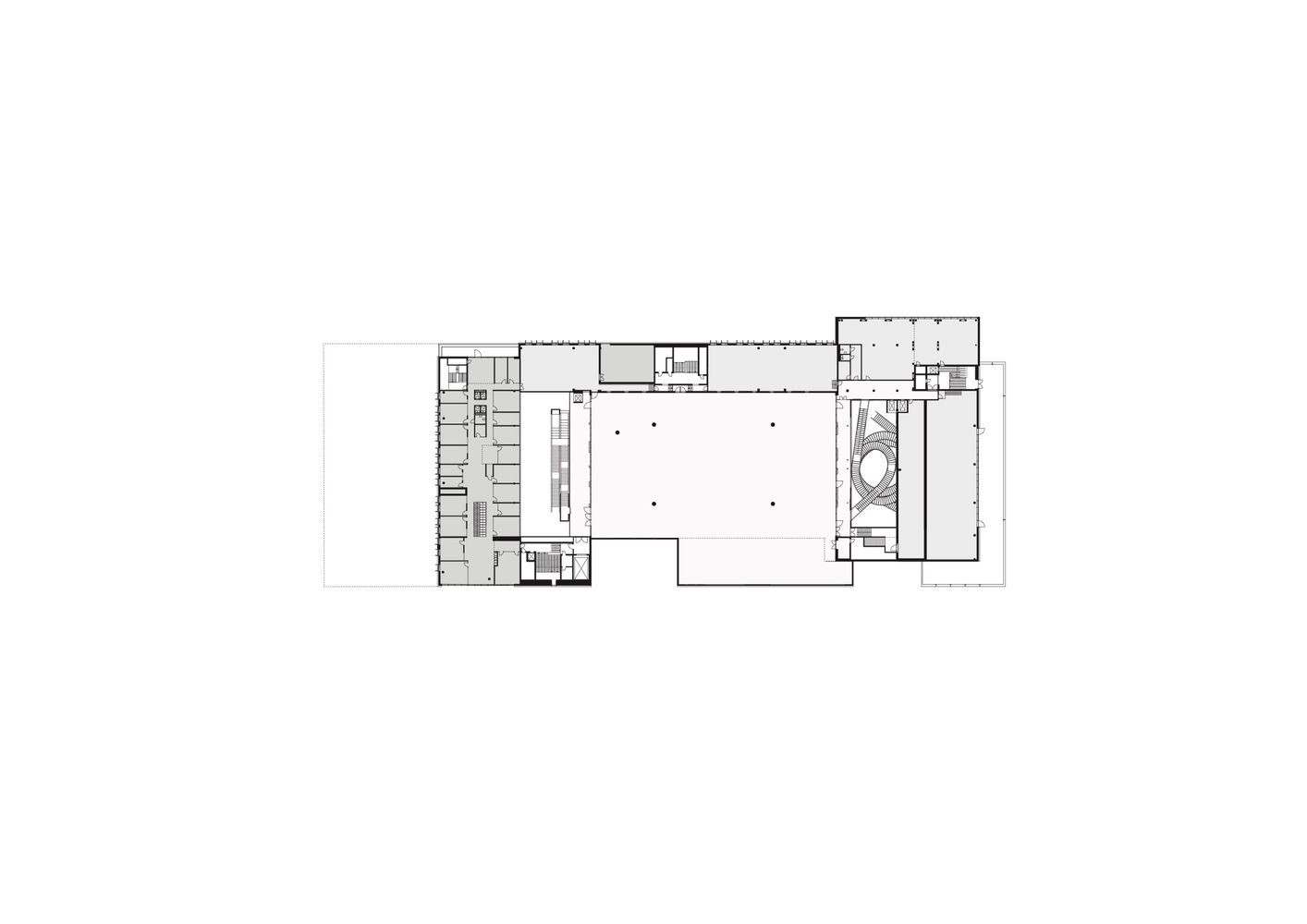
Nové vědecké centrum Experimentarium v dánském ​​Hellerupu je pojato jako interaktivní prostředí zaměřené na prezentaci vědy a technologií. Fasády proto například slouží pro ilustraci dynamiky tekutin, celý prostor ovšem jednoznačně ovládá velkolepé schodiště Helix, na které návštěvníci narazí ihned po průchodu hlavním vchodem.

CEBRA , 13. 11. 2017

Vědecké centrum Experimentarium ve městě Hellerup potřebovalo pro své potřeby více místa, zároveň také chtělo své aktivity více zviditelnit ve veřejném prostoru. Bylo ovšem nutné zůstat hmotově v půdorysu stávající industriální budovy – z toho důvodu se architekti snažili o efektivnější využití prostor budovy, předvším cose vertikálnosti týče. 

Budovu dánská architektonická kancelář reorganizovala promícháním stávajících funkcí s novými, přidáním nových podlaží a řezem budovy na dvou místech, které umožnilo vložení atria s půsbivým schodištěm. Na cihlovou základnu staré budovy architekti zároveň položili sadu kubických objemů vyrobených z hliníku. Tyto objemy tvoří dynamickou kompozici, která odráží funkci Experimentaria a rozmanitost služeb, které nabízí.

Působivé měděné schodiště Helix se vine budovou a vede návštěvníky do čtyř pater, kde mohou zažít zcela nové zážitky. Koncepce schodiště byla vyvinuta během workshopu s Jakobem Bohrem, profesorem na DTU Nanotech. Forma schodiště představuje abstraktní struktury DNA. Stometrové schodiště je postaveno ze 160 tun oceli a oplátováno 10 tunami mědi.

  • Ateliér: CEBRA
  • Země: Dánsko
  • Realizace: 2016
  • Město: Hellerup
  • Datum projektu: 2011
  • Realizace: 2016
  • Užitná plocha: 26 850.00m2
  • autor: CEBRA *
  • publikováno: * 13. 11. 2017
  • zdroj: * Středisko mědi

Klíčová slova:

Dánsko Hellerup měď schodiště

Mohlo by vás zajímat

Generální partner
Hlavní partneři