Dům jako souhra kontrastů. Sjednocujícím prvkem jsou okna a posuvy Schüco

Podstatou architektonického návrhu rodinného domu v německém okrese Paderborn jsou kontrasty − mezi otevřenými a uzavřenými prostory, hladkými a strukturovanými povrchy, světlými a tmavými materiály. Sjednocujícím prvkem umožňujícím dosáhnout kompaktního vzhledu fasády jsou pak velkoryse prosklené plochy oken a posuvů Schüco s metalickými povrchy plastových profilů.
Schüco CZ s.r.o. , 4. 11. 2021 / Advertorial
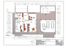
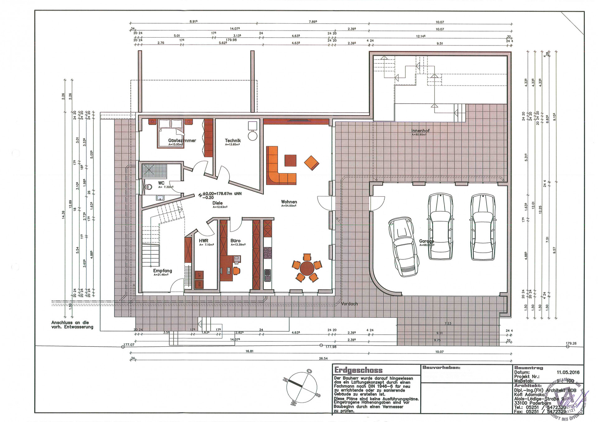
Nemovitost se nachází na svažitém pozemku klínovitého tvaru a má poměrně nestandardní topografickou polohu. Cílem návrhu kanceláře Adomako Architekten bylo vytvořit dvoupodlažní dům, který by harmonicky souzněl s krajinou a zároveň vytvořil zajímavý, ale decentní akcent v rámci okolí - to vše s ohledem na místní stavební předpisy. Výsledkem je stavba, která svou střešní terasou navazuje na vrchol svahu a uzavírá rezidenční hmotu objektu. I do stavební konstrukce se promítá filozofie architekta spočívající ve vytváření živé souhry mezi krytými a nekrytými prostory.

Z hlediska provedení jde o stavbu z vápenopískových cihel s vnějším zateplovacím systémem. Fasádu tvoří tmavé lícové cihly a bílá omítka, přičemž tyto plochy jsou rozbíjeny skleněnými tabulemi oken a posuvných systémů Schüco. Půdorysy obou podlaží lze propojit, nebo je ponechat jako samostatné celky, což klientům poskytuje maximální flexibilitu do budoucna. Obytné a noční zóny se nacházejí na straně směrem ke kopci − tedy dál od cesty − a poskytují tak klid a soukromí.

Světlo jako hlavní designový prvek
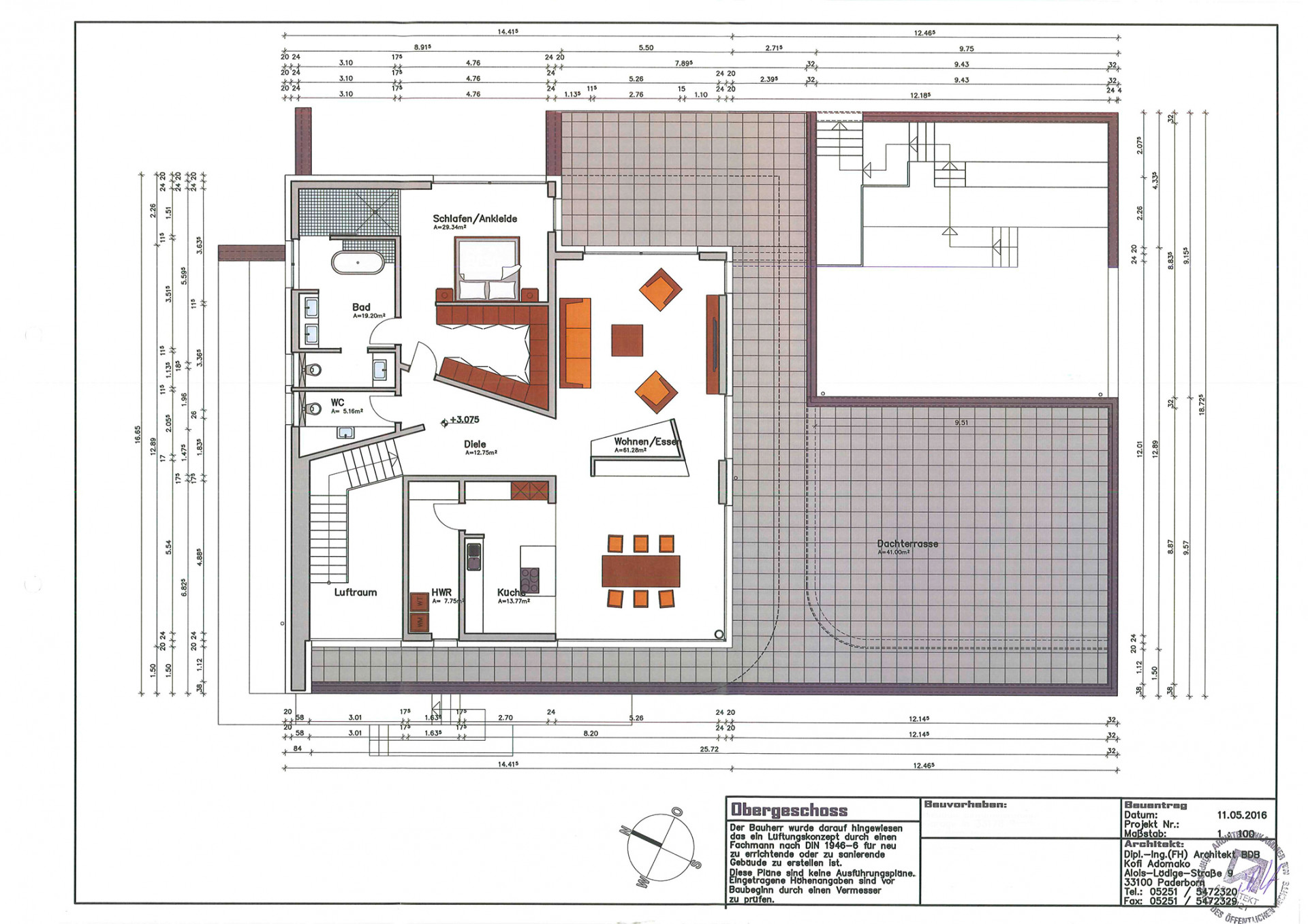
„Přirozené denní světlo by mělo osvětlovat cestu domem a stát se průvodcem jeho obyvatel i hostů,“ věří architekt Joseph Cornelius Adomako. V duchu této koncepce byla navržena vzdušná vstupní hala na výšku dvou podlaží, která je prosvětlena rozměrnými okny. Hosté se odtud po schodišti dostanou do částečně tmavší chodby se zkosenými stěnami, odkud je cesta a pohledy vedou dále do opět mimořádně prosvětlené obytné zóny. Soukromé prostory domu (tedy ložnice a koupelny) jsou úmyslně situovány do zadní části a ustupují do pozadí. Velkorysá přízemní garáž je ohraničena, ale zároveň otevřena velkými prosklenými plochami do zahrady a nádvoří, díky čemuž mají klienti neustále na očích svou sbírku veteránů.

Vzdušné prosvětlené prostory s krásnými výhledy vytvořily systémy pevných oken i posuvných prvků Schüco, z nichž si architekti mohli dovolit navrhnout i řešení na výšku celého podlaží a v šířce až 5,2 m, samozřejmě vždy s trojsklem pro maximální tepelněizolační ochranu. Plastové povrchy úzkých profilů byly sladěny s tmavými lícovými cihlami fasády díky exkluzivní technologii metalických barev Schüco AutomotiveFinish.

„Pro nás bylo výhodné to, že klienti viděli naše předchozí projekty a ztotožnili se s naším stylem transparentnosti a využíváním kontrastních prvků,“ zhodnotil spolupráci s investorem Adomako.

Foto: Obytná a jídelní zóna v prvním patře: Z posuvných systémů Schüco PVC-U bylo možné vytvořeny prvky s rozměry až 5,2 x 2,5 m (š x v).

- Ateliér: Adomako Architekten
- Realizace: 2018
- Město: Paderborn
- Hliníkové systémy Schüco použité v projektu: Schüco ThermoSlide, Schüco LivIng - vysoce tepelně izolační trojsklo; třída ochrany proti vniknutí RC 2; vnější povrchy profilů s metalickým vzhledem (technologie Schüco AutomotiveFinish, odstín SAF-DB 703)