Interiér pražského bytu čerpá inspiraci z Itálie

Díky spolupráci designérů z PAULIS STUDIA s architekty ARTIGA vznikl v jedné pražské novostavbě interiér bytu v italském stylu, kde hraje významnou roli světlo. Bílý interiér obohatili autoři o několik výraznějších detailů, jako jsou třeba zlatá svítidla nebo nadčasový dekor Crystal Calacatta Silva od společnosti Technistone.
TechniStone , 19. 11. 2021 / Advertorial
Prosvětlený interiér
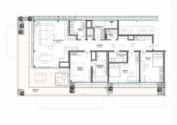
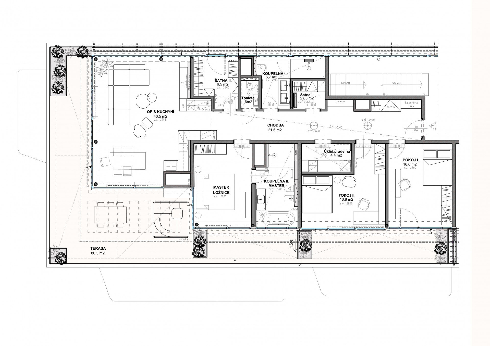
Vzhledem k tomu, že interiér bytu vznikal v novostavbě, jeho autoři mohli zasáhnout také do dispozičního řešení exteriéru, kde se měnila například výška rozměrově prostorné terasy o ploše necelých 80 m². Majitelé na ni mohou vstoupit jak z velkého obývacího prostoru, tak i z dalších místností. V bytě najdeme hned dvě koupelny, dětské pokoje a samostatnou prádelnu. Díky světlým barvám působí celý byt vzdušeným dojmem.

Foto: Celoprosklené stěny zajišťují nerušené výhledy i dostatek denního světla v prostorném obávacím pokoji
Byt za svůj nadstandardní přísun denního světla vděčí celoproskleným stěnám pokrývající takřka celý obvod bytu zajišťující majitelům krásné výhledy na panorama Prahy. Interiér je laděný převážně do světlých barev. Dominantní barvou je zde bílá, která tvoří elegantní a zároveň neutrální pozadí dalšího vybavení bytu.
Bílá a zlatá
„Byt architekti ladili do bílé v kombinaci se zlatou. Toto spojení působí velmi harmonicky a dodává místu punc luxusu. Nábytek vyrábíme z lakované dubové dýhy v bílém odstínu – vypadá daleko elegantněji než obyčejný lak,“ říká designerka Michaela Hrnečková.
Ve velkém obývacím pokoji, který je spojen s kuchyní a jídelnou, si můžeme všimnout také luxusně působícího obkladu z tvrzeného kamene Crystal Calacatta Silva a jídelního barového stolu ze stejného materiálu.

Stůl se skleněnou podnoží, oválná světla v obývacím pokoji a niky v chodbě tvoří výrazné prvky interiéru. Všechny spojuje všudypřítomná zlatá barva – oživující detail bílého obkladu. Konferenční kulaté stolky v obývacím pokoji kopírují tvar světel nad nimi. Podsvětlení jednotlivého nábytku pak dotváří celkovou klidnou atmosféru bytu.
Osvědčená spolupráce
Nejednalo se o první spolupráci majitele s designéry, a tak mělo studio volnou ruku při výběru nábytku i dalších interiérových prvků. „Realizace bytu trvala přibližně tři měsíce. To je déle než obvykle, ale dostatek času nám poskytl možnost ladit detaily a v průběhu se přizpůsobit přáním architektů i klientů. Setkávali jsme se na stavbě a operativně vymýšleli to nejlepší řešení. Realizace byla technicky náročná, ale výsledek stojí za to,“ říká majitel PAULIS STUDIA Michal Čížek.
