Bývalou továrnu v pražských Košířích proměnila kancelář Jakuba Ciglera na loftové bydlení
Průmyslová budova Meopta na Praze 5 prošla celkovou konverzí na bytový dům PARVI Cibulka. Projekt navrhla jedna z největších tuzemských kanceláří JAKUB CIGLER ARCHITEKTI.
EARCH.CZ , 6. 12. 2022 / Advertorial
Brownfield pro bydlení
Na východním okraji přírodního parku Košíře-Motol stojí rozměrná tovární budova, kterou zde na konci padesátých let minulého století nechala vybudovat Meopta-Košíře. Tehdejší pobočka národního podniku, který se specializoval na optický průmysl, zároveň fungovala v průmyslovém areálu po továrně Srb a Štys obdobného zaměření. V minulosti důležitá průmyslová lokalita dnes slouží především pro bydlení. Majestátní objekt Meopty se nově stal bytovým domem PARVI Cibulka.
Návrh konverze bývalé průmyslové stavby vypracovala pražská architektonická kancelář JAKUB CIGLER ARCHITEKTI pro developerskou společnost YIT Stavo. Generálním dodavatelem stavby byla společnost STEP. „Toto místo uprostřed rezidenční vilové zástavby má obrovský potenciál, a tak jsme od počátku plánovali, že brownfield zrevitalizujeme a budově dáme nové využití. Nadále tak zůstane dominantou celé lokality,“ říká Vladimír Dvořák, Urban Development Director YIT Stavo.
Více k tématu
Konverze továrny
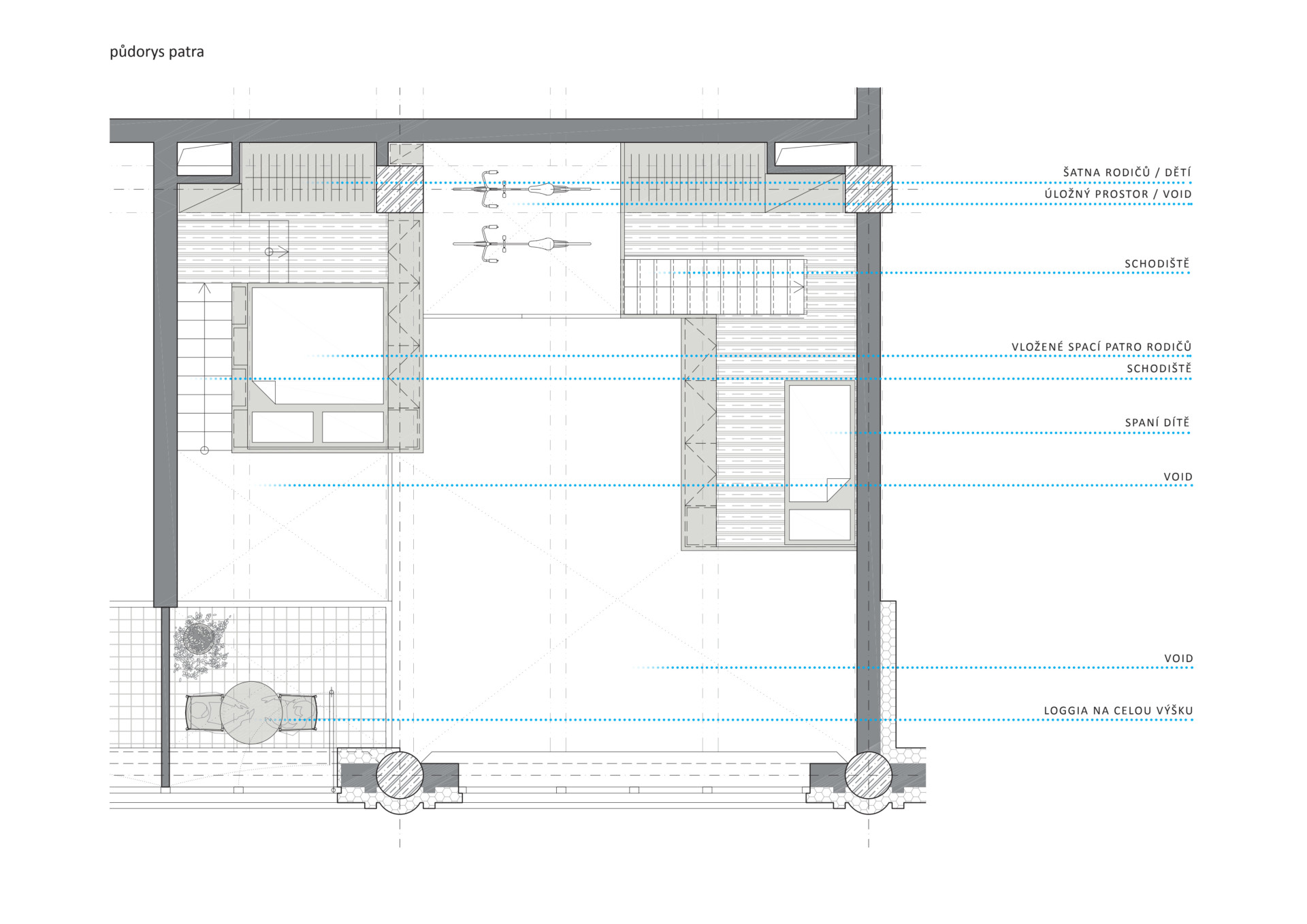
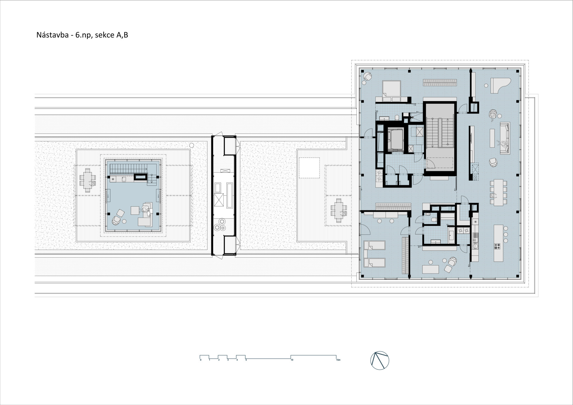
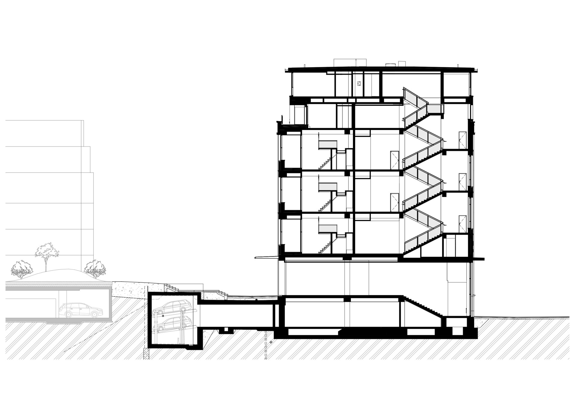
Budova z roku 1959 je založená na monolitickém železobetonovém skeletu, který se propisuje i navenek. Původně měla jedno podzemní a pět nadzemních podlaží, nejvyšší z nich pak bylo řešeno jako ustupující. Základní hmotovou skladbu si budova zachovala i po rekonstrukci. Zvýšena byla pouze lokálně, a to na třech rizalitech, které podlouhlou stavbu traktují ve středu a na okrajích.
„Na šestém nadzemní podlaží jsou realizovány tři nástavby tak, aby jejich hmoty působily co nejvíce odlehčeně a pojmuly jednu až dvě bytové jednotky. Dále se v šestém podlaží nacházejí takzvané skyboxy, jedná se objekty umožňující vstup z bytů v pátém podlaží na střešní zahradu,“ vysvětlují architekti.

Součástí bytů v nižších podlažích jsou také lodžie. Při pohledu na budovu jsou však sotva patrné – architekti je záměrně skryli za původní plášť, aby nenarušili její původní výraz. „Ve snaze docílit zachování původního vzhledu jsme lodžie zapustili do druhého plánu fasády, přičemž okenní výplň v prvním plánu fasády tvoří ‚paraván‘,“ dodávají.
Řešení fasády a oken, včetně parterů, dodala stavební firma HINTON. „Zakázka PARVI Cibulka je řešena primárně jako sloupko-příčková fasáda systému Reynaers CW 50 HI, do kterého jsou vkládána okna a dveře sytému Reynaers Masterline 8. Tato varianta použití systému sloupko-příčkové fasády zajišťuje co největší plochu prosvětlení, a to díky pohledové šířce profilů systému, která je 50 milimetrů. Jako zasklení je použito tepelně izolační trojsklo o hodnotách Ug = 0,5 Wm2/K a o akustických hodnotách Rw = 36 dB,“ vysvětluje Tomáš Pevný, výrobní ředitel Divize hliníkových fasád – HI okna HINTON. „Na zakázce se nachází množství technických detailů, které bylo potřeba vyřešit, například napojení na stěnu včetně zateplení. Dalšími prvky, které nejsou vidět, ale jsou velice důležité pro celou budovu, jsou střešní světlíky s otevíravými střešními okny, které slouží jako odvětrání chráněné únikové cesty,“ dodává.

Z továrních prostorů ve světlé lofty
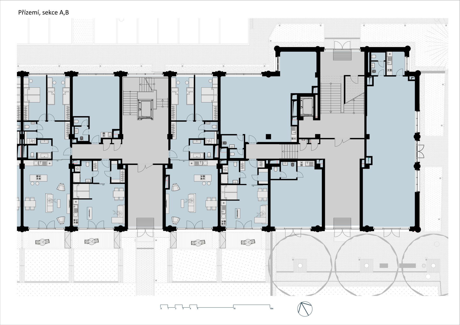
Místo výrobních místností se dnes v bývalé továrně nacházejí nové byty. Ve většině případů se jedná o lofty s novými vestavěnými patry a galeriemi. V jejich zařízení se ke slovu dostaly především přírodní materiály v kombinaci s „industriálními stopami“ – ocelovými konstrukcemi nebo skleněnými příčkami. „Pro vnitřní příčky a dveře je použit systém Reynaers CS 59 PA zasklený jednoduchým bezpečnostním sklem,“ doplňuje Tomáš Pevný.

V komplexu se však nacházejí i jednopodlažní bytové jednotky, mezonety nebo pár komerčních prostorů včetně kavárny. „Bývalá Meopta, nově PARVI Cibulka, je v podstatě sedm bytových domů v řadě, ale přitom se, díky centrálnímu vstupu se službami v pasáži, chová jako residenční palác,“ dodávají architekti z kanceláře JAKUB CIGLER ARCHITEKTI.
Obyvatelé domu budou moci využívat i soukromý vnitroblok, který budova PARVI Cibulka uzavírá s druhým projektem developerské společnosti YIT Stavo v této lokalitě – rezidenčním domem Aalto Cibulka. Prostor je navržený pro trávení volného času, jeho součástí je třeba venkovní posezení pro kavárnu nebo dětské hřiště.
- Ateliér: JAKUB CIGLER ARCHITEKTI
- Autoři: Jakub Cígler a tým
- Země: Česká republika
- Město: Praha
- Developerská společnost: YIT Stavo s.r.o. - https://www.yit.cz/
- Zastavěná plocha: 3 767 m2
- Obestavěný prostor: 89 992 m3
- Hrubá podlažní plocha nadzemní celkem: 18 082 m2
- Hrubá podlažní plocha podzemní celkem: 5 955 m2
- Užitná plocha - byty, služby, obchod: 12 316 m2
- Užitná plocha – společné prostory, garáže, sklepy: 6 767 m2
- Počet bytů: 149
- Počet nebytových jednotek: 10
- Adresa: Naskové 1318, 150 00 Praha 5