Architektura / občanské stavby

Cenu Olověný Dušan za nejlepší studentský projekt na FA ČVUT získalo komunitní centrum od Kristýny Vyslychové

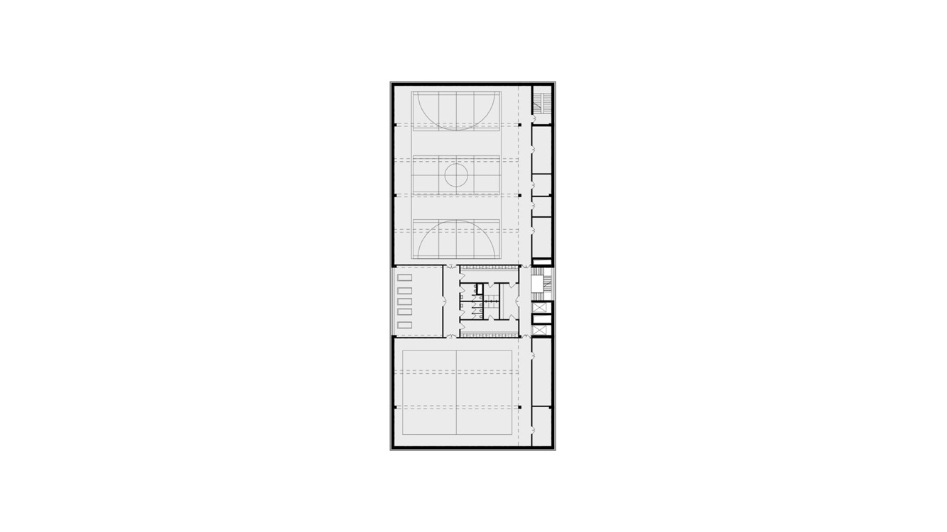
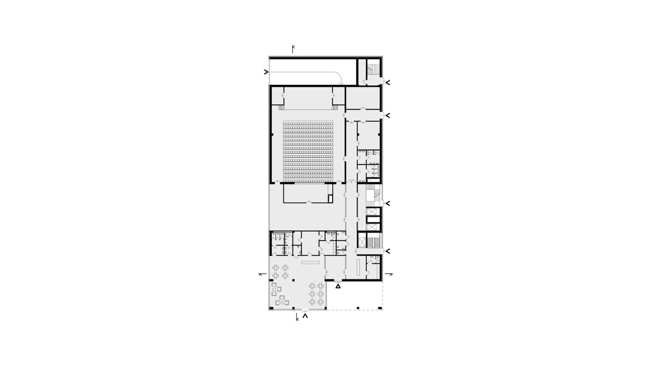
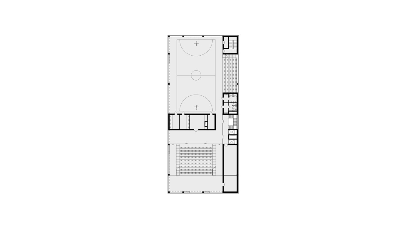
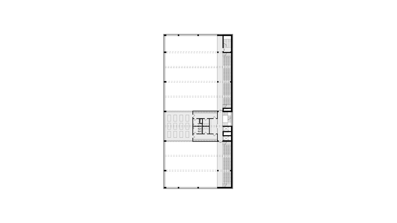
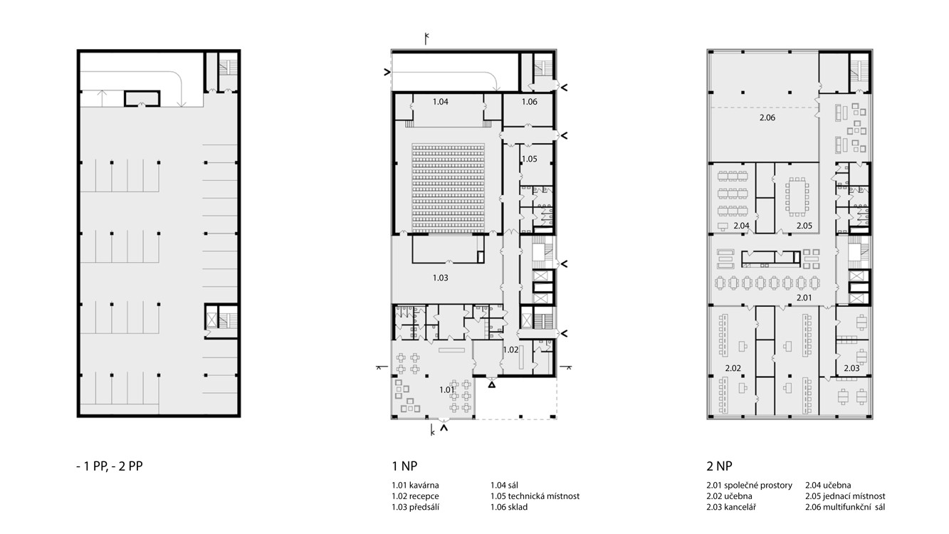
Na konci března proběhlo v pražském prostoru CAMP slavnostní vyhlášení studentských cen Olověný Dušan, které každoročně oceňují nejlepší architektonické a designérské projekty studentů Fakulty architektury ČVUT v Praze. V porotě kategorie Architektura letos zasedli Richard Sidej (předseda), Monika Cihlářová, Lukáš Kordík, Jan Veisser a Štěpánka Šmídová. Porotci posuzovali přes tisícovku projektů celkem ze čtyřiceti ateliérů, z nichž nominovali 10 prací. Jako nejlepší architektonický projekt uplynulého roku porotci vyhlásili Komunitní centrum pod Nuselským mostem od Kristýny Vyslychové z ateliéru Ondřeje Císlera.

Kristýna Vyslychová , 5. 4. 2019

  • Autoři: Kristýna Vyslychová
  • Země: Česká republika
  • Škola: FA ČVUT v Praze
  • Město: Praha 4 - Nusle
  • Datum projektu: 2019

Nabídky práce

Mohlo by vás zajímat

Generální partner
Hlavní partneři