© Daniela Dostálková
© Daniela Dostálková Foto: eArch
Architektura / rodinné domy

Dům v domě

Rodinný dům od Martina Jančoka z roku 2016 se dostal mezi nominované na Cenu Slovenské komory architektů 2017.

PLURAL , 14. 9. 2017

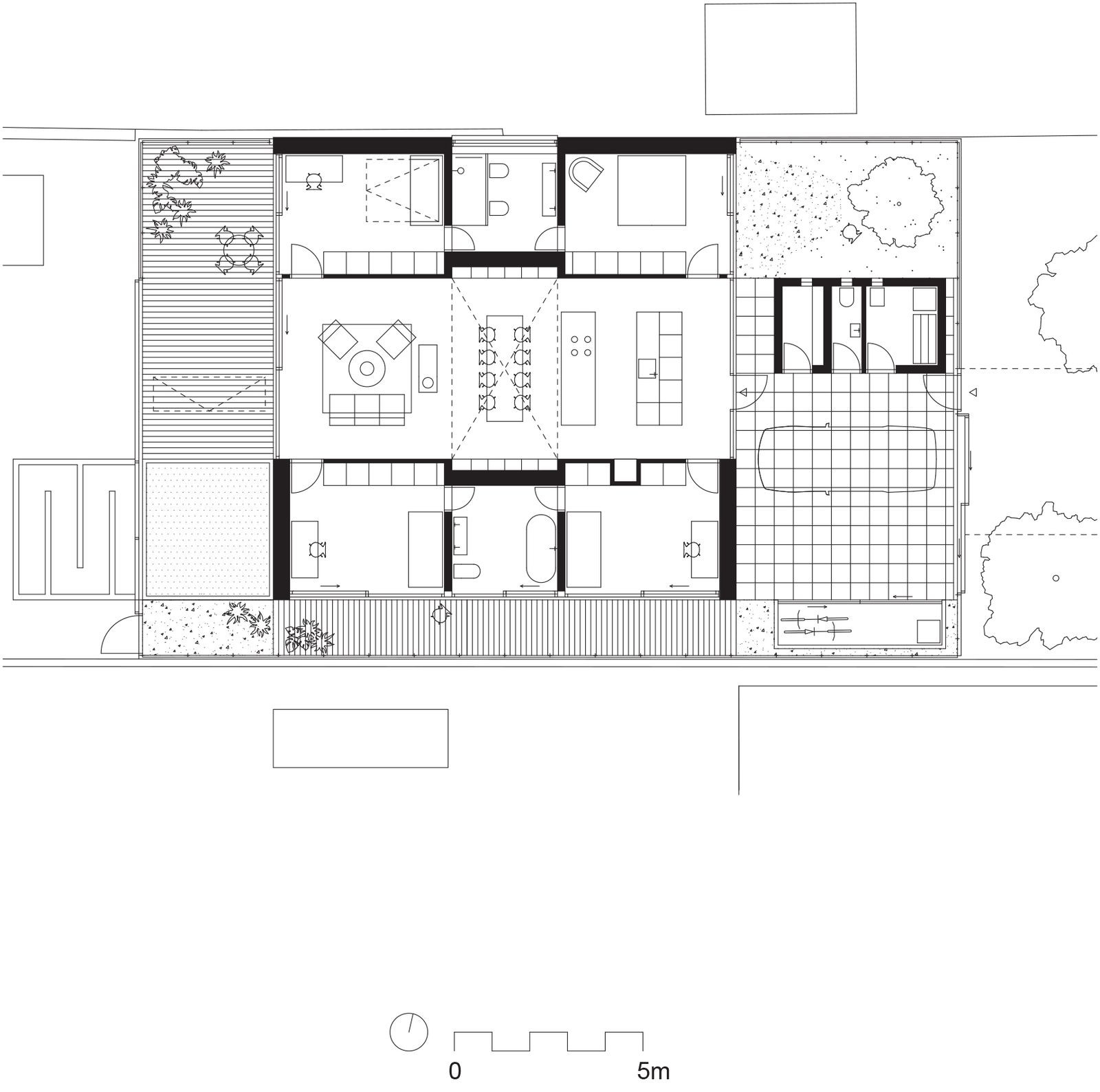
Hmotové a dispoziční uspořádání rodinného domu je rozděleno na dvě stejnoměrné části. Dům a jeho krytý před-prostor, který ho obklopuje ze tří stran. Slouží jako garáž, terasa, skladovací prostor a své místo zde má i bazén. Díky průsvitnému plášti zaručuje stoprocentní intimitu a zároveň v něm je dostatek světla na jakoukoliv aktivitu. Je jakýmsi meziprostorem, není ani domem, ani zahradou, ale propojuje je.

Dům rozděluje dlouhý pozemek na přední a zadní zahradu. Jedna část slouží jako příjezdová cesta a dvůr, zatímco ta druhá poskytuje soukromí a je pobytová. Dispozice domu je poskládána no mřížky 3x3 s jídelnou v samotném centru dění.

  • autor: PLURAL *
  • publikováno: * 14. 9. 2017
  • zdroj: * CEZAAR, Slovenská Cena za architekturu

Nabídky práce

Mohlo by vás zajímat

Generální partner
Hlavní partneři