
Fasádu bytového domu v Praze od ateliéru A.LT Architekti tvoří masivní betonový rastr s lodžiemi
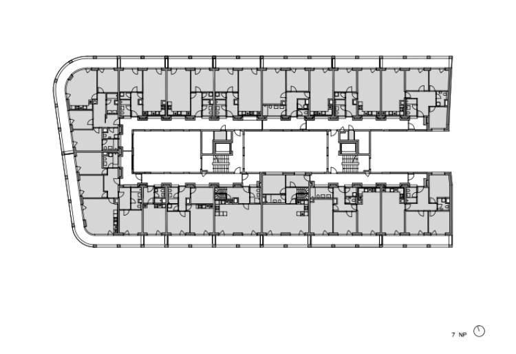
V lokalitě pražské Klamovky dokončili minulý rok architekti ze studia A.LT nový bytový dům, který k sobě přitahuje pozornost masivním železobetonovým rastrem fasády s hlubokými lodžiemi. Díky vnitřním atriím prosvětlujícím byty vznikly také pavlače, pro které architekti netradičně použili žulovou dlažbu z "pražské mozaiky", jejíž podoba vychází z grafického motivu jednotného pro celý dům. Rezidence Prachnerova nabízí přes sto bytů od 1kk po 4kk, v nejvyšším podlaží pak vznikly byty a mezonety s vlastními terasami.
A.LT Architekti , 7. 7. 2020
- Autoři: Peter Lacko, Filip Tittelbach
- Ateliér: A.LT Architekti
- Spolupráce: Tomáš Balej, Lenka Dvořáková, Martina Svobodová, Magdalena Hlaváčková
- Země: Česká republika
- Město: Praha
- Datum projektu: 2015
- Realizace: 2017