Loftový modulární dům shlíží ze svažitého pozemku na oceán
Záměr mladé rodiny spočíval ve vybudování rodinného a prázdninového domu na pozemku na pobřeží Tichého oceánu v Chile. Architekti z kanceláře Altamarea arquitectura na nerovném terénu navrhli dva modulární objekty rozdílných měřítek, větší slouží rodině a menší hostům.
EARCH.CZ , 24. 8. 2018
Rodina zakoupila pozemek v blízkosti Tichého oceánu obklopený borovým hájem za účelem vlastního bydlení a vybudování rekreačního ubytování. Jednou z největších výzev pro projekt představovalo rozmístění obou domů tak, aby každý z nich nabízel co nejlepší výhled na horizont oceánu. Díky navazující architektonické formě spolu domy navzájem komunikují a zároveň poskytují potřebné soukromí. Mezi stavbami architekti vytvořili soukromé a polosoukromé venkovní zóny, v nichž si obyvatelé mohou nerušeně vychutnávat západ slunce nad oceánem.
Více k tématu

Rodinný dům v přední části se nachází na nejvyšším bodě parcely. Druhý dům proto podpírá betonová konstrukce, která slouží také jako garáž s menším skladem. Nerovnosti na pozemku tak architekti využili ve svůj prospěch. Srovnání obou staveb na stejnou úroveň zaručuje rovnováhu mezi hmotami a pohodlné udržení životního rytmu celého projektu.
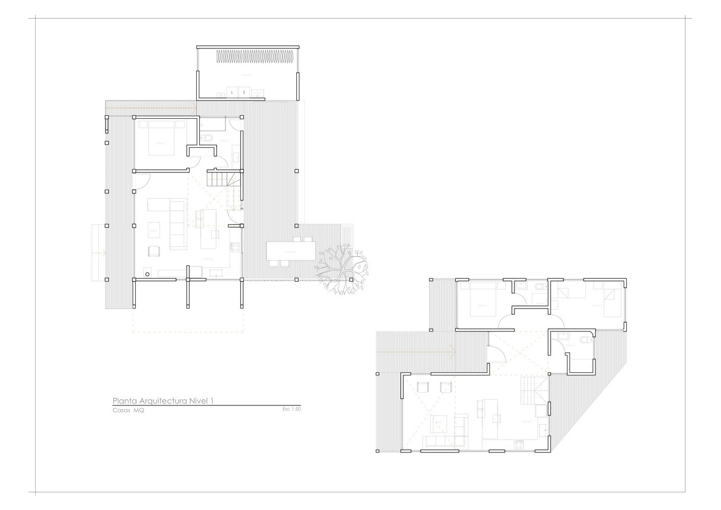
Pro maximální optimalizaci prostředků využitých na stavbu se domy skládají z modulů širokých tři až čtyři metry. Modulární buňky potom doplňují kovové spoje a pilíře nutné pro zpevnění otevřené loftové konstrukce.

Orientace domů se řídí přibližně souměrnými osami pro zajištění výhledu a vytvoření kompaktní synergie mezi objekty. Celý projekt sjednocují použité materiály a způsoby povrchové úpravy. Je patrné, že architekti při návrhu interiéru upřednostnili odhalené dřevo v jeho původní strukturované podobě.

- Ateliér: Altamarea arquitectura
- Země: Chile
- Město: Pichilemu
- Realizace: 2015
- Užitná plocha: 290.00m2