Nad kalifornským údolím se vznáší prefabrikovaný modulární dům od studia Alchemy
Americké studio Alchemy se přes 15 let věnuje vývoji prefabrikovaných modulárních domů, které realizuje po celých Spojených státech. Před pár lety navrhli pro klienta ze San Francisca, šéfa designu obchodů společnosti Apple, dům zasazený do zalesněného svahu, který na malé ploše nabízí komfortní a velkorysý prostor.
EARCH.CZ , 4. 11. 2019
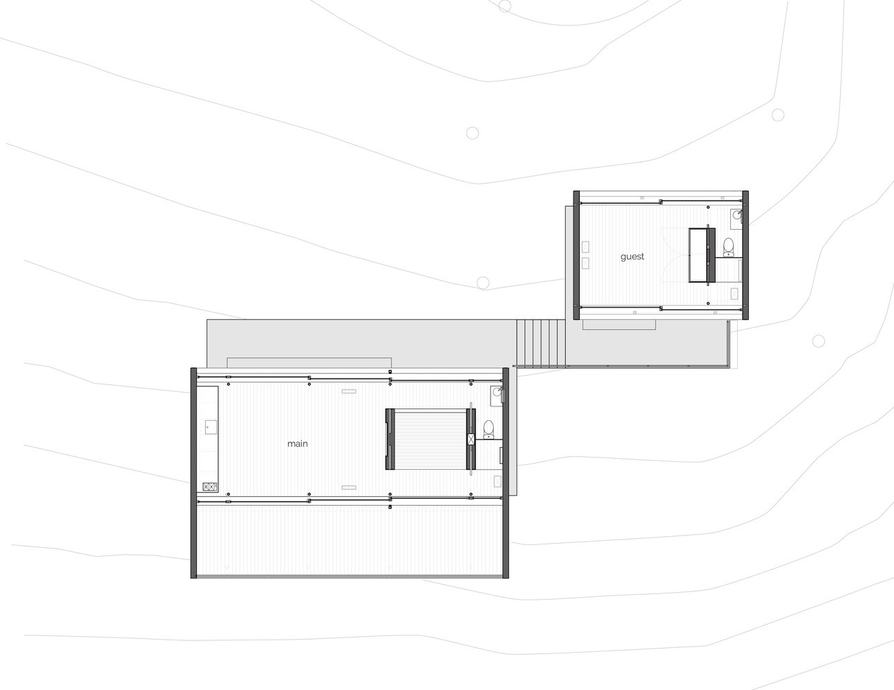
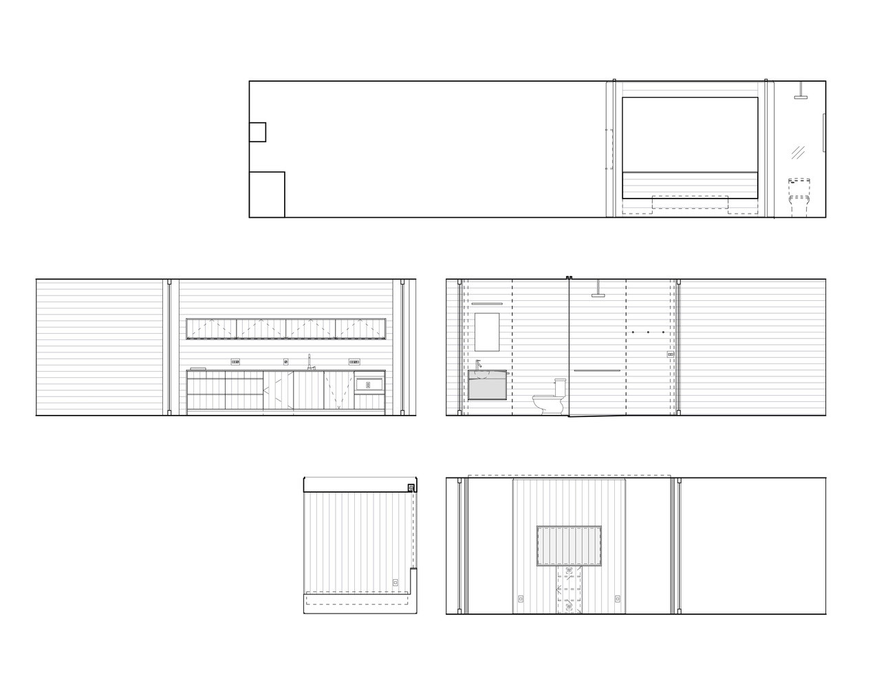
„Ultra-minimal home“, tak popisují architekti z amerického studia Alchemy dům umístěný ve svahu nad kalifornským městem Santa Rosa. Projekt vychází z modulárního prefabrikovaného systému pro realizaci obytných staveb weeHouse®, který studio vyvíjí už od roku 2003. Jako jiné podobné systémy umožňuje weeHouse® rychlou výrobu základních částí staveb, které lze následně upravit podle specifických potřeb konkrétních klientů.
Více k tématu

Dům se skládá ze dvou podobných boxů ve tvaru kvádru, které stojí na betonových soklech zasazených do svahu dubového lesa. Větší z nich o rozměrech 12 x 5 metru slouží jako hlavní dům majitelů. Jeho interiér rozděluje vložená kostka z bílého dubu, ve které se nachází ložnice. Prostornější část boxu pak zabírá otevřený společný prostor kuchyně, jídelny a obýváku, opačný konec pak patří malé koupelně s toaletou. Menší box umístěný výše ve svahu slouží jako pokoj pro hosty.

Prostorově velmi omezené dispozice domu vizuálně výrazně zvyšuje velkorysé prosklení stěn boxů od podlahy ke stropu. Projekt podle architektů prokazuje efektivitu prefabrikovaného modulárního řešení – dům byl navržen v Minnesotě pro klienta ze San Francisca, k jeho zhotovení došlo v Oregonu a téměř stoprocentně hotový byl následně poslán do Kalifornie k „instalaci“ na pozemku. Už při návrhu brali architekti v potaz, aby konstrukce rozměrově co nejlépe vyhovovala lodní logistice.


- Ateliér: Alchemy architects
- Země: Spojené státy americké
- Město: Santa Rosa
- Realizace: 2016
- Zastavěná plocha: 90.00m2