
Panely, ale hliněné. Je z nich vyhlídková věž, kterou lze navštívit ve švýcarském Chamu
Hliněnou věž navrhl architekt Roger Bolthauser. Hlínu pak dusali a věž stavěli jeho studenti. Stavby studia Bolthauser Architekten je možné vidět ve Švýcarsku, anebo také v Českých Budějovicích. V tamním Domě umění začíná jeho výstava, kterou 13. června osobně otevře.
Karolína Vránková , 11. 6. 2024
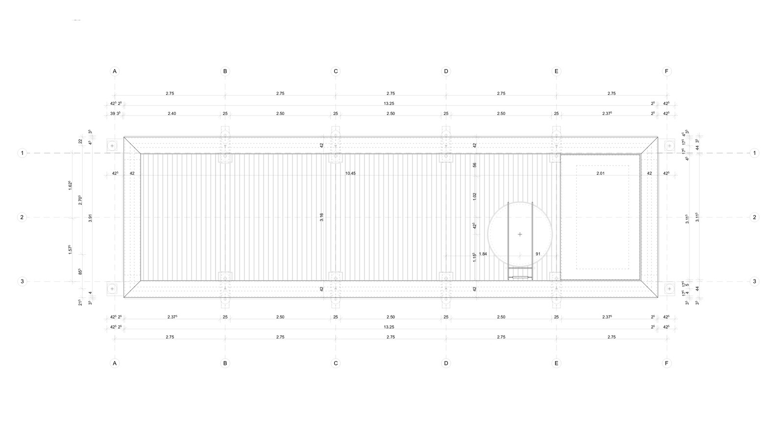
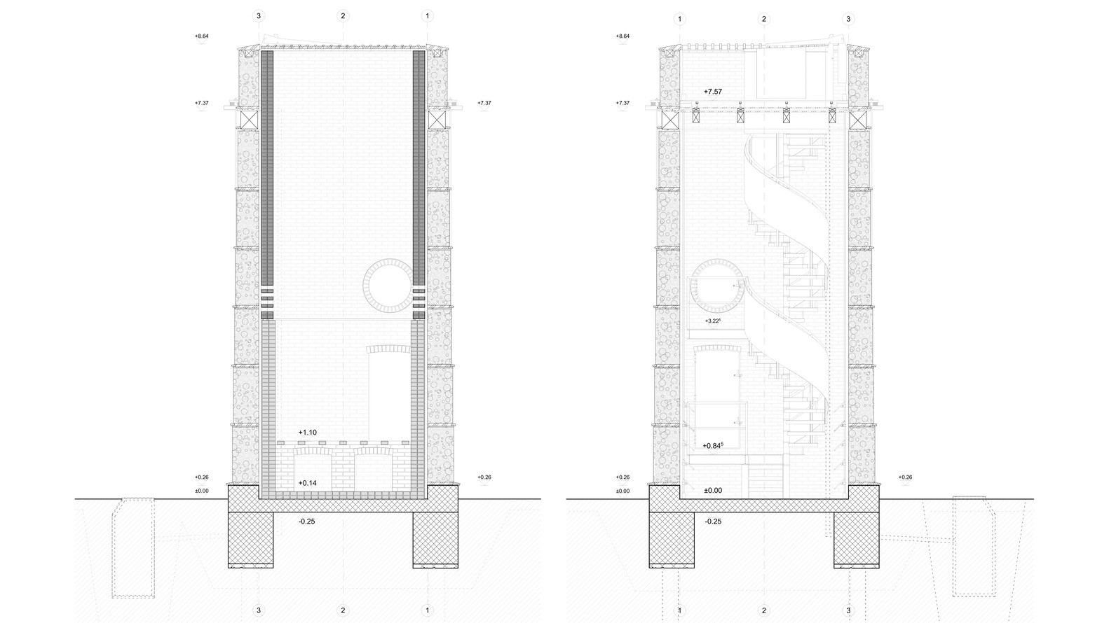
Hlína je ekologická – vytvořit z ní stavební materiál vyžaduje jen desetinu energie oproti cihle nebo betonu. Je to materiál ozkoušený staletími, dá se s ním ale i experimentovat. V Chamu z ní dělali díly podobné panelům a konstrukci drží předpjatá ocelová lana jako třeba u moderních mostů. Vznikla tak desetimetrová vyhlídková věž. Jejím autorem je milovník hlíny a dalších přírodních materiálů, architekt Roger Bolthauser. A také jeho studenti.

Za hlínou do Chamu
Cham je město v německy mluvící části Švýcarska, a dlouho se tu vyráběly cihly. Z cihelen však zbyla už jen poslední, a v ní vzniklo Ziegelei Museum čili muzeum cihlářství. Je tu expozice cihlářské výroby, hned vedle je dosud jáma, kde se dřív hlína těžila a nyní je přetvořená v přírodní jezírko. A před dvěma lety přibyla opodál právě nová věž, na kterou je možné vylézt a rozhlížet se po areálu.
Proces její výstavby začal už v roce 2017, kdy oslovili architekta Rogera Bolthausera a ten sem přivedl své studenty z Technické univerzity v Mnichově a pak také z letní školy, kterou pořádala vysoká škola ETH v Curychu. Společně vyvinuli techniku výstavby a věž také na místě vlastnoručně zkompletovali. Hotovo bylo až v roce 2022, proces byl totiž složitý a zahrnoval také rok, kdy hliněné panely schly.
Nejprve bylo ovšem třeba namíchat materiál – hlínu plus stavební suť. Materiál se pak dusal do forem. Z nich vyšly bloky, které se transportovaly na místo stavby. Každý měl zespoda platformu, která umožnila ho přesouvat, a posléze se stala součástí konstrukce věže – to je jen jedna z mnoha inovací, kterou tu architekti a stavitelé v jednom uplatnili. Jednotlivé kroky je možné vidět ve videu, které během stavby vzniklo.
Aby věž získala potřebnou stabilitu, za použití relativně tenkých stavebních bloků, využili tu, u hliněné stavby vůbec poprvé, předpínanou konstrukci; stabilitu stavby pomáhají udržet napnutá ocelová lana. „Tímto způsobem za pomoci předpínání by bylo možné stavět z hlíny i mnohem větší stavby než doposud,“ říká Roger Bolthauser v podcastu německého časopisu Detail.

Věž je nejen inovativní, ale i krásná. Hrubou strukturu hlíny doplňují ocelová lana, dřevěné prvky a černá ocel. Z ní jsou vrata a točité schodiště uvnitř a dohromady to připomíná dřevní doby, kdy se tu v žáru pálily cihly.
Více k tématu
Roger Bolthauser začal s hlínou experimentovat už před mnoha lety na stavbě rodinného domu ve Vorlabersku a i když dnes projektuje spíš větší stavby, zájem o hlínu ho neopouští a uplatňuje ji většinou aspoň ve formě vnitřních stěn či omítek.
Svou hliněnou věž v Chamu, a také další projekty, představí pomocí videa a prostorové instalace v Domě umění v Českých Budějovicích. Výstava nese název Roger Bolthauser – Response a 13.června v 18 hodin ji architekt osobně zahájí. Jinak je možné sem zavítat až do 4. září.