Pro sokoly i nesokoly. Do společensko-kulturního centra u Brna se dá zajít sportovat, zkoušet na basu i sednout na pivo
Budova uprostřed Hrušovan u Brna do sebe nechává nahlížet skrze prosklený parter. Za okny je multifunkční sál, kam se chodí za sportem nebo na kulturní akce. Plus prostory na další aktivity, které jsou v obci potřeba.
Adéla Vaculíková , 18. 9. 2023
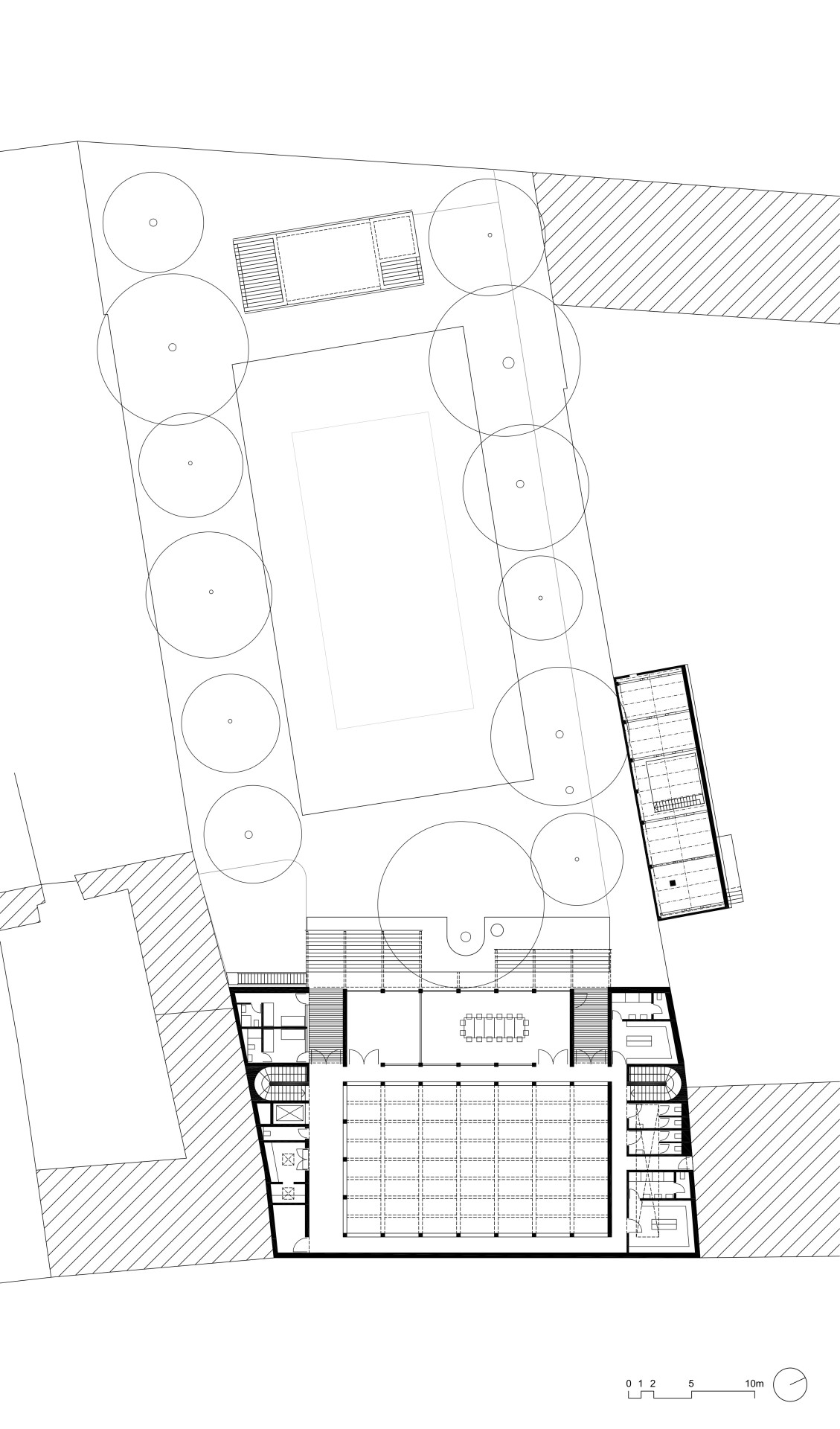
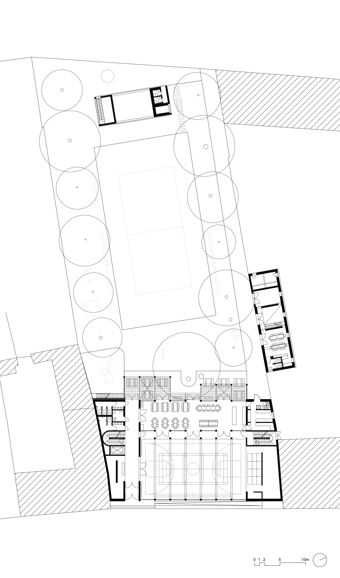
Budova má na sobě napsáno SOKEC, jak se v kraji říkávalo sokolovnám. Své sídlo tady má TJ Sokol Hrušovany u Brna, jinak ale funguje jako univerzální sportovně-společenské centrum pod správou obce. Na programu tu bývají cvičení sokolské všestrannosti, gymnastika, badminton i množství kulturních a společenských akcí. Ty zde iniciují místní spolky nebo jednotlivci. Odehrávat se mohou v hlavním multifunkčním sále, který funguje i jako tělocvična, v restauraci nebo venku v zahradě centra.
Více k tématu
Hrušovany u Brna jsou obcí o 3 600 obyvatelích. Na SOKEC její zastupitelstvo v roce 2016 vypsalo otevřenou architektonickou soutěž, což je potřeba pochválit. Zvítězil v ní tým Štěpána Kubíčka, Martiny Buřičové, Jana Novotného a Jonáše Krýzla, který dal novému objektu současnou, ale zároveň své prostředí respektující podobu. Stavba je tak akorát velká a výrazná. Upozorňovat na sebe trochu může, přeci jen se jedná o centrum společenského života obce.
„SOKEC se nachází se v historickém jádru obce, na místě bývalé zchátralé sokolovny a tvoří společně se sousedícím obecním úřadem, školou a školkou autentické živé centrum. Jeho umístění, charakter i funkce v rámci obce jsou velmi důležité a je třeba je zachovat, podpořit a aktualizovat,“ říkají autoři návrhu.

Budovou prostupuje bílá barva a dřevo. Všechny prostory – hospoda, tělocvična, menší sály v patře a taky ochoz, ze kterého se dá shlížet na sportovní plochu, se tak vizuálně propojují

V zahradě je červená víceúčelová sportovní plocha, a taky klubovna, která zároveň slouží jako tribuna/jeviště/místo pro promítání. V jejím suterénu je zase hudební zkušebna. Stojí zde i samostatný sklad – bývalé stavení, do kterého se schovává třeba zahradní nábytek pro slavnosti. Mimo to obsahuje zázemí pro klub seniorů, které se prakticky otevírá pohledu ven. Na otevřenosti je ostatně postavený celý areál, jednotlivé prostory se dají vzájemně propojovat nebo izolovat. Na krytou terasu za hospodou si tak můžete přijít sednout, i když se zrovna nic nehraje.
- Ateliér: caraa.cz, KAVA, spol. s.r.o.
- Autoři: Štěpán Kubíček, Martina Buřičová, Jonáš Krýzl, Jan Novotný
- Země: Česká republika
- Projekt: caraa.cz s.r.o.
- Město: Hrušovany u Brna
- Adresa: Masarykova č.p.19, Hrušovany u Brna