
Prostě chata. Ve Skelné Huti vznikl dům, který si na nic nehraje
Archetypální silueta, dřevěný obklad, čistá geometrie konstrukce. Chata od re:architekti je klasická a také levná – přišla na méně než dva miliony korun.
Jan Bureš , 26. 7. 2023
Někdy si místo a jeho kontext žádá architektonické gesto či atypické řešení, jindy naopak potřebuje řešení osvědčená bez nutnosti exhibice. Ne vždy je nutné být za každou cenu inovativní a vystupovat z řady. Místo to nepotřebuje.
Více k tématu
Nebyl důvod vystupovat z řady
Právě taková je i malá vesnice Skelná Huť severně od Plzně. Najdeme zde krásnou pravidelnou zástavbu vesnických domů z předminulého a minulého století. Domy se sedlovou střechou do ulice orientované klasickou archetypální siluetou, které dává celé vesnici charakter a identitu.

Architekti z ateliéru re:architekti, kteří jsou známí pro svůj citlivý přístup k projektům s návazností na své okolí, se rozhodli v tomto duchu pokračovat a rozvinout hodnoty místa. A to je hlavní kvalitou a charakteristikou chaty, kterou „réčka“, jak se ateliéru v architektonických kuloárech přezdívá, doplnili Skelnou Huť.
Přísná geometrie
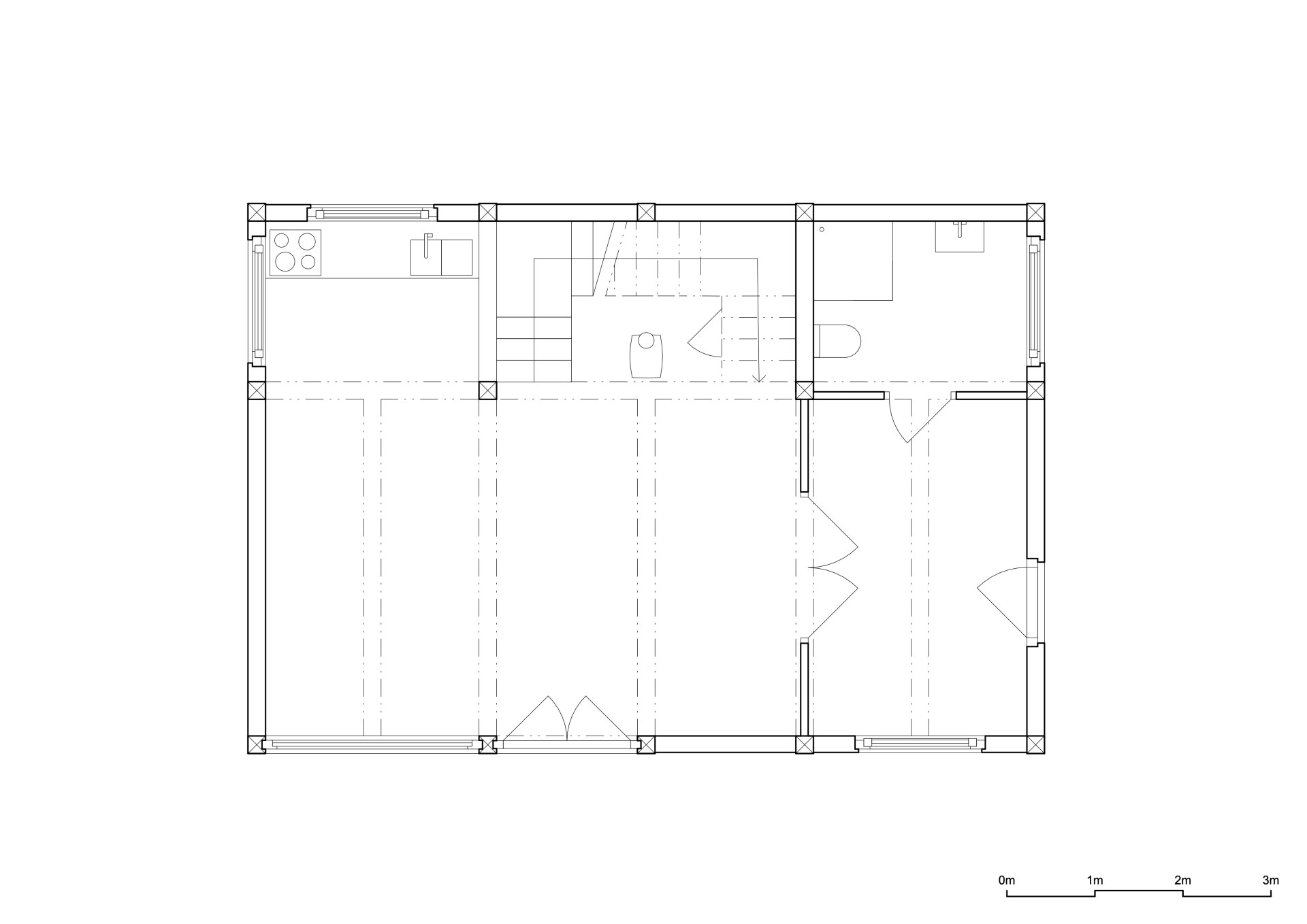
Chata je koncipována jako dřevostavba o dvou patrech. Půdorys má tvar obdélníku, který přísná symetrická geometrie dřevěné konstrukce sloupů a trámů pravidelně rozděluje na šest menších obdélníků různých velikostí. Tyto obdélníky prostorově vymezují jednotlivé funkční celky – vstupní prostor, koupelnu, obytný prostor, kuchyň a schodiště. Obytný prostor, kuchyň a otevřené schodiště nejsou nijak odděleny. Vzniká tak plynulý a vzájemně se prolínající prostor.

Druhé patro, které se ukrývá v podkroví sedlové střechy, obsahuje ložnici a pokoj pro hosty. Celá chata, a především její interiér vyniká tradičním řemeslným zpracováním. Trámová konstrukce v přírodním odstínu dřeva v kombinaci s bílým podbitím stropu a světlou prkennou podlahou a schodištěm vytvářejí nádech a atmosféru českých roubenek a chalup.
Osvědčené řešení, příjemné a dostupné bydlení
Využít osvědčeného a po několik století prověřovaného řešení není špatně, právě naopak. Někdy prostě není důvod vymýšlet a rozvíjet nové formy a tvary, když si to místo nežádá. Autoři se rozhodli vytvořit jednoduchý, jasně čitelný dům, kterému byla věnována zvýšená péče, co se týče materiálového řešení a řemeslných detailů - trvalý, kvalitní, ale přesto dostupný. Konečná cena byla pod dva miliony korun.

- Autoři: David Pavlišta, Ondřej Synek, Jan Vlach, Jiří Žid, Kateřina Gloserová
- Ateliér: re:architekti
- Země: Česká republika
- Město: Skelná Huť
- Projekt: 2017
- Realizace: 2021
- Hrubá podlažní plocha: 95 m²
- Obestavěný prostor: 343 m³
- Náklady: 2 mil. Kč