Renesanční sklepy začlenili architekti Ehl a Koumar do nové přístavby radnice v Brandýse nad Labem
Na renesanční sklepy v areálu radnice v Brandýse nad Labem nasedla nová přístavba archivu. Nese se ve znamení pádné struktury a střídmého tvarosloví, chce doplňovat, a ne na sebe upozorňovat – stejně jako další stavby letos zesnulé architektky Aleny Šrámkové, která na projektu spolupracovala.
Adéla Vaculíková , 1. 8. 2022
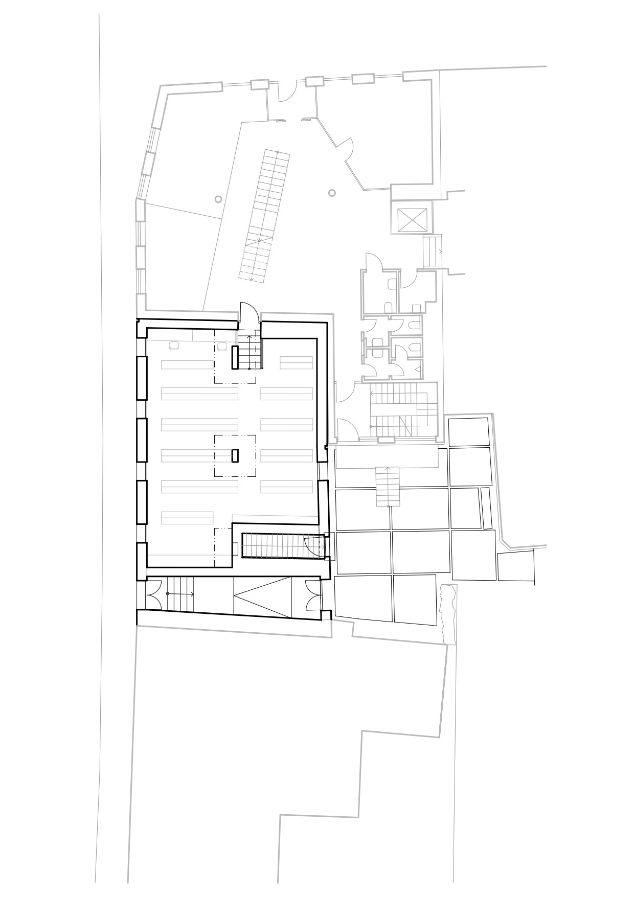
Přístavba, která rozšířila radnici v Brandýse nad Labem, je na první pohled zcela obyčejným domem – a to v dobrém slova smyslu. Je dalším článkem ve skládačce. Městský úřad Brandýs nad Labem-Stará Boleslav totiž sídlí ve srostlici dnes již čtyř domů. Dva jsou historické a dva novodobé, všechny na sebe bezprostředně navazují a definují jednu stranu náměstí.
Novou přístavbu radnice, která funguje jako archiv, od ateliéru EHL & KOUMAR ARCHITEKTI ale z náměstí neuvidíte. Stojí totiž ve vedlejší ulici, kde nahradila starý zchátralý dům. Připojuje se odtud k nárožní hmotě radnice z roku 2006 od architektů Leopolda Nikela a Radmily Niklové z ateliéru DUO.
Více k tématu
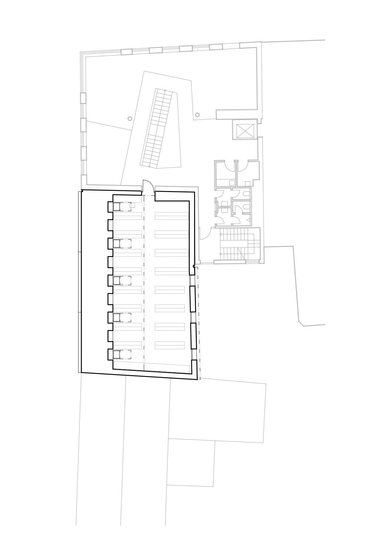
Ačkoliv nová přístavba s historickou částí městského úřadu bezprostředně nesousedí, i tak se musela vypořádat s pozůstatky starší zástavby. Novostavba zde nasedla na původní renesanční klenuté sklepy, které architekti ze statických důvodů zesílili železobetonovými sloupy a mikropilotami. Novodobou intervencí v jinak na cihlu a kámen očištěném prostoru jsou rovněž výrazné betonové lavice.

Architektura ateliéru EHL & KOUMAR ARCHITEKTI je známá pro racionální pojetí, které si zkrátka na nic nehraje. Lukáš Ehl a Tomáš Koumar vystudovali architekturu u nedávno zesnulé architektky Aleny Šrámkové a dlouhou dobu s ní také tvořili tvůrčí tým (jako ateliér Alena Šrámková Architekt/Šrámková architekti). S Alenou Šrámkovou pracovali na nové budově Fakulty architektury ČVUT i souboru obytných budov Corso Pod Lipami v Řevnici. Autorský podíl má Alena Šrámková i na přístavbě k radnici v Brandýse nad Labem, konkrétně na jejím hmotovém rozvrhu a barevnosti.
Nová hmota archivu se nese ve znamení velmi střídmého tvarosloví – hlavními elementy jsou hladká stěna, malé okenní otvory a římsa s kubickou profilací. „Je uzavřená do plných zdí s relativně malými okenními otvory. Nad průčelím má jednoduchou železobetonovou římsu a dodržuje střídmou barevnost v přírodních odstínech použitých materiálů,“ popisují novostavbu architekti Lukáš Ehl a Tomáš Koumar. Stejná střídmost se opakuje i v interiéru, železobetonové konstrukce zůstaly odhalené a stěny dostaly bílou barvu.

Nová přístavba rovněž reaguje na své okolí, výškově se přizpůsobuje zástavbě v ulici. V souvislosti s radničním areálem zase funguje jako propojovací článek mezi ulicí a vnitřním radničním nádvořím. „Část dvora mezi novostavbou a původní radnicí je nově upravena s povrchem z betonových desek s dilatačními a obvodovými spárami vyplněnými kačírkem,“ dodávají architekti. Novou přístavbou se tak radniční areál zcelil a uživatelsky zpříjemnil.
- Ateliér: EHL & KOUMAR ARCHITEKTI
- Autoři: Lukáš Ehl, Tomáš Koumar, Alena Šrámková
- Spolupráce: DELTAPLAN spol. s r.o., NĚMEC POÁK, spol. s r.o.
- Země: Česká republika
- Město: Brandýs nad Labem
- Projekt: 2013-18
- Realizace: 2021
- Užitná plocha: 269 m²
- Zastavěná plocha: 139 m²
- Obestavěný prostor: 2 100 m³