
Rodinný dům v Bratislavě získal po rekonstrukci elegantní výraz a otevřené dispozice
Slovenský ateliér TOITO rekonstrukcí rodinného domu v Bratislavě maximálně otevřel jeho vnitřní dispozice, zatímco exteriér sjednotil do elegantního výrazu s jemnými detaily fasád.
Adéla Vaculíková , 4. 2. 2022
Rodinný dům v Bratislavě s půdorysem zhruba 10x10 metrů prošel kompletní rekonstrukcí pod vedením domácího ateliéru TOITO. Architekti se rozhodli dvoupatrový dům očistit od dřívějších nánosů a radikálně změnit i jeho vnitřní dispozici. Soustředili se přitom na maximální otevření plánu jednotlivých podlaží.
V přízemí, kde se dříve nacházely tři samostatné místnosti a chodba, se dnes rozprostírá jednotný obývací prostor částečně dělený úseky nosných zdí. Obývací pokoj s výhledem do zahrady se organicky přelévá do prostoru kuchyně nebo jídelny a celým podlažím se tak dá doslova proplout. „Každé podlaží je navrženo jako jeden pokoj dělený částečně nosnou stěnou,“ popisují architekti.
Více k tématu
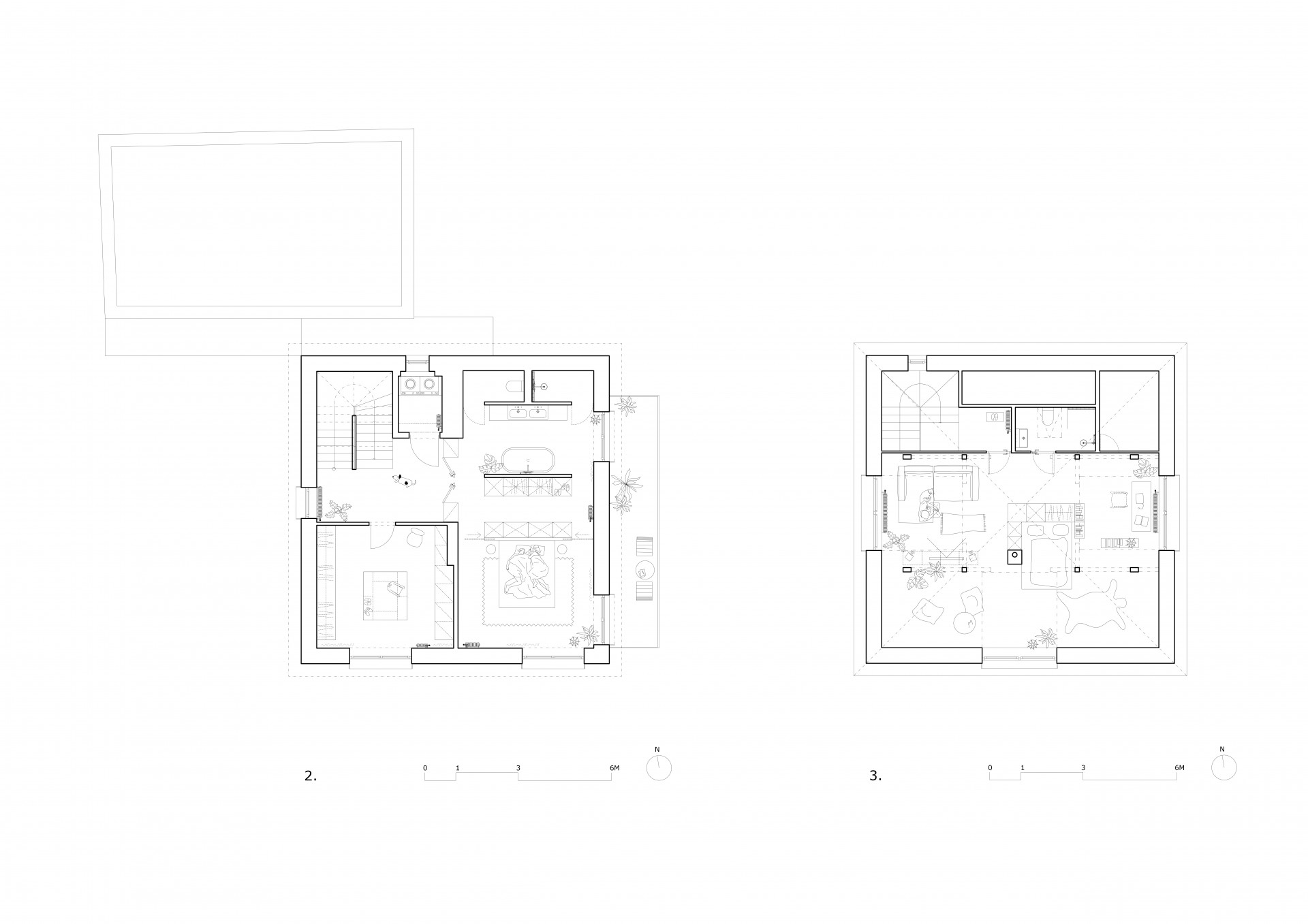
První patro věnovali rodičům a umístili sem prostornou ložnici s koupelnou. Místo zde našla i samostatná šatna. Architekti v prvním patře znovu pracovali s co nejvíce otevřenou dispozicí a prostory rozdělili pouze subtilními příčkami. Přes celou plochu podkroví se zase rozprostírá dětský pokoj.
Radikální změna vnitřních dispozic se projevila i navenek. Architekti přidali několik nových okenní otvorů, ty původní navíc zvětšili a střechu osadili širšími vikýři. Původní fasádu s režnými cihlami nahradili novou bílou omítkou a zahradní průčelí navíc obohatili o konstrukci teras. Ta největší je přístupná přímo z obývacího pokoje, druhá zase z ložnice v prvním patře.

Za podobou interiéru rodinného domu stojí designérka Romana Klimeková, která sladila všechny místnosti do světlých barev s převahou bílé. Teplé tóny dovnitř vnáší dřevěné prvky jako masivní podlaha nebo nové schodiště s minimalistickým zábradlím táhnoucím se až ke stropu. Designérka ale v interiéru uplatnila třeba i kámen a vše nakonec propojila zlatými detaily. Důležitou součást projektu pak představuje taky zahrada, za jejímž řešením stojí Eugen Guldan.
Dům, jehož podlaží jsou založená na otevřené dispozici, tak nakonec dostal i interiér s jednotným charakterem, který ještě umocňuje dojem z celkového propojení.

- Ateliér: toito architekti
- Spolupráce: Miroslava Mišurová
- Město: Bratislava
- Realizace: 2018 - 2021
- Interiér: Romana Klimeková
- Zahrada: Eugen Guldan