Skleněné městečko Železný Brod zve do muzea. Najdete tu sklo od korálku po fontánu
Muzeum na náměstí v Železném Brodě nelze přehlédnout – kombinuje se tu hranatá funkcionalistická budova s historickou roubenkou. Teď neobyčejný „dvojdům“ prošel rekonstrukcí.
Karolína Vránková , 30. 8. 2024
Perle, růže, malované a ryté vázy. A hlavně figurky ze skleněných tyček – jezevčíci, koloušci a draci. Drobné předměty ze skla vyráběli v Železném Brodě a okolí od 19. století. Ve městě vznikla také první československá sklářská škola. Pochází odtud rovněž významná sklářská výtvarnice Jaroslava Brychtová; její tatínek, výtvarník Jaroslav Brychta, na škole vyučoval, a právě on začal s výrobou známých postaviček. Je také autorem sochy skláře na průčelí muzea.

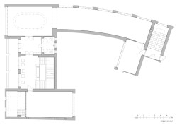
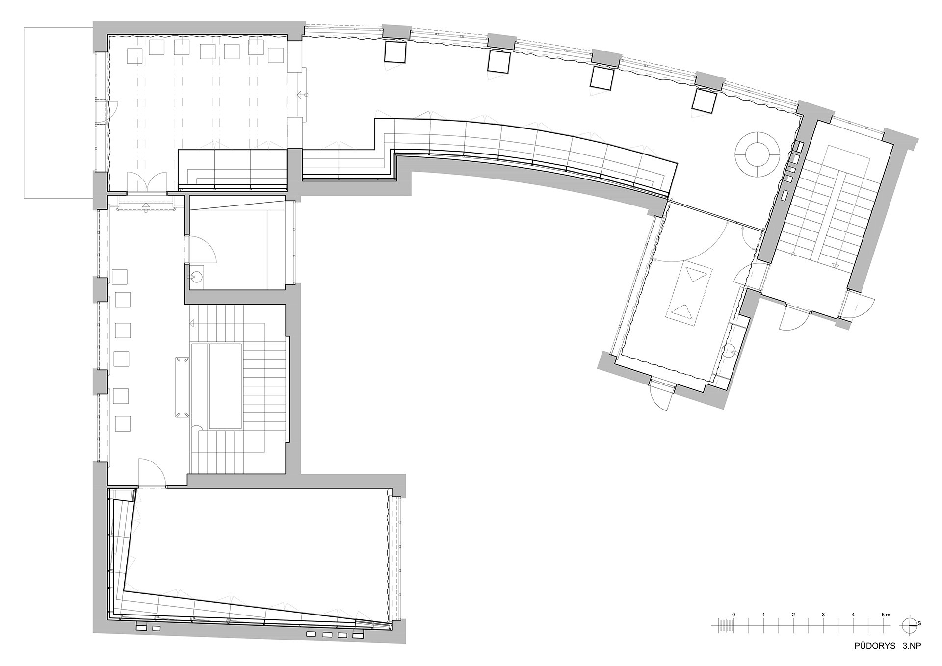
Příběh skla v Železném Brodě s mnoha dalšími zajímavostmi vypráví nová sklářská expozice muzeu v Železném Brodě. Jeho rekonstrukci, nové vstupní prostory i expozici navrhli architekti Matěj Jakoubek a Tomáš Rýdl ze studia MAJATORY. Najdeme tu ukázky sklářských výrobků, velkou sbírku skleněných plastik Jaroslavy Brychtové a Stanislava Libenského, a dokonce i kus podkrkonošské roubenky.
Roubenka a kvádr
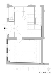
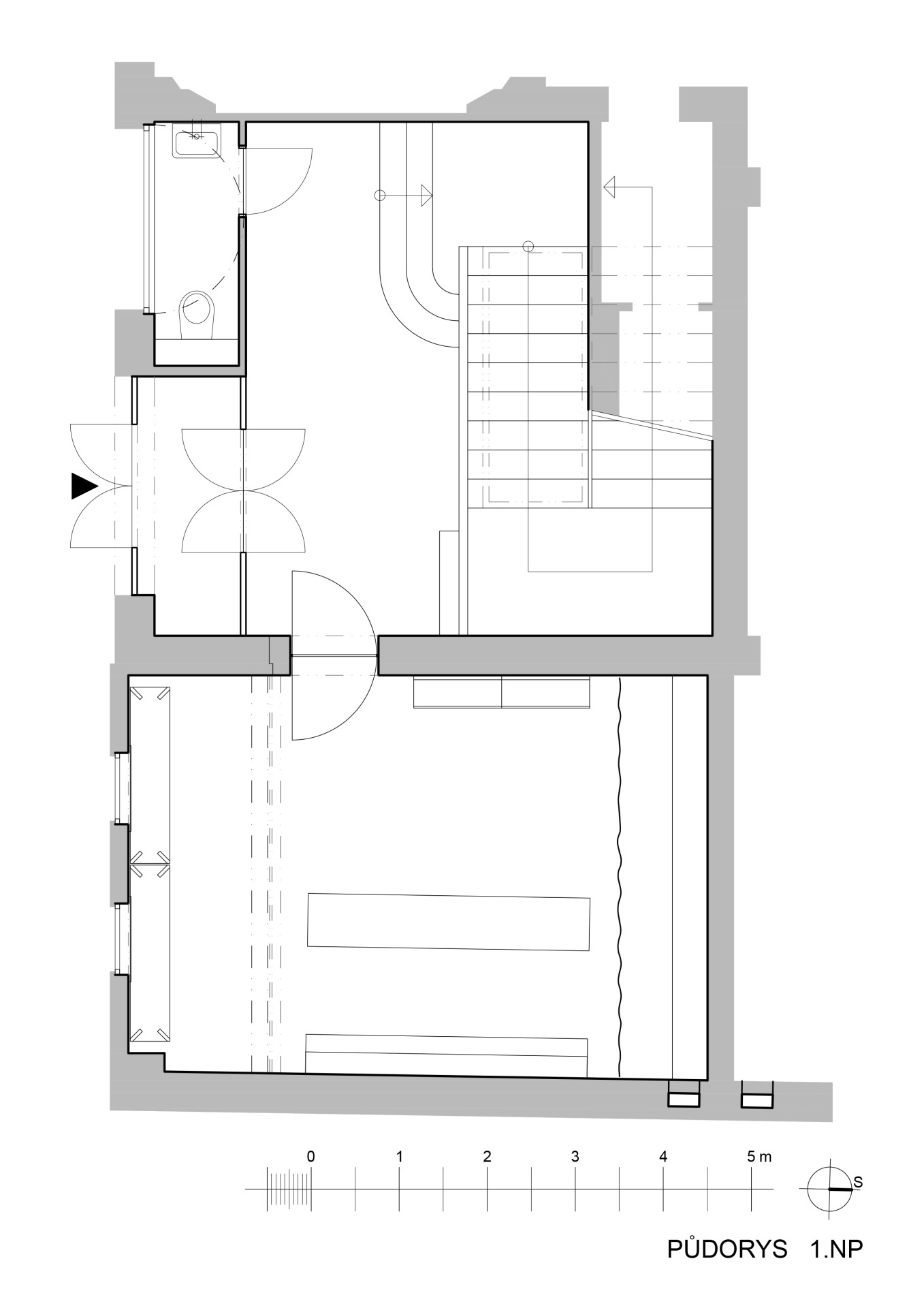
Městské muzeum v Železném Brodě se nachází na náměstí ve funkcionalistické budově od architekta Jindřicha Freiwalda a jeho společníka Jaroslava Böhma. Byla vybudována pro muzeum a městskou spořitelnu a dokončena v roce 1936. Architekti tehdy prosadili zboření části roubeného domu z roku 1792. Jeho druhou část obestavěli moderní architekturou.
Památkové úřady, spolky i milovníci památek protestovali, roubený dům byl přesto zničen; jedná se tím pádem také o významnou památkovou kauzu první republiky.

Z dnešního pohledu však dřevěné průčelí a funkcionalistické kvádry tvoří pozoruhodnou srostlici. Při rekonstrukci se architekti snažili obnovit její původní výraz, odstranili například pozdější mříže na oknech.
Naopak pečlivě postaráno bylo o původní prvky ze 30. let. „Z dochovaných prvků a konstrukcí, které byly repasované a rekonstruované, stojí za zmínku původní xylolitová a parketová podlaha, skleněná a mosazná svítidla a některé okenní a dveřní výplně včetně kování,“ popisují.

Největší nový zásah najdeme u vstupu. Pokladna je od schodiště oddělena sklem, je odtud také průhled do roubenky, vstupní prostor získal na přehlednosti. Na skleněné stěně je vypískováno logo muzea, objevuje se i na vzoru závěsů a potahových látkách.
Více k tématu
Pečlivou rekonstrukci budovy umožnila podpora z Fondů Evropského hospodářského prostoru (EHP) a Norska 2014 – 2021. Nová je též celá expozice. Při vystavování skla hraje podstatnou roli světlo. Tady je prezentováno v měkkém denním světle rozptýleném průsvitnými roletami, anebo v dramatičtějším prostoru ve 2. patře, zatemněném závěsy, kde do tmy září vitríny.
Městské muzeum v Železném Brodě rozhodně stojí za prohlídku. A při té příležitosti radíme navštívit také interiér spořitelny, rovněž dochované ze 30. let i s půvabnou fontánou od architekta Aloise Meteláka.
Příležitost navštívit celý dům včetně spořitelny nastane v sobotu 21. září v rámci sklářského festivalu Skleněné městečko. Další šance bude 1. října. Během Dne architektury tu zájemce provede architekt Jan Bureš.
- Ateliér: Studio MAJATORY
- Autoři: Matěj Jakoubek, Tomáš Rýdl
- Země: Česká republika
- Město: Železný Brod
- Adresa: náměstí 3. května 37, 468 22 Železný Brod
- Realizace: 2023–2024
- Investor: Město Železný Brod
- Náklady: cca 19,24 mil. Kč bez DPH
- Užitná plocha: 480 m²
- Fotograf: Jaroslav Kvíz
- Ideové a obsahové řešení expozice:: Petra Hejralová, Lenka Jůnová
- Design logotypu: Tomáš Plesl
- Grafika: Martin Hlubuček
- Dodavatel stavby: Stavoterm Černý s.r.o.
- Interiéry: RUST design s.r.o
- Vitríny: Bláha ús, s.r.o.
- Audiovizuální technika: 3dsense s.r.o.