Energeticky autonomní vila se zařezává do svahu chorvatského ostrova Vis
Z kopcovité krajiny chorvatského ostrova Vis nenápadně vystupuje víkendový rodinný dům od Davora Matekovice ze záhřebského studia PROARH. Architekt přistoupil k projektu s naprostým respektem a citem k přírodnímu prostředí. Výsledný objekt ctí prostředí nejen svým materiálovým a tvarovým řešením, ale také energetickou nenáročností spojenou plnohodnotným s využíváním přírodních zdrojů.
Tereza Hůrská , 13. 11. 2018
Vlny Jaderského moře, slunečná obloha, úlomek pevniny utopený někde na hranici těchto dvou světů. Vis je jedním z mnoha chorvatských ostrovů nacházející se při jižním cípu středozemního státu. Jeho přístavní města okolo zátok se postupně rozdrobují v menší osady a samoty ve zvlněné kopcovité krajině. Zelené zalesněné pahorky střídají divoké louky s odhalenými skalisky. Život centralizovaný kolem vody kontrastuje s téměř panenskou přírodou vnitrozemí.
Vedle průzračného moře a typické chorvatské přírody lze však na ostrově nalézt také zajímavou ukázku současné architektury. Vis se stal místem pro stavbu záhřebského studia PROARH, které své porfolio zásobuje projekty z různých koutů Chorvatska již od roku 1992. Do samoty ostrovní krajiny umístil zakladatel studia Davor Matekovic svůj projekt rodinného domu, jenž vyhovuje předpokladům příležitostného bydlení v odlehlé oblasti a zároveň splňuje veškeré nároky uživatele. Chybějící infrastruktura dovedla architekta k návrhu zcela energeticky autonomního objektu využívajícího přírodní zdroje, jako jsou dešťová voda, solární energie či užití přirozených způsobů větrání a chlazení.
Více k tématu
Inspirací se pro Matekovice stala místní stavební kultura. Nepřejímá od nich však formu a archetypální tvarosloví, ale spíše vztah k prostředí a zacházení s přírodními zdroji. Projekt Issa Megaron je tak jakousi reinterpretací dřívějších principů venkovského stavění v podání současné architektury. Tlumočí ideu Sokratova Megaronu jazykem nového tvarosloví.
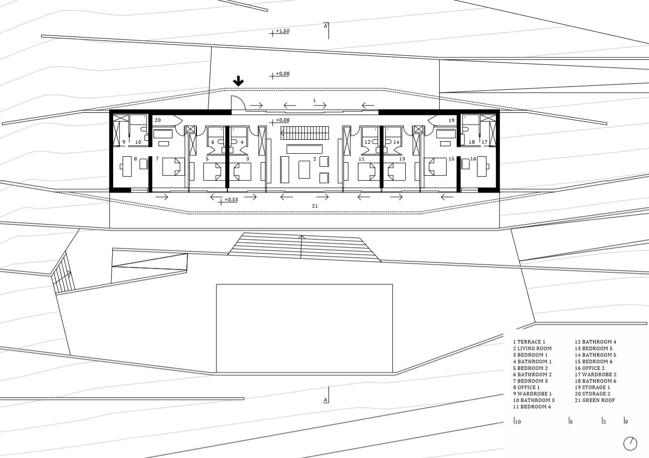
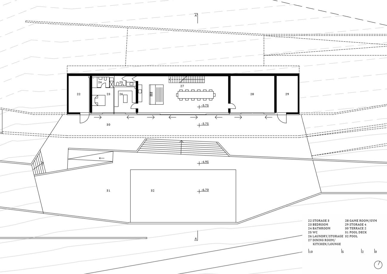
Z větší vzdálenosti není dům v kopci téměř patrný. Stavba jen nenápadně vystupuje ze svahu a podobá se uměle vytvořené jeskyni – symbolu přístřešku primitivních kultur. Celý jeho povrch, resp. téměř celý pozemek navíc kryje hrubý štěrk řídce porostlý zelení odolávající horkému středozemnímu počasí. Jen stěží lze odhadnout, kde končí stavba a kde začíná terén. Na přítomnost domu upozorňují až geometrické betonové linie, jemně lemující vystupující konstrukce jednotlivých teras, pater a střechy. Navzdory současnému a pro lokalitu netradičnímu architektonickému tvarosloví zůstává krajinný ráz místa bez porušení.
Problematické umístění ve svahu otáčí objekt ve svůj prospěch – z jedné strany přírodní masa zeminy kryje prostor intimnější terasy, z druhé strany se objekt může doširoka otevřít výhledu na ostrovní krajinu. Dispozici rozdělil architekt do dvou nadzemních podlaží různě navazujících na exteriér. Ve vrchním podlaží se nachází soukromější ložnice a obývací pokoj, který je propojen s terasou, chráněnou hradbou terénu. V přízemí umístěná kuchyně s jídelnou plynule přecházejí do prostorné otevřené terasy s bazénem a panoramatickým výhledem do údolí. Z interiéru se zároveň otevírá ohromující výhled na moře a okolní krajinu.
Stejně jako exteriér i interiér je řešen převážně v čistém pohledovém betonu, který harmonuje s okolním kamenným terénem a nijak neruší dojem ze zmiňovaného výhledu. Vedle betonu se na stavbě hojně uplatňuje kámen, převážně v podobě vnějšího i interiérového obkladu. Použití tohoto materiálu vychází z nosné filosofie domu – využít místní přírodní zdroj, typický materiál, který bude snadno dostupný a přinese objektu lokální charakter.
Tento článek vznikl za podpory společnosti Českomoravský beton v rámci popularizace tématu "Beton v architektuře".
Českomoravský beton, a. s., je holdingovou společností, která prostřednictvím vlastních betonáren a dceřiných společností dodává transportbeton v široké škále pevnostních tříd a druhů na území České republiky a Slovenska. Skupina, jejíž vznik spadá do počátku 90. let minulého století, v současné době provozuje 85 nově postavených nebo zrekonstruovaných betonáren, které mají zavedený systém managementu kvality, systém managementu hospodaření s energií a splňují nejpřísnější ekologická kritéria. Celá skupina – holdingová společnost a její dceřiné společnosti, historicky označované ve svém názvu TBG – vystupuje na trhu ČR pod jednou společnou obchodní značkou Českomoravský beton.
- Ateliér: PROARH
- Autoři: Davor Matekovic
- Země: Chorvatsko
- Suma: 540 000.00
- Měna: EUR
- Realizace: 2016
- Zastavěná plocha: 420.00m2
- Materiál: beton


